欢迎来到龙图网在线图文分享平台-CAD图纸,设计说明书,工业设计3D模型,三维软件下载!   客服QQ:2363701252
热搜:

工艺夹具 模具设计 数控编程 土木工程 3D模型

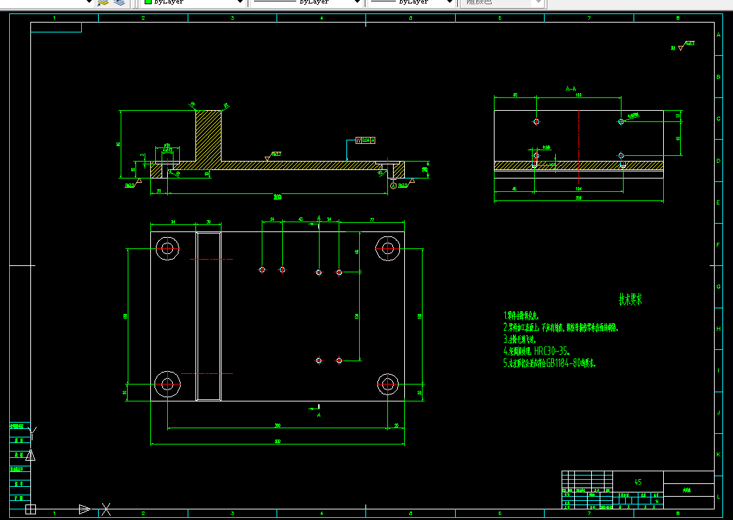
K1108-气门摇杆轴支座加工工艺及钻孔φ20夹具设计【含SW三维图】 下载积分:100 资料编号: K1108

1.打开支付宝或者微信扫描二维码。
2.填写金额:100 
3.添加备注,填写资料编号:
资料编号: K1108
4.支付成功后,请发资料编号到邮箱:jxsj168@qq.com
会有专人在15分钟内把资料发到您邮箱
备注:如果付款忘记填写资料编号,则发邮件时附带您的交易明细截图即可。
请耐心等待,如超过30分钟还没收到,请联系客服QQ:2363701252
点击分享:

作品描述

作品包括:

Word版说明书1份,共21页,约5800字

工序卡11张

工艺过程卡1张

CAD版本图纸,共4张

SW三维图一套

0GJ2PB(77Q)(M@%(856XE%A.png

摘 要

本文对气门摇杆轴支座的作用和工艺性进行了分析,详细介绍了气门摇杆轴支座加工工艺过程的制定:1、气门摇杆轴支座定位基准的选择,2、气门摇杆轴支座制定加工工艺路线,3、气门摇杆轴支座选择加工设备及气门摇杆轴支座工艺装备,4、确定气门摇杆轴支座切削用量及气门摇杆轴支座加工基本工时。然后介绍气门摇杆轴支座加工夹具的设计及气门摇杆轴支座计算,包括气门摇杆轴支座本工序的加工方式分析,再对确定夹具加工类型,租后确定加工方案和选择气门摇杆轴支座定位元件确定夹紧方案,确定加工对刀装置最终气门摇杆轴支座设计专用夹具。

关键词:气门摇杆轴支座 、加工工艺、专用夹具

目   录

摘 要II

第一章  机械加工工艺规程设计1

1.1气门摇杆轴支座的分析1

1.1.1 气门摇杆轴支座的作用1

1.1.2 气门摇杆轴支座的性能分析1

1.1.3气门摇杆轴支座的材料性能1

1.2气门摇杆轴支座零件的工艺性分析2

1.3气门摇杆轴支座加工方法的选择2

1.4气门摇杆轴支座工序路线3

1.5确定加工余量及毛坯尺寸4

第二章 确定切削用量和加工时间6

第三章 气门摇杆轴支座专用夹具的设计14

3.1气门摇杆轴支座夹具结构设计14

3.1.1 确定定位方案,选择定位元件14

3.1 .2 夹具设计的有关计算14

3.2 计算定位误差——目的是分析定位方案的可行性15

3.3夹具结构设计及操作简要说明15

3.4夹具结构设计及操作简要说明15

设计总结16

参考文献17

温馨提示:

1、题目前面的备注【字母数字编号】为本站整理分类的编号,与课题内容无关,请选题时忽视;

2、若题目上备注三维,则表示文件里包含三维源文件,由于三维组成零件数量较多,为保证预览截图的简洁性,本站将三维文件夹进行了打包。三维及CAD预览截图,均为本站电脑打开软件进行截图的,保证能够打开,下载原件超高清,下载后解压即可;

3、本站所有资源如无特殊说明,都需要本地电脑安装Office2007。图纸软件为AutoCAD,PROE,UG,SolidWorks,CATIA等;

4、本站所有图文资料仅供用户学习参考,不作为任何商用或其他用途;
5、本站不保证下载资源的准确性、安全性和完整性, 不包修改,不支持退换,同时也不承担用户因使用这些下载资源对自己和他人造成任何形式的伤害或损失;

6、 下载文件中如有侵权或不适当内容,请与我们联系,我们立即纠正。


线