

作品包括:
Word版说明书1份,共26页,约8500字
CAD版本图纸,共6张
![1743300696509732.png RTI_N%B)[XNDN]DAZW472A7.png](/uploadfiles/20250330/1743300696509732.png)
目录
摘要1
第一章绪论3
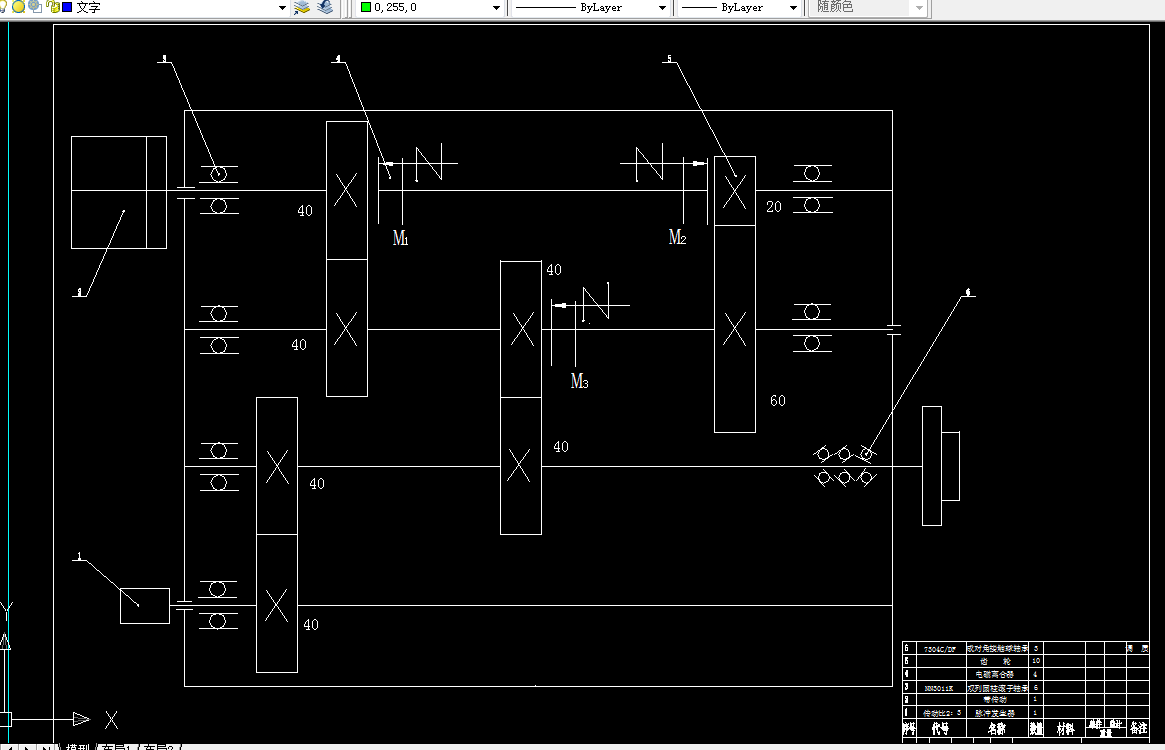
第二章主传动结构的分析4
2.1数控车床主传动系统的结构分析4
2.1.1设计参数4
2.1.2结构形式的选择4
2.2主传动系统分析5
2.1主传动系统5
2.2进给传动系统6
2.3主传动系统转速结构7
第三章主传动系统结构的设计和计算8
3.1传动比的计算8
3.1.1纵向进给齿轮箱传动比计算8
3.1.2横向进给齿轮箱传动比计算8
3.2齿轮的设计8
3.3步进电机的计算和选型9
3.4皮带的计算10
3.5轴的设计校核12
3.5.1 I轴结构设计12
3.5.2 II轴结构设计16
3.6轴承的选择21
设计结论23
参考文献24
温馨提示:
1、题目前面的备注【字母数字编号】为本站整理分类的编号,与课题内容无关,请选题时忽视;
2、若题目上备注三维,则表示文件里包含三维源文件,由于三维组成零件数量较多,为保证预览截图的简洁性,本站将三维文件夹进行了打包。三维及CAD预览截图,均为本站电脑打开软件进行截图的,保证能够打开,下载原件超高清,下载后解压即可;
3、本站所有资源如无特殊说明,都需要本地电脑安装Office2007。图纸软件为AutoCAD,PROE,UG,SolidWorks,CATIA等;
4、本站所有图文资料仅供用户学习参考,不作为任何商用或其他用途;
5、本站不保证下载资源的准确性、安全性和完整性, 不包修改,不支持退换,同时也不承担用户因使用这些下载资源对自己和他人造成任何形式的伤害或损失;
6、 下载文件中如有侵权或不适当内容,请与我们联系,我们立即纠正。