

作品包括:
Word版说明书1份,共29页,约13000字
任务书一份
开题报告一份
外文翻译一份
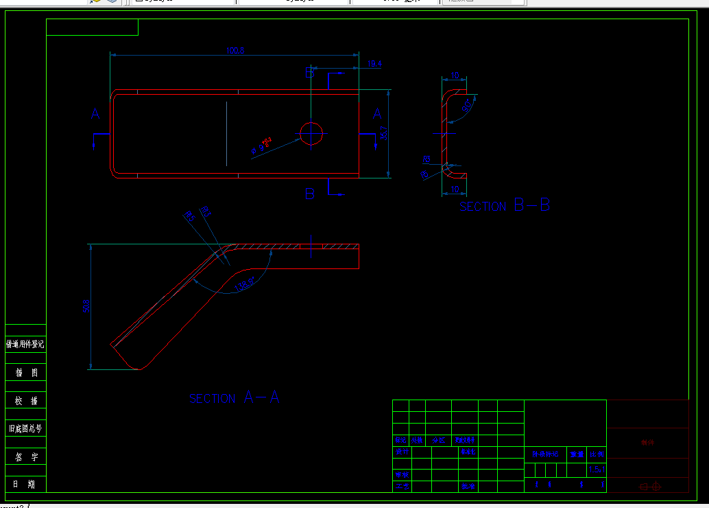
CAD版本图纸,共9张
UG三维图一套
![1749784859509899.png X12VMB1%L]$_YF$D`__U`UF.png](/uploadfiles/20250613/1749784859509899.png)
摘要
本次设计是汽车离合器踏板安装支架成形的模具设计,通过自己掌握的冷冲压模具设计全部的知识,文章主要简述从分析产品的工艺分析开始直到利用NX10.0中的级进模设计向导将模具设计完成的所有过程。首先,对制件进行结构进行分析,成形工艺分析,确定设计模具的方案;接着对制件进行排样设计,和对所需数据的计算,然后在NX10.0中进行建模设计和CAD二维图纸的优化. 该模具采用多工位级进模不仅能够保证零件质量和生产效益,而且还能提高材料的利用率和模具使用水平,节约了人力和设备,节省了生产成本,而提高效率,非常适合制件的大批量生产。本次设计包含冲裁、成型、折弯、预弯、冲孔等工序,涉及冲裁工艺、弯曲工艺、排样工艺、参数确认、刃口设计、模架设计、使用标准件库等。
关键词: 级进模向导;模具设计;排样设计。
目 录
1 绪论 …………………………………………………………………………………1
1.1 多工位级进模………………………………………………………………1
1.2 级进模现状与发展…………………………………………………2
1.3 设计任务 ………………………………………………………………………2
1.4 设计的技术要求 …………………………………………………………………2
1.5 设计涉及的软件介绍 ……………………………………………………………3
2 产品结构及工艺分析 ……………………………………………………………………5
2.1 零件的结构分析………………………………………………………………………5
2.2 零件的工艺分析………………………………………………………………………5
2.5 设计方案拟定………………………………………………………………………5
3 主要参数的计算 ……………………………………………………………………7
3.1 毛坯展开尺寸………………………………………………………………………7
3.2 确定排样方案………………………………………………………………………7
3.2.1 排样方案初步确定 ………………………………………………………………8
3.2.2 步距、料宽确定 ………………………………………………………………8
3.2.3 冲裁间隙确定 ………………………………………………………………8
3.2.4 材料利用率确定 ………………………………………………………………8
3.2.5 排样图最终确定 ………………………………………………………………9
4 冲压工艺力计算 ……………………………………………………………………10
4.1 冲压力计算………………………………………………………………………10
4.1.1 冲裁力计算 ………………………………………………………………10
4.1.2 卸料力计算 ………………………………………………………………10
4.2 弯曲力计算………………………………………………………………………11
4.3 冲压设备的选择…………………………………………………………………11
4.4 压力机校核…………………………………………………………………12
4.5 压力中心计算…………………………………………………………………12
5 模具结构设计 ……………………………………………………………………14
5.1 凹、凸模设计……………………………………………………………………16
5.1.1 冲裁凹、凸模设计 ………………………………………………………………20
5.1.2 弯曲凹凸模维设计 ……………………………………………………………20
5.2 导正机构设计……………………………………………………………………16
5.3 导料装置设计………………………………………………………………………16
5.4 导柱导套设计…………………………………………………………………16
6 模架设计 ……………………………………………………………………14
6.1 模架尺寸确认……………………………………………………………………16
6.3 限位装置确认……………………………………………………………………16
7 关于PDW设计 ……………………………………………………………………14
8 模具三维效果图……………………………………………………………………14
结论……………………………………………………………………………………………26
谢辞……………………………………………………………………………………………27
参考文献………………………………………………………………………………………28
温馨提示:
1、题目前面的备注【字母数字编号】为本站整理分类的编号,与课题内容无关,请选题时忽视;
2、若题目上备注三维,则表示文件里包含三维源文件,由于三维组成零件数量较多,为保证预览截图的简洁性,本站将三维文件夹进行了打包。三维及CAD预览截图,均为本站电脑打开软件进行截图的,保证能够打开,下载原件超高清,下载后解压即可;
3、本站所有资源如无特殊说明,都需要本地电脑安装Office2007。图纸软件为AutoCAD,PROE,UG,SolidWorks,CATIA等;
4、本站所有图文资料仅供用户学习参考,不作为任何商用或其他用途;
5、本站不保证下载资源的准确性、安全性和完整性, 不包修改,不支持退换,同时也不承担用户因使用这些下载资源对自己和他人造成任何形式的伤害或损失;
6、 下载文件中如有侵权或不适当内容,请与我们联系,我们立即纠正。