

作品包括:
Word版说明书1份,共36页,约12000字
开题报告一份
外文翻译一份
CAD版本图纸,共9张

摘 要
氯碱工业是现在我国较为成熟的一种化工行业,主要是以现行较为基础的氢氧化钠和PVC为主要产品。作为基础的化工行业所生产的产品拥有强大的经济市场,特别是PVC现在在的各大化工产品交易平台上交易量一直处于前三。而现行的工艺主要是以铜基汞为催化剂,对于生态环境不太友好。所以对于现行的工艺进行改进也是势在必行。
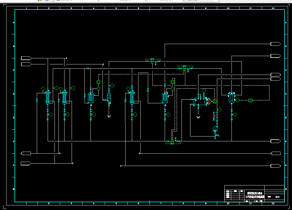
本次设计是以XXXXXXXX股份有限公司的年产320kt/a PVC的氯乙烯单体合成车间为依据的工艺改进,为年产100kt/a PVC 的氯乙烯单体合成的工艺流程。采用的原料是以现行较为普遍的HCL和C2H2,采用现在较为先进的无汞型催化剂进行工艺的设计。设计的内容包括了工艺的方法的确定、工艺的物料与的热量衡算、所设计工艺的设备选型、设备布置、厂址的选择以及管道布置。物料衡算主是为了确定生产原料的消耗量,热量衡算主要是为了确定公用工程换热量和换热器设计与校核提供了依据。设备的选型包括了换热器、压缩机、液体输送离心泵、等进行设备类型的计算与选择,最后计算管道的管径以完成管道布置图。
关键词:氯乙烯单体;合成;无汞催化
目录
引 言 1
第一章 总论 2
1.1说明书 2
1.1.1设计依据 2
1.1.2设计指导思想 2
1.1.3设计范围 2
1.1.4设计的规模以及产品方案 2
1.1.5主要合成原料及其消耗和来源途径 2
1.1.6合成工艺的描述和工艺流程框图 3
1.2厂址概况 5
1.3地质水文条件及气象资料 5
第二章 工艺系统 6
2.1工艺概述 6
2.1.1装备设计与组成及工序简介 6
2.1.2VCM合成的现状及公司选择此方法的原因 6
2.1.3改进后方法介绍 8
2.1.4生产制度 9
2.2产品的技术规格 9
第三章 ASPEN PLUS工艺流程模拟 9
3.1工艺流程 10
3.2流程模拟 10
3.2.1ASPEN PLUS 模拟各模块的选择 11
3.2.2ASPEN PLUS 工艺模拟步骤和各模块模拟情况的简介 12
第四章 物料衡算 15
4.1简述 16
4.2物料衡算 16
4.2.1物料衡算的基本原理 16
4.2.1总工艺的物料衡算 16
第五章 换热网与能量集成 16
5.1换热网 17
5.1.1换热网概述 17
5.1.2换热网集成 17
5.2夹点和最小冷热工程用量 17
第六章 设备选型 18
6.1概述 19
6.2换热器的选型 19
6.2.1换热器选型的步骤 19
6.2.2除雾器前换热器设计与校核 19
6.2.2二氯乙烷反应前换热器设计与校核 20
6.2.3氯乙烯单体合成反应前换热器设计与校核 22
6.3反应器的选型 23
6.3.1 传热面积计算 23
6.3.2 催化剂的装填量 23
6.4输液泵的选型 24
6.4.1选泵的安装信息 24
6.4.2选泵的安装尺寸 25
6.4.3选泵的安装尺寸 25
第七章 车间布置 26
7.1概述 27
7.2设备布置的依据和范围 27
7.2.1设计依据 27
7.2.2范围描述 27
7.3车间布置形式 27
7.3.1车间具体参数 27
7.4露天设备防护 27
第八章 安全设计与三废处理问题 27
8.1安全问题的可能出现分析 28
8.2安全问题防护措施 28
第九章工艺环保性介绍 28
参考文献 29
附录一 31
附录二 35
谢辞 36
温馨提示:
1、题目前面的备注【字母数字编号】为本站整理分类的编号,与课题内容无关,请选题时忽视;
2、若题目上备注三维,则表示文件里包含三维源文件,由于三维组成零件数量较多,为保证预览截图的简洁性,本站将三维文件夹进行了打包。三维及CAD预览截图,均为本站电脑打开软件进行截图的,保证能够打开,下载原件超高清,下载后解压即可;
3、本站所有资源如无特殊说明,都需要本地电脑安装Office2007。图纸软件为AutoCAD,PROE,UG,SolidWorks,CATIA等;
4、本站所有图文资料仅供用户学习参考,不作为任何商用或其他用途;
5、本站不保证下载资源的准确性、安全性和完整性, 不包修改,不支持退换,同时也不承担用户因使用这些下载资源对自己和他人造成任何形式的伤害或损失;
6、 下载文件中如有侵权或不适当内容,请与我们联系,我们立即纠正。