

作品包括:
Word版说明书1份,共27页,约10000字
CAD版本图纸,共9张
SW三维图一套

摘 要
建筑垃圾的粉碎再利用是我国城市建设行业中重要流程之一,其作用是将对建筑物实施新建、改建、扩建或者是拆除过程中产生的固体废弃物,以科学、经济、有效的方式进行建筑垃圾资源化处理,粉碎后作为再生资源重新利用的,如利用废弃建筑混凝土和废弃砖石生产粗细骨料,可用于生产相应强度等级的混凝土、砂浆或制备诸如砌块、墙板、地砖等建材制品,降低建设成本,避免出现资源浪费、垃圾堆积的问题,并对环境保护有益。建筑垃圾粉碎机工作时,通过内部破碎装置的高速运转,将送入其内部的建筑垃圾废料进行锤击或挤压,使被粉碎后一定粒度的碎石及粉末,再通过内部的滤网落入出口的传送装置上,传输至出料口。建筑垃圾粉碎机的使用,有效地解决了建筑垃圾粉碎再利用的难题,在我国的建筑施工现场十分常见。
本文通过理论设计与三维建模相结合的方法来进行。首先对建筑垃圾粉碎机的研究背景及国内外研究现状进行分析,提出本设计的主要内容。然后建筑垃圾粉碎机的常见类型及特点进行分析,提出本设计的方案。接着对建筑垃圾粉碎机的结构及传动系统进行理论计算与性能较核。然后以计算完成的参数为依据,在三维建模软件中对建筑垃圾粉碎机进行三维建模与装配。
关键词:建筑垃圾 粉碎机 建模
目录
1.绪论 5
1.1 建筑垃圾粉碎机的研究背景 5
1.2 建筑垃圾粉碎机的国内外研究现状 6
1.3本设计的主要内容 7
2.建筑垃圾粉碎机的方案设计 9
2.1 建筑垃圾粉碎机的结构组成及其功能特点 9
2.2 建筑垃圾粉碎机的方案设计 10
3.建筑破碎机传动系统的设计 12
3.1 电动机的选择及传动比的分配 12
3.2 各轴运动参数的计算 12
3.3 第一级V带传动的设计计算 13
3.4 第二级V带传动的设计计算 16
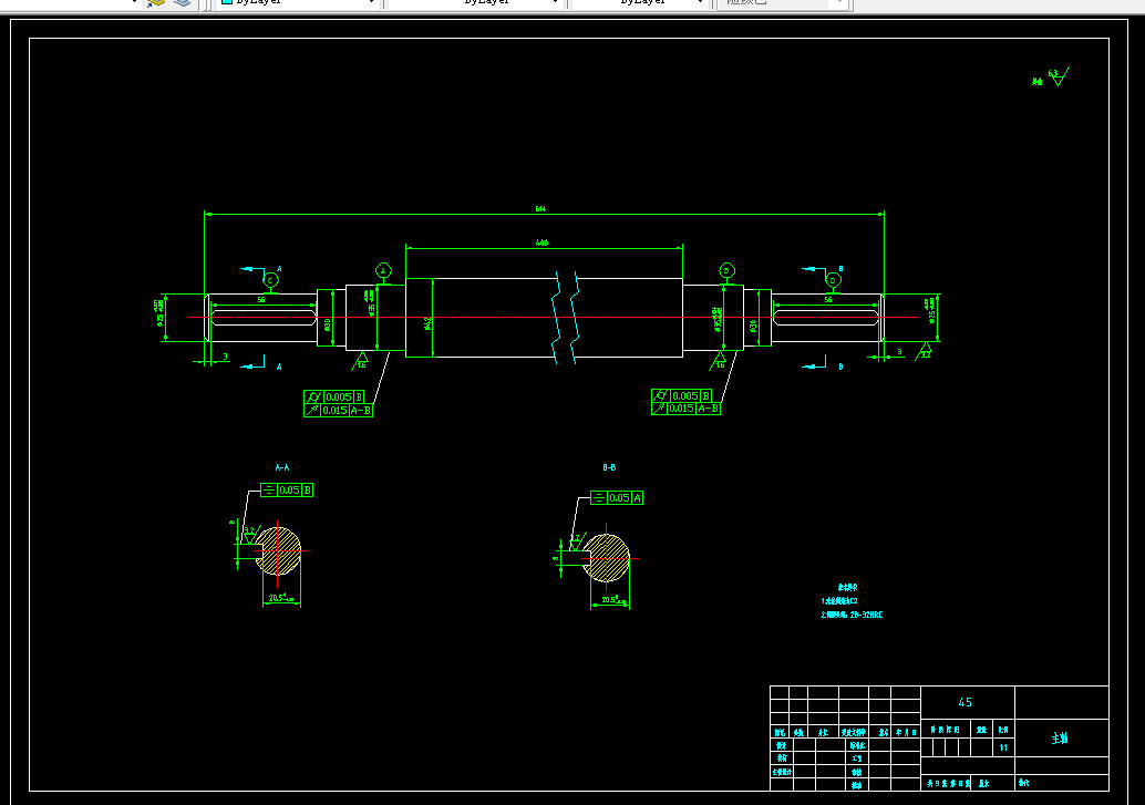
3.5 碎石机主轴的设计计算及强度较核 19
3.6 碎石机轴承寿命的计算 23
3.7 碎石机主轴上键的较核 24
4.建筑垃圾粉碎机各零件的三维建模 25
4.1 建模软件Solidworks概述 25
4.2 建筑垃圾粉碎机的各零件的建模 26
5.建筑垃圾粉碎机各零件的装配 27
5.1 Solidworks三维装配功能概述 27
5.2 建筑垃圾粉碎机各零件的装配 28
5.建筑垃圾粉碎机的运动仿真 29
5.1 运动仿真模块的概述 29
5.2 建筑垃圾粉碎机装置的运动仿真 29
总结 30
致谢 31
参考文献 32
温馨提示:
1、题目前面的备注【字母数字编号】为本站整理分类的编号,与课题内容无关,请选题时忽视;
2、若题目上备注三维,则表示文件里包含三维源文件,由于三维组成零件数量较多,为保证预览截图的简洁性,本站将三维文件夹进行了打包。三维及CAD预览截图,均为本站电脑打开软件进行截图的,保证能够打开,下载原件超高清,下载后解压即可;
3、本站所有资源如无特殊说明,都需要本地电脑安装Office2007。图纸软件为AutoCAD,PROE,UG,SolidWorks,CATIA等;
4、本站所有图文资料仅供用户学习参考,不作为任何商用或其他用途;
5、本站不保证下载资源的准确性、安全性和完整性, 不包修改,不支持退换,同时也不承担用户因使用这些下载资源对自己和他人造成任何形式的伤害或损失;
6、 下载文件中如有侵权或不适当内容,请与我们联系,我们立即纠正。