

作品包括:
Word版说明书1份,共53页,约21000字
CAD版本图纸,共10张

摘 要
双卧轴搅拌机具备很多优点,如搅拌效率高,搅拌质量好,能源利用率高等,与传统单轴搅拌机相比,它最大的特点在于其两轴之间存在物料的逆流运动,目前它在各种道路工程和建筑工程中被普遍使用,是市场上的主流搅拌机型。
因为搅拌是一个复杂的动态过程,物料在搅拌筒内的各种运动主要取决于搅拌机的结构参数和运动参数,因此对搅拌装置各参数的选择对提高搅拌机的工作能力具有十分重要的意义。本文结合了国内外相关设计经验对双卧轴搅拌机的主要参数进行了计算和分析,对主要结构进行了选择和优化,以保证其良好的工作效率和品质,高经济性,低能耗低污染性和较长的工作寿命。
搅拌系统是整个搅拌机的“心脏”,所以是本次设计的核心部分,传动系统的稳定性,可靠性,精确性对于整机的工作能力也有重要影响,因而其设计合理性非常重要。此外上料系统、卸料系统、轴封系统等都是搅拌机不可或缺的组成部分。本文包含JS500型搅拌机各个系统的分析设计,并附上了总装图,关键部位装配图以及重要零件图。
关键词:双卧轴搅拌机;强制式;搅拌参数;理论分析;设计;搅拌效率;搅拌质量
目录
1 绪论 1
1.1 课题研究背景 1
1.2 混凝土概述 1
1.3 搅拌机概述 2
2 总体设计 9
2.1 设计原则 9
2.2 设计要求 9
2.3 市场上同类型搅拌机的主要参数对比 9
2.4 方案总述 10
2.5 电机选型 11
3 搅拌装置 13
3.1 搅拌筒 13
3.2 搅拌轴的工作转速 15
3.3 搅拌臂和叶片的数量 16
3.4 叶片安装角 16
3.5 搅拌臂的布置方式 17
3.6 搅拌臂和搅拌轴、叶片的连接方式 19
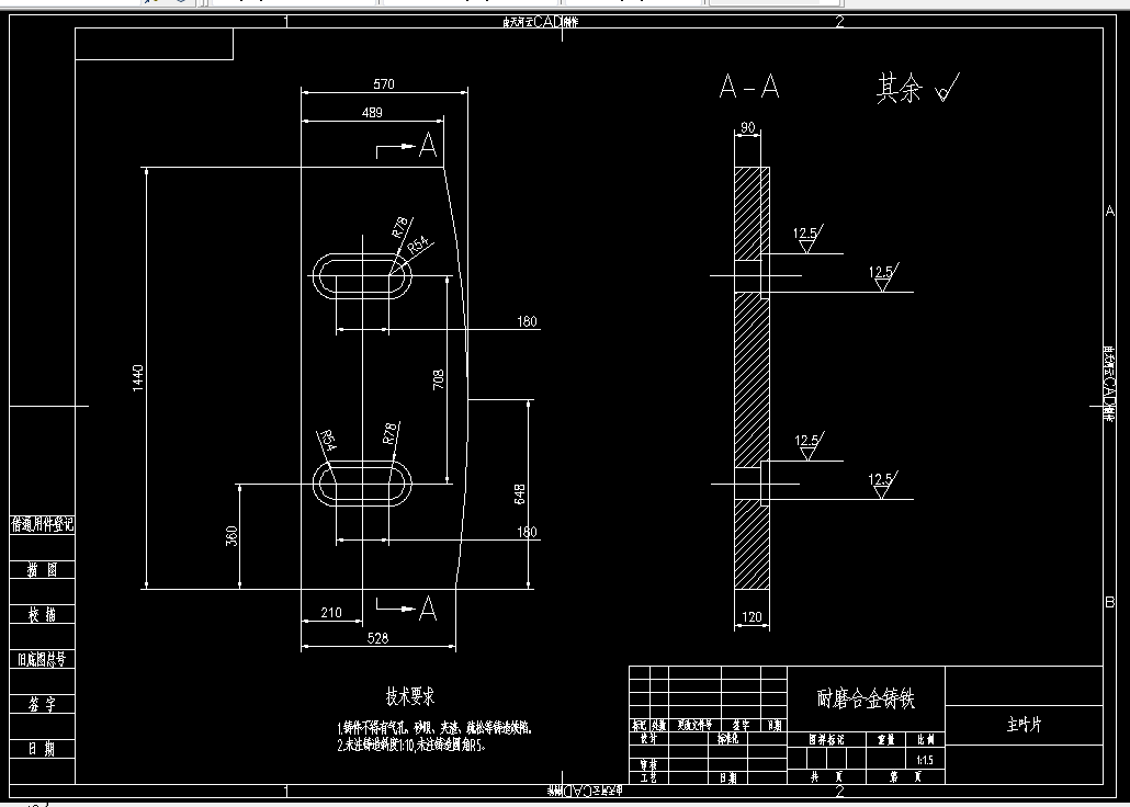
3.7 搅拌叶片 20
3.8 搅拌轴 23
3.9 轴承 28
3.10 搅拌臂 29
3.11 连接键 30
4 传动装置 31
4.1 传动比分配 31
4.2 带传动 32
4.3 减速器 34
4.4 同步齿轮对 35
5 轴端密封装置 38
5.1 轴封装置的分类 38
5.2 轴封装置的选用 40
6 上料与卸料装置 40
6.1 上料装置的工作原理 40
6.2 上料系统结构设计 41
6.3 卸料系统工作原理 44
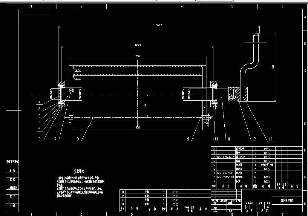
6.4 卸料门 44
6.5 液压动力系统 45
结论 46
参考文献 47
温馨提示:
1、题目前面的备注【字母数字编号】为本站整理分类的编号,与课题内容无关,请选题时忽视;
2、若题目上备注三维,则表示文件里包含三维源文件,由于三维组成零件数量较多,为保证预览截图的简洁性,本站将三维文件夹进行了打包。三维及CAD预览截图,均为本站电脑打开软件进行截图的,保证能够打开,下载原件超高清,下载后解压即可;
3、本站所有资源如无特殊说明,都需要本地电脑安装Office2007。图纸软件为AutoCAD,PROE,UG,SolidWorks,CATIA等;
4、本站所有图文资料仅供用户学习参考,不作为任何商用或其他用途;
5、本站不保证下载资源的准确性、安全性和完整性, 不包修改,不支持退换,同时也不承担用户因使用这些下载资源对自己和他人造成任何形式的伤害或损失;
6、 下载文件中如有侵权或不适当内容,请与我们联系,我们立即纠正。