

作品包括:
Word版说明书1份,共39页,约13000字
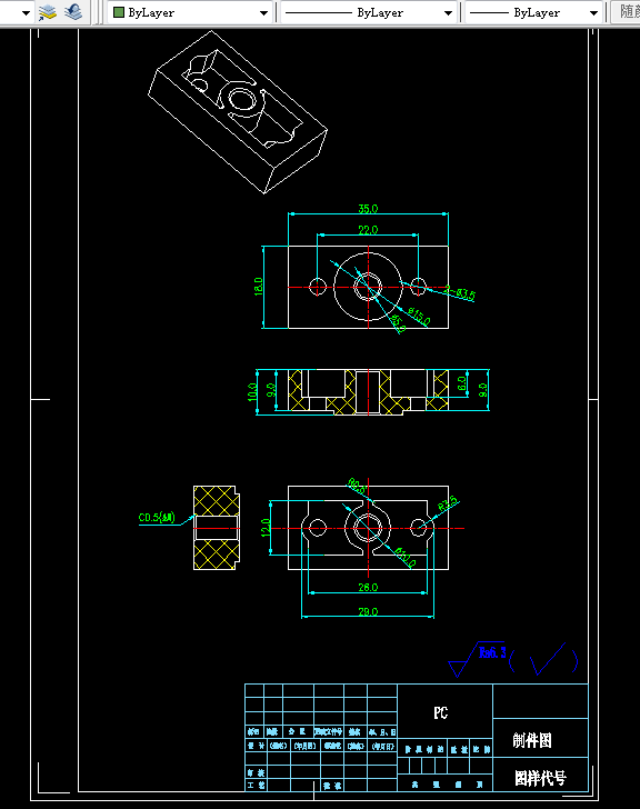
CAD版本图纸,共6张
UG三维图一份

摘要
伴随着机械制造工业的发展,模具是工业之母的地位依然不可撼动,模具能够实现高效率状态下,同等精度和质量制品的的大批量生产。模具工业技术在不断的发展前行中得到了更加广泛的应用。特别是在电子电器设备与机械仪表设备、生活日用塑胶件中有了更高程度的提高。
本次设计是以“底座盖”塑件为原始文件,进行注塑模具设计。首选针对此塑件,进行结构分析,确定其塑件结构适合采用注塑模具结构生产,然后选择合适的高分子材料与型腔的出模数量。结合模具设计原则与设计规范,选择分型面并且分模完成成型系统零件设计,对浇注系统的设计方面,力求充填均匀,流道废料少、短。冷却系统均匀的分布在塑件的周边,使得温度冷却合理,在脱模顶出机构上,采用均匀分布顶出系统,让塑件能够均匀的受力顶出脱模。在选择标注模架系统方面,采用了国内最大的模具企业生产的龙记GB国标标准模架系统,能够保证制造周期短,制造精度高、效率高的特点。
在完成全套的模具结构设计之后,对其生产所需的注塑机进行了选择与校核,其中校核项目包裹注塑量、注塑压力、锁模力、安装尺寸、顶出行程等内容。
本次设计中,采用了计算机辅助设计软件,其中包括二维设计软件AutoCAD绘制模具的总装图与非标的零件工程图,采用了三维软件进行了塑件的建模与整体装配建模。
本次设计来源于生活实践中,应用非常广泛,采用计算机辅助设计软件大大的提高了设计效率。通过完成了对应设计参数的计算与校核。经过计算校核,本套设计满足实践需求。
关键词:注塑模具;结构设计;注塑机;校核;机械设计
目录
目录 I
摘要 1
PCtract 2
第一章 绪论 4
1.1 注塑模具的简介 4
1.2 注塑模具发展国内外现状 4
1.3 国内模具的优劣势 5
1.4 本课题研究内容 6
第二章 塑件工艺分析与材料的选择 7
2.1 塑件工艺分析 7
2.2 塑件材料的选择 7
2.2.1 PC塑料的特点 7
2.2.1 PC的技术指标 7
2.1.3 PC的注塑成型工艺参数 8
2.3 PC材料的应用 8
2.4 塑件的体积与质量 9
2.5 塑件壁厚的分析 9
第三章 模具结构方案的确定 10
3.1 出模数量与型腔布局 10
3.2 分型面的设计 11
3.2.1 分型面设计的原则 11
第四章 模具浇注系统的设计 13
4.1 浇注系统的组成 13
4.2 浇注系统的设计原则 13
4.3 流道的设计 13
4.3.1 主流道的设计 13
4.3.2 分流道的设计 14
4.3.3 冷料穴的设计 14
4.3.4 浇口的设计 15
4.4 浇注系统标准件的选用 15
第五章 模具成型系统设计 17
5.1 型腔结构设计 17
5.2 型芯结构设计 17
5.3 型腔成型零件尺寸计算 18
5.4 型芯成型零件尺寸计算 19
5.4 成型钢材的选用 20
第六章 模具温度系统设计 22
6.1 模具温度调节系统概述 22
6.2 模具冷却系统设计要求 22
6.3 冷却水道的形式类型 23
6.4 模具冷却水道的计算校核 24
第七章 模具顶出脱模机构 26
7.1 顶出脱模机构概述 26
7.3 顶出脱模机构的分类 26
第八章 模具抽芯机构 29
8.1 抽芯机构概述 29
8.2 抽芯机构的类型 29
8.3 抽芯距离和斜导柱 29
8.3.1 抽芯距的计算 29
8.3.2 斜导柱的计算 29
8.3.3 斜导柱倾斜角度 30
8.4 斜顶抽芯机构 30
第九章 标准模架的选用 32
9.1 模架概述 32
9.2 标准模架的选用 32
9.3 模架型号的确定 32
第十章 注塑机的选择与校核 34
10.1 注塑机的概述 34
10.2 初选注塑机型号 34
10.3 校核注塑机注塑量 35
10.4 校核压力 35
10.5 校核模具安装尺寸 36
10.6 校核移模行程 36
10.7 校核注塑机锁模力 36
设计总结 38
致谢 39
附图 40
参考文献 41
温馨提示:
1、题目前面的备注【字母数字编号】为本站整理分类的编号,与课题内容无关,请选题时忽视;
2、若题目上备注三维,则表示文件里包含三维源文件,由于三维组成零件数量较多,为保证预览截图的简洁性,本站将三维文件夹进行了打包。三维及CAD预览截图,均为本站电脑打开软件进行截图的,保证能够打开,下载原件超高清,下载后解压即可;
3、本站所有资源如无特殊说明,都需要本地电脑安装Office2007。图纸软件为AutoCAD,PROE,UG,SolidWorks,CATIA等;
4、本站所有图文资料仅供用户学习参考,不作为任何商用或其他用途;
5、本站不保证下载资源的准确性、安全性和完整性, 不包修改,不支持退换,同时也不承担用户因使用这些下载资源对自己和他人造成任何形式的伤害或损失;
6、 下载文件中如有侵权或不适当内容,请与我们联系,我们立即纠正。