

作品包括:
Word版设计说明书1份
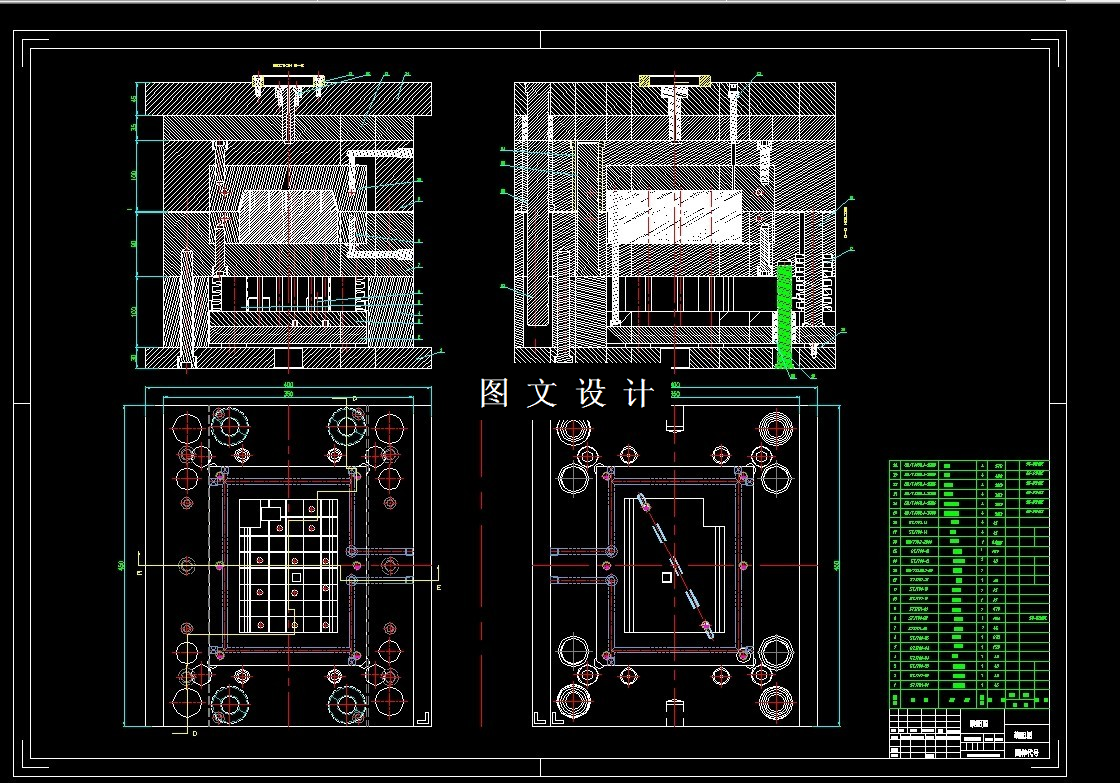
CAD版本图纸,共13张
UG三维图一份
摘要
温控开关外壳注射模具设计-一模一腔点进胶方案 本次的设计任务是设计温控开关外壳的注射模具,由于该制品形状中等复杂,并且塑料壁较薄。故模具不但要求满足制品的工艺性,同时也要求在满足制品几何尺寸精度的前提下,力求提高模具的寿命、降低模具成本、提高生产效率。本文通过对温控开关外壳塑件的结构特点的分析,介绍了设计温控开关外壳模具要点,对特殊、复杂部位的设计作了详细阐述,采用了pro/e方法来设计温控开关外壳。
温馨提示:
1、题目前面的备注【字母数字编号】为本站整理分类的编号,与课题内容无关,请选题时忽视;
2、若题目上备注三维,则表示文件里包含三维源文件,由于三维组成零件数量较多,为保证预览截图的简洁性,本站将三维文件夹进行了打包。三维及CAD预览截图,均为本站电脑打开软件进行截图的,保证能够打开,下载原件超高清,下载后解压即可;
3、本站所有资源如无特殊说明,都需要本地电脑安装Office2007。图纸软件为AutoCAD,PROE,UG,SolidWorks,CATIA等;
4、本站所有图文资料仅供用户学习参考,不作为任何商用或其他用途;
5、本站不保证下载资源的准确性、安全性和完整性, 不包修改,不支持退换,同时也不承担用户因使用这些下载资源对自己和他人造成任何形式的伤害或损失;
6、 下载文件中如有侵权或不适当内容,请与我们联系,我们立即纠正。