

作品包括:
Word版说明书1份,共29页,约13000字
CAD版本图纸,共10张
目 录
1 绪论 ……………………………… ………………………………………1
1.1国内模具的现状和发展趋势………………………………………1
1.1.1国内模具的现状………………………………………………1
1.1.2国内模具的发展趋势…………………………………………2
1.2国外模具的现状和发展趋势………………………………………3
1.3冲压加工特点………………………………………………………5
1.4冲压加工和冲模在生产中的地…………… …………………5
1.5 U形弯曲模具设计的进度…………………………………………6
2 弯曲件工艺分析…………………… ……………… ……………………7
2.1工件图及要求………………………………………… ……………7
2.2工艺方案的确定………………………………………… …………8
2.3弯曲工艺计算……………………… ………………………………9
2.3.1弯曲件毛坯展开长度的计算……………… …………………9
2.3.2弯曲模工作部分尺寸计算……………………………………10
2.3.3弯曲件回弹值的计算…………………………………………12
2.3.4弯曲力的计算…………………………………………………16
2.4模具总体设计………………………………………………………17
2.4.1模具类型的确定………………………………………………17
2.4.2模具结构形式的确定…………………………………………17
2.5模具主要零部件的设计……………………………………………18
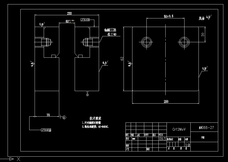
2.5.1弯曲凸模、凹模的结构设计…………………………………18
2.5.2模柄的设计……………………………………………………19
2.5.3螺钉和销钉的设计…………… …………… ………………20
2.5.4下模座的设计…………………………………………………20
2.5.5弹簧的设计……………………………………………………20
2.5.6模架的设计……………………………………………………21
2.6冲压设备的选定……………………………………………………22
2.6.1压力机的选用…………………………… ………………………22
2.6.2冲压设备的选择………………………………………………23
2.6.3压力机的校核…………………………………………………23
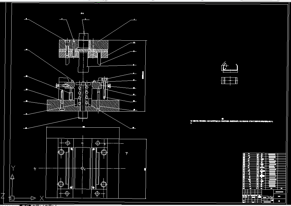
2.7绘制模具总装图……………………………………………………24
设计总结………………………………… …………………………………25
参考文献…………………… ………………………………………………27
温馨提示:
1、题目前面的备注【字母数字编号】为本站整理分类的编号,与课题内容无关,请选题时忽视;
2、若题目上备注三维,则表示文件里包含三维源文件,由于三维组成零件数量较多,为保证预览截图的简洁性,本站将三维文件夹进行了打包。三维及CAD预览截图,均为本站电脑打开软件进行截图的,保证能够打开,下载原件超高清,下载后解压即可;
3、本站所有资源如无特殊说明,都需要本地电脑安装Office2007。图纸软件为AutoCAD,PROE,UG,SolidWorks,CATIA等;
4、本站所有图文资料仅供用户学习参考,不作为任何商用或其他用途;
5、本站不保证下载资源的准确性、安全性和完整性, 不包修改,不支持退换,同时也不承担用户因使用这些下载资源对自己和他人造成任何形式的伤害或损失;
6、 下载文件中如有侵权或不适当内容,请与我们联系,我们立即纠正。