

作品包括:
Word版说明书1份,共81页,约22000字
CAD版本图纸,共9张
摘要
随着社会的进步和科学技术的不断发展,人们物质文化生活的需要也日益增加,人们对环境的要求也越来越高了。因此,环境问题成了人们关注的焦点,大气、土壤和水成为了重点污染对象,如何治理就成为我们所要面对的首要问题。
作为一名环境工程专业本毕业生,应以治理污水,改善水质为己任,认真学习本科生的功课,在指导教师的指导下完成毕业设计,为将来的学习工作打下坚实的基础,争取在将来为解决水污染问题贡献自己的一份力量。
本设计对象是江苏省北部地区D市,近年来,城市生活污水水量和工业废水水量大幅度增加。为保障人民的身体健康,提高生活质量,城市的排水问题也日益迫切。
本设计进行江苏省北部地区D市的排水系统和污水处理厂的扩大初步设计,完成排水管网、污水泵站、污水及污泥处理处理的方案的选择、技术经济分析、工艺设计及部分施工设计图设计、工程概算等。本设计处理的对象为城市污水,主要污染质为悬浮固体(ss)及溶解和胶体状态的有机污染物(BOD)。因此,可采用间歇式活性污泥处理(SBR)工艺流程。
在我的毕业设计中,我遇到了很多难以解决的问题,后来在赫俊国老师的帮助指导下,我顺利的完成我的毕业设计。
关键词:污水处理、水污染、SBR工艺
目录
摘要 V
ABSTRACT VI
第1章 绪论 1
1.1 概述 1
1.1.1 城市概况 1
1.1.2 设计范围 2
1.1.3 设计任务 2
1.2 设计资料 2
1.2.1 地形及城市规划资料 2
第2章 排水管网的规划设计 6
2.1 城市排水管网定线原则 6
2.1.1 排水工程规划设计的基本原则 6
2.2 排水体制确定及区域划分 7
2.2.1 排水体制的选择 7
2.2.2 排水区域的划分 10
2.3 排水系统的布置形式 10
2.3.1 排水系统布置形式的选择 10
2.4 污水设计流量的计算 10
2.4.1 生活污水设计流量 11
2.4.2 工业废水设计流量 12
2.4.3 污水设计流量的计算 12
2.5污水管网的水力计算 13
2.5.1 水力计算的基本公式 13
2.5.2 污水管道水力计算的设计数据 14
主要的依据数据有: 14
(1)冰冻线深度 15
(2)地面荷载 15
(3)必须满足管道衔接的要求 15
Z2——街区污水管起点检查井处地面标高(M) 16
2.5.3 污水管道水力计算时应注意的问题 16
3.1 雨水管渠系统平面布置的原则 17
3.2 雨水管渠设计流量的确定 17
3.2.2雨水管渠设计流量计算公式 18
F——汇水面积(HA); 18
3.2.3 径流系数Ψ的确定 18
3.2.4 雨水管渠设计流量的计算 19
3.3 雨水管渠的水力计算 19
3.3.1 雨水管渠水力计算的设计数据 19
3.3.2 雨水管渠水力计算的方法 20
第4章 污水处理厂设计 21
4.1 设计方案的选择 21
水质计算: 22
污水设计流量 22
污水水质污染程度计算 23
污水处理程度计算 25
格栅的设计计算 28
初次沉淀池 35
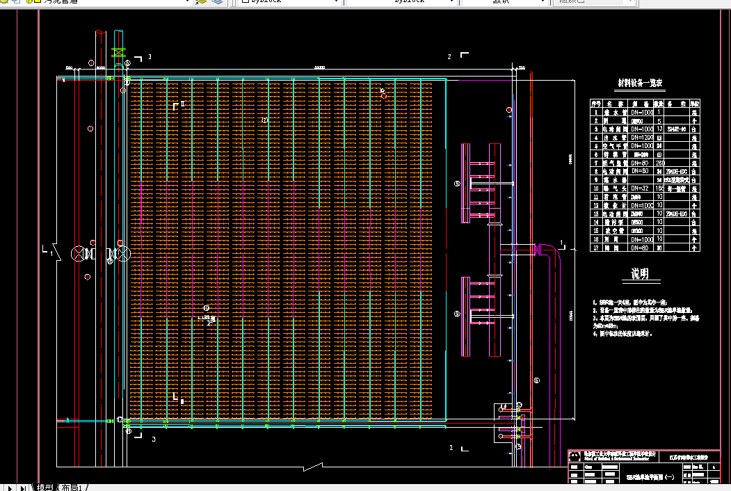
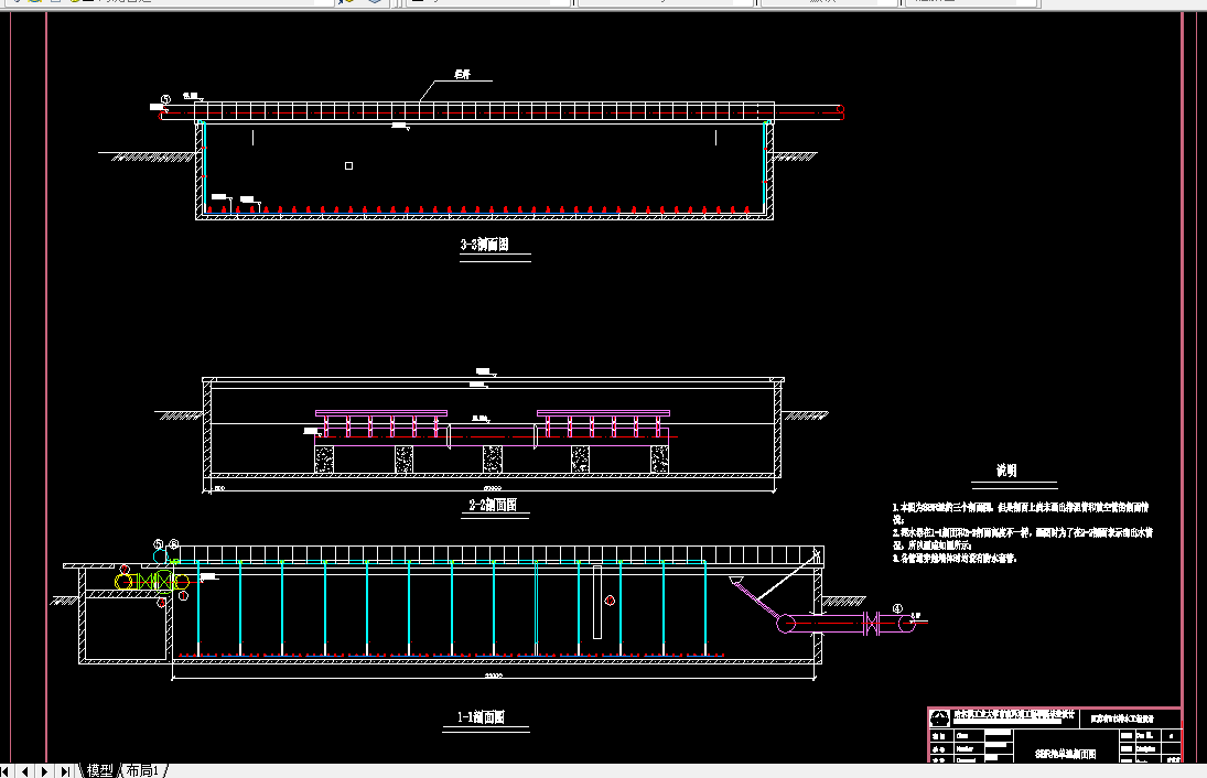
SBR反应池 38
4.3.6 污水计量设备 46
消毒接触池 48
污泥浓缩池 51
4.3.8 贮泥池 54
4.3.9 污泥消化池的设计计算 55
污泥脱水设计计算 58
五、污水泵站设计 59
总泵站 59
设计参数 59
估算范围 65
编制依据 65
投资估算 66
6.1劳动定员 66
生产组织 66
劳动定员 68
人员培训 69
6.2运行费用和成本核算 69
成本估算的有关单价 69
运行成本估算 69
6.3运行成本核算 72
结论 72
参考文献 74
温馨提示:
1、题目前面的备注【字母数字编号】为本站整理分类的编号,与课题内容无关,请选题时忽视;
2、若题目上备注三维,则表示文件里包含三维源文件,由于三维组成零件数量较多,为保证预览截图的简洁性,本站将三维文件夹进行了打包。三维及CAD预览截图,均为本站电脑打开软件进行截图的,保证能够打开,下载原件超高清,下载后解压即可;
3、本站所有资源如无特殊说明,都需要本地电脑安装Office2007。图纸软件为AutoCAD,PROE,UG,SolidWorks,CATIA等;
4、本站所有图文资料仅供用户学习参考,不作为任何商用或其他用途;
5、本站不保证下载资源的准确性、安全性和完整性, 不包修改,不支持退换,同时也不承担用户因使用这些下载资源对自己和他人造成任何形式的伤害或损失;
6、 下载文件中如有侵权或不适当内容,请与我们联系,我们立即纠正。