

作品包括:
说明书1份,共33页,约7300字左右
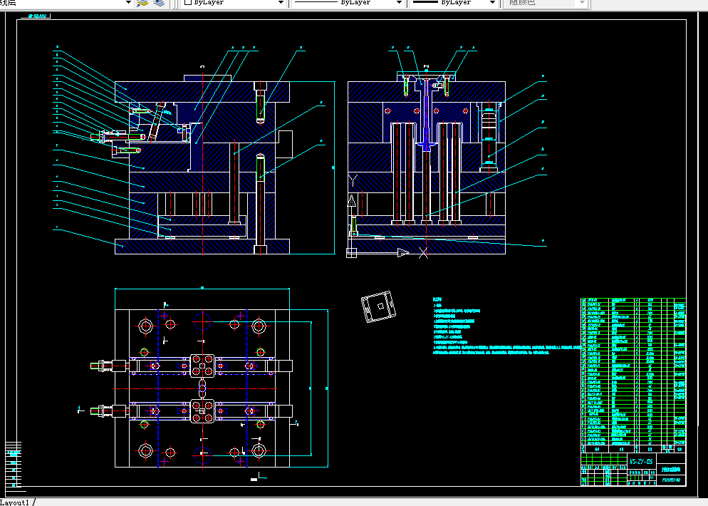
CAD版本本图纸,共12张
摘 要
本课题是方形盒的注射模设计,要求是大批量生产。通过对塑件的结构和工艺性进行缜密的分析之后,发现塑件成型面积小且型腔较浅,所以采用了侧浇口的注射模具和直流式冷却系统。在模具的设计过程中,一些重要的尺寸(如模板厚度,顶杆直径,流道尺寸等)都经过了理论计算或取一个合理的经验数值。最后,我们根据UG生成的一整副模架来作为参考,通过进一步的计算,在CAD中绘制出装配图和成型零部件的零件图。
关键词: 方形盒;注射成型;侧抽芯;CAD
目 录
第一章 绪论 1
1.1毕业设计的内容 1
1.2毕业设计的意义 1
1.3模具产业的变化 1
第二章 塑件成型工艺分析 3
2.2设计任务 3
2.2塑件结构分析 4
2.3塑件材料性能特点 4
2.4塑件的注射成型过程及工艺参数 4
第三章 成型设备与模架的选择 6
3.1注射机的选择 6
3.1.1所需注射量计算 6
3.1.2锁模力计算 6
3.1.3注射机型号的确定 6
3.2模架选择 8
第四章 模具结构方案的确定 9
4.1分型面位置确定 9
4.2确定型腔数量及排列方式 9
4.3浇注系统的设计与计算 9
4.3.1主流道设计 9
4.3.2分流道设计 10
4.3.3浇口设计 10
4.4成型零件结构的确定 10
4.4.1型芯结构设计 11
4.4.2型腔结构设计 11
4.4.3侧抽芯结构设计 11
4.5冷料穴和拉料杆设计 13
4.6模具结构形式的确定 14
第五章 结构零部件设计 15
5.1支撑零部件设计 15
5.2导柱导向机构的设计 15
5.2.1导柱导套的设计 15
5.3模具冷却系统的设计 17
5.4成型零件工作尺寸计算 17
5.4.1成型零部件的性能要求 17
5.4.2型芯、型腔工作部位尺寸计算 17
第六章 推出与复位机构设计 20
6.1推出机构设计 20
6.1.1推杆的选择 20
6.1.2推杆的配合 21
6.2复位机构设计 21
第七章 注射机有关参数的校核 23
7.1注射容量与质量校核 23
7.2锁模力校核 23
7.3模具与注射机安装部分相关尺寸校核 23
7.3.1拉杆间距校核 23
7.3.2模具闭合高度校核 23
7.3.3开模行程校核 23
第八章 总结和展望 25
致谢 26
参考文献 27
温馨提示:
1、题目前面的备注【字母数字编号】为本站整理分类的编号,与课题内容无关,请选题时忽视;
2、若题目上备注三维,则表示文件里包含三维源文件,由于三维组成零件数量较多,为保证预览截图的简洁性,本站将三维文件夹进行了打包。三维及CAD预览截图,均为本站电脑打开软件进行截图的,保证能够打开,下载原件超高清,下载后解压即可;
3、本站所有资源如无特殊说明,都需要本地电脑安装Office2007。图纸软件为AutoCAD,PROE,UG,SolidWorks,CATIA等;
4、本站所有图文资料仅供用户学习参考,不作为任何商用或其他用途;
5、本站不保证下载资源的准确性、安全性和完整性, 不包修改,不支持退换,同时也不承担用户因使用这些下载资源对自己和他人造成任何形式的伤害或损失;
6、 下载文件中如有侵权或不适当内容,请与我们联系,我们立即纠正。