

作品包括:
word说明书一份,共41页,约15000字
任务书一份
开题报告一份
外文翻译一份
CAD版本图纸,共7张
UG三维图纸,一套

摘 要
本次设计内容涉及了机械加工工艺及机床夹具设计、UG运动仿真等多方面的知识。设计内容主要包括泵体零件的结构分析,工艺设计、工序阶段的划分,铣床专用夹具的设计,相关零部件的三维建模与装配,装配图的绘制及运动仿真等。
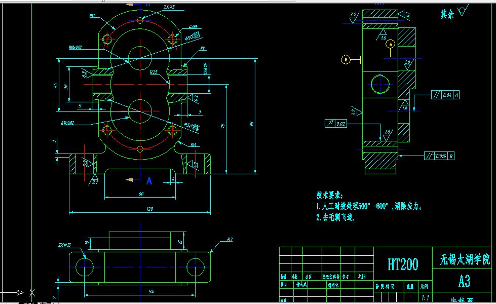
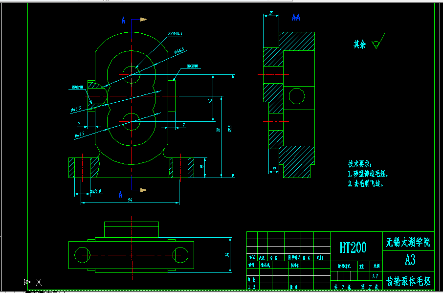
齿轮泵体是组成机器的重要零部件,零件的加工质量将直接影响机器的性能、精度和寿命。因此本次任务是通过对零件结构进行具体分析,设计出合理的加工工艺方案及方便,高效的工装夹具,保证零件的加工质量。在设计夹具时须根据零件的结构尺寸及材料性质合理选择定位方式,定位元件与定位机构,及夹紧机构 。在其设计过程中三维辅助设计软件的运用是不可或缺的环节,UG软件是现今最成功的CAD/CAM软件之一,可以进行建模、装配、运动仿真、模拟加工等,在现代的机械加工中有广泛的应用。本文利用UG软件对零件与夹具体进行模型设计、装配、运动分析,并把三维图形转换成二维工程图。
关键词:工艺设计;铣床夹具;三维建模;运动仿真
目 录
摘 要 III
ABSTRACT IV
目 录 V
1 绪论 1
1.1 机床夹具的概述 1
1.2 国内外发展及研究状况 1
1.3 本课题的主要内容 1
2 零件的工艺分析及规程设计 2
2.1 零件的作用 2
2.2 零件的工艺分析 2
2.3 零件的生产类型 3
2.4 毛坯的制造形式的确定 3
2.5 零件加工余量、工序尺寸及毛坯尺寸的确定 3
2.6 定位基准的选择 4
2.6.1 精基准的选择 4
2.6.2 粗基准的选择 5
2.7 工艺路线的拟定 5
2.8 切削用量及基本工时的确定 6
3 专用夹具设计 17
3.1 设计机床夹具的目的 17
3.2 机床夹具的设计要求 17
3.3 铣前后端面的专用夹具设计 17
3.3.1 问题的提出 17
3.3.2 定位基准的选择 17
3.3.3 切削力与夹紧力的计算 17
3.3.4 定位误差分析与计算 19
3.3.5 夹具设计及操作简要说明 19
3.3.6 专用夹具相关零部件的设计分析与三维建模 20
3.4 粗铣2×M16螺纹孔外侧端面专用夹具设计 25
3.4.1 定位基准的选择 25
3.4.2 定位基准的选择 25
3.4.3 切削力及夹紧力的计算 26
3.4.4 定位误差分析与计算 27
3.4.5 夹具设计及操作简要说明 27
4 运动仿真 30
4.1 UG的概述 30
4.2 运动仿真与分析 30
4.2.1 专用铣床夹具1夹紧装置的运动仿真 30
5 结论 34
5.1 结论 34
5.2 不足之处及展望 34
致 谢 35
参考文献 36
附 录 37
温馨提示:
1、题目前面的备注【字母数字编号】为本站整理分类的编号,与课题内容无关,请选题时忽视;
2、若题目上备注三维,则表示文件里包含三维源文件,由于三维组成零件数量较多,为保证预览截图的简洁性,本站将三维文件夹进行了打包。三维及CAD预览截图,均为本站电脑打开软件进行截图的,保证能够打开,下载原件超高清,下载后解压即可;
3、本站所有资源如无特殊说明,都需要本地电脑安装Office2007。图纸软件为AutoCAD,PROE,UG,SolidWorks,CATIA等;
4、本站所有图文资料仅供用户学习参考,不作为任何商用或其他用途;
5、本站不保证下载资源的准确性、安全性和完整性, 不包修改,不支持退换,同时也不承担用户因使用这些下载资源对自己和他人造成任何形式的伤害或损失;
6、 下载文件中如有侵权或不适当内容,请与我们联系,我们立即纠正。