

作品包括:
Word版说明书一份,共53页,约22000字
外文翻译一份
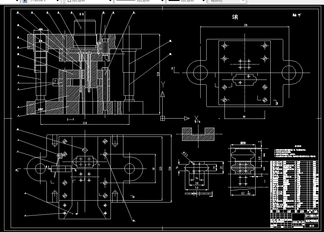
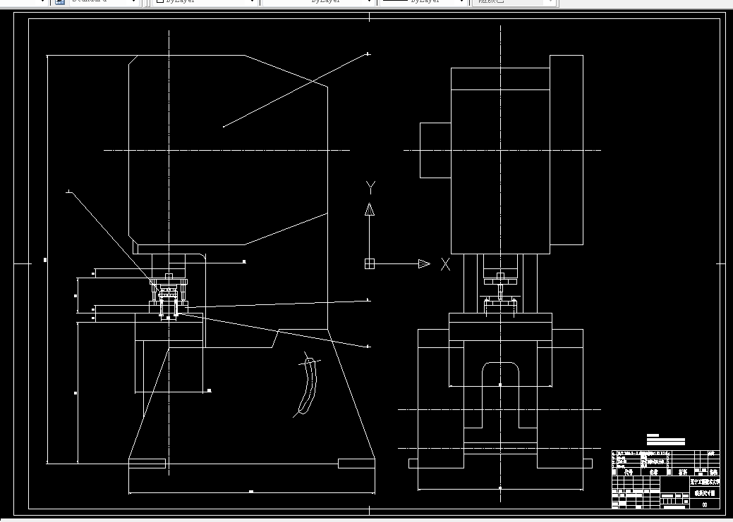
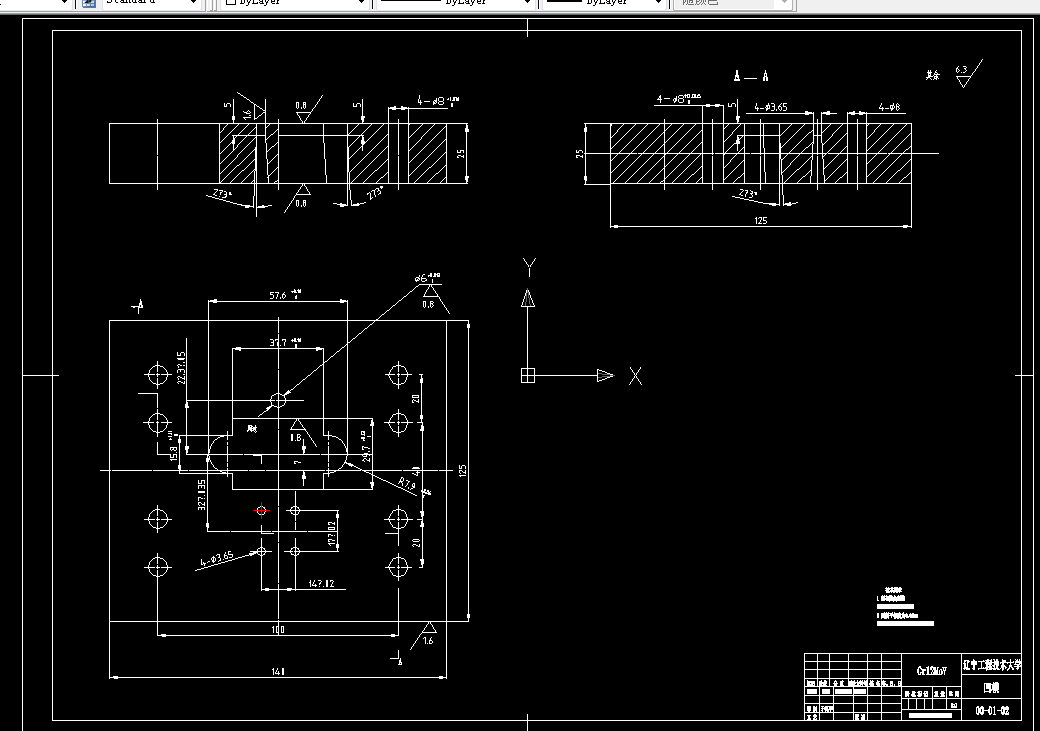
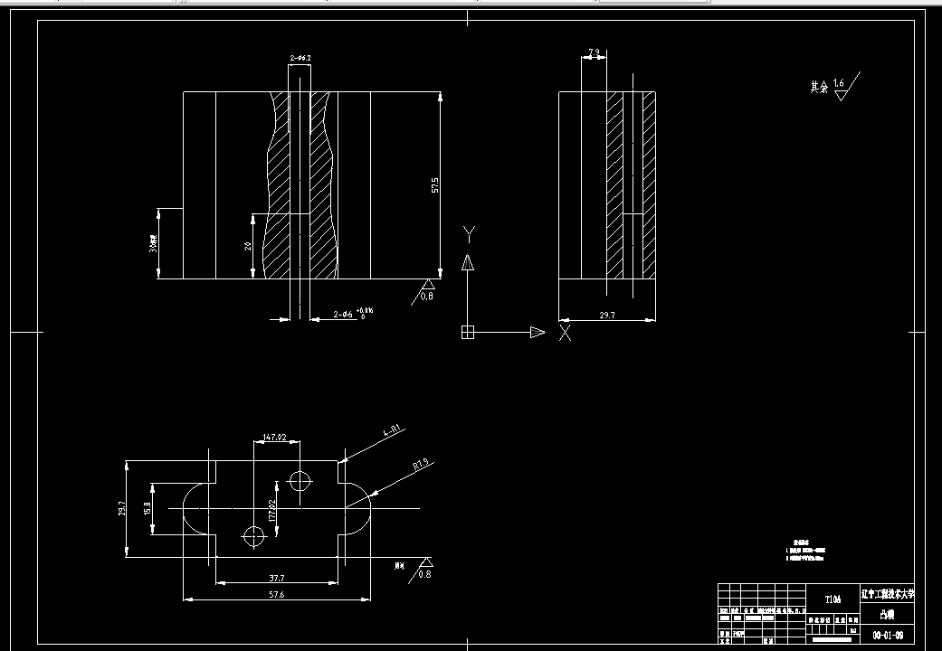
CAD版本图纸,共5张:
摘要
模具冲压生产是一种先进的机械加工制造方法之一。冲压加工生产出的零件具有质量高,使用性能好的特点。因此在生产中得到了广泛的应用。
托板是机器中的常用零件,现在已大批量生产。主要作用是托起机械设备中各个元件,起到固定和增加散热的作用!具有制造简单,成本低,耐腐蚀等特点。并且能根据具体情况具体设计形状。方法是分两道工序完成,一个冲孔,一个落料。设计一个安全,高效,高精度,低成本的模具具有很现实的意义。
在这次设计中,选用了级进模具,将以往简单分散低效率的冲压转变为一次加工成型的自动生产过程,从而使得劳动生产率大幅度提到。
关键词:模具;冲压;托板;级进模具;劳动生产率
目录
引言………………………………………………………………………………1
1 设计初始资料…………………………………………………………………4
1.1 技术要求……………………………………………………………………4
1.2 工件生产批量………………………………………………………………4
1.3 原材料规格及毛坯情况……………………………………………………4
2 分析冲压零件(托板)的工艺性……………………………………………5
2.1 冲压件经济性分析…………………………………………………………5
2.2 冲压件的工艺性分析………………………………………………………5
2.3 冲模制造精度的选择………………………………………………………5
2.4 其他方面……………………………………………………………………6
3 确定工艺方案及模具形式……………………………………………………7
3.1 排样…………………………………………………………………………7
3.2 工序的确定…………………………………………………………………7
3.3 搭边类型的确定……………………………………………………………7
3.4 卸料板的选择………………………………………………………………8
4 工艺计算………………………………………………………………………9
4.1 毛坯工艺计算………………………………………………………………9
4.1.1 排样及搭边值的计算……………………………………………………9
4.1.2 步距的计算………………………………………………………………9
4.1.3 条料宽度的确定…………………………………………………………10
4.1.4 材料利用率的计算………………………………………………………10
4.1.5 板料的裁剪………………………………………………………………11
4.2 冲压力的计算………………………………………………………………12
4.2.1 冲裁力计算………………………………………………………………12
4.2.2 卸料力,推件力和顶件力计算…………………………………………13
4.2.3 计算总冲压力……………………………………………………………14
4.3 确定压力中心………………………………………………………………15
4.3.1 压力中心…………………………………………………………………15
4.3.2 压力中心的计算…………………………………………………………15
4.4 凸、凹模工作部分尺寸计算………………………………………………16
4.4.1 尺寸计算原则……………………………………………………………16
4.4.2 冲裁间隙的选择…………………………………………………………17
4.4.3 凸,凹模刃口尺寸………………………………………………………18
4.5 确定各主要零件结构尺寸(凹、凸模的设计)…………………………21
4.5.1 凹模的结构设计与标准化………………………………………………21
4.5.2 凸模的结构设计与标准化………………………………………………24
4.6 初选冲压设备………………………………………………………………26
5 模具强度校核…………………………………………………………………27
5.1 模具失效形式………………………………………………………………27
5.2 对冲裁部分的模具零件进行校核计算……………………………………27
6 压力机的选用…………………………………………………………………29
6.1 压力机的校核………………………………………………………………29
7 模具零部件设计………………………………………………………………31
7.1 模具标准件的选择…………………………………………………………31
7.1.1 模架的选用………………………………………………………………31
7.1.2 导向装置的确定…………………………………………………………31
7.1.3 模柄的选择………………………………………………………………33
7.1.4 冲压加工时定位部分的设计……………………………………………33
7.1.5 卸料形式的确定…………………………………………………………33
7.1.6 导料装置的确定…………………………………………………………34
7.2 模具材料的选用……………………………………………………………34
8 模具的装配……………………………………………………………………35
8.1 模具的装配过程……………………………………………………………35
9 技术经济性分析………………………………………………………………36
9.1 冲裁件的经济性分析………………………………………………………36
9.2 模具的经济性分析…………………………………………………………36
10 结论…………………………………………………………………………37
致谢………………………………………………………………………………38
参考文献…………………………………………………………………………39
附录A……………………………………………………………………………40
附录B……………………………………………………………………………43
温馨提示:
1、题目前面的备注【字母数字编号】为本站整理分类的编号,与课题内容无关,请选题时忽视;
2、若题目上备注三维,则表示文件里包含三维源文件,由于三维组成零件数量较多,为保证预览截图的简洁性,本站将三维文件夹进行了打包。三维及CAD预览截图,均为本站电脑打开软件进行截图的,保证能够打开,下载原件超高清,下载后解压即可;
3、本站所有资源如无特殊说明,都需要本地电脑安装Office2007。图纸软件为AutoCAD,PROE,UG,SolidWorks,CATIA等;
4、本站所有图文资料仅供用户学习参考,不作为任何商用或其他用途;
5、本站不保证下载资源的准确性、安全性和完整性, 不包修改,不支持退换,同时也不承担用户因使用这些下载资源对自己和他人造成任何形式的伤害或损失;
6、 下载文件中如有侵权或不适当内容,请与我们联系,我们立即纠正。