欢迎来到龙图网在线图文分享平台-CAD图纸,设计说明书,工业设计3D模型,三维软件下载!   客服QQ:2363701252
热搜:

工艺夹具 模具设计 数控编程 土木工程 3D模型

i601-华隆大厦写字楼设计(方案二)5层4283平米 下载积分:200 资料编号: i601

1.打开支付宝或者微信扫描二维码。
2.填写金额:200 
3.添加备注,填写资料编号:
资料编号: i601
4.支付成功后,请发资料编号到邮箱:jxsj168@qq.com
会有专人在15分钟内把资料发到您邮箱
备注:如果付款忘记填写资料编号,则发邮件时附带您的交易明细截图即可。
请耐心等待,如超过30分钟还没收到,请联系客服QQ:2363701252
点击分享:

作品描述

作品包括:

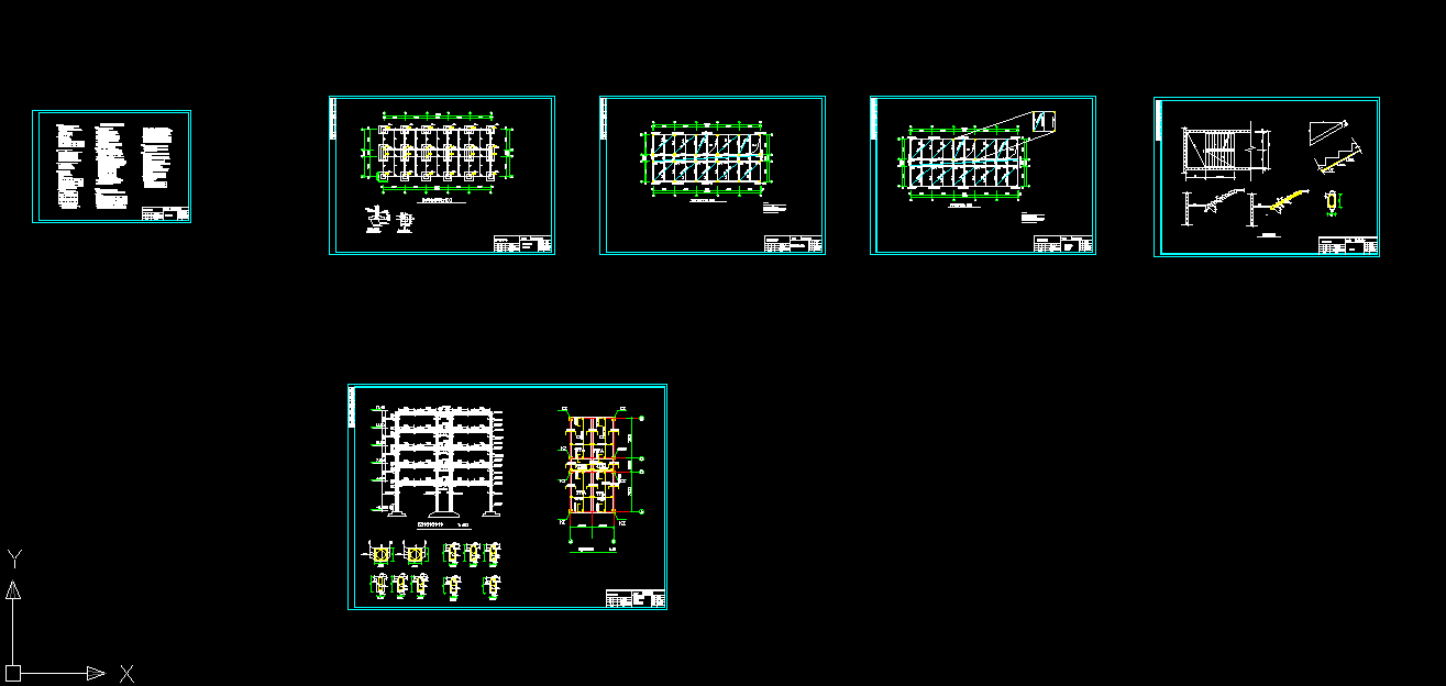
Word版说明书1份,共96页,约22000字

CAD版本图纸,共17张


  摘要:本工程为华隆大厦写字楼设计。采用框架结构,主体为5层,建筑总高为21.3m。该设计充分考虑到了建筑的外观、造型、功能使用、经济以及实际可行性等因素。

结构设计则主要进行了建筑方案中框架第4-6轴的设计。在确定框架布局之后,用迭代法进行竖向荷载(恒载以及活载)的计算;然后采用D值法计算风荷载作用,用底部剪力法计算水平地震作用;最后内力组合,并找出最不利的一组或几组内力组合结果,选取最不安全的结构计算配筋并绘图。

关键词:框架结构;建筑设计;结构设计;内力组合


目录

1工程概况••••••••••••••••••••••••••••••••••••••••••••••••••••••••1

    1.1 涉及项目名称及基本情况•••••••••••••••••••••••••••••••••1

    1.2 建筑地点及基地地形•••••••••••••••••••••••••••••••••••••1

    1.3 设计资料•••••••••••••••••••••••••••••••••••••••••••••••••1

2结构布置••••••••••••••••••••••••••••••••••••••••••••••••••••••••1

    2.1 结构选型及布置方案•••••••••••••••••••••••••••••••••••••1

    2.2梁、柱截面尺寸估算••••••••••••••••••••••••••••••••••••••2

3确定结构计算简图及梁柱线刚度••••••••••••••••••••••••••••••••3

    3.1 确定框架计算简图••••••••••••••••••••••••••••••••••••••••3

    3.2框架梁柱的线刚度计算 •••••••••••••••••••••••••••••••••••3

4荷载标准值计算••••••••••••••••••••••••••••••••••••••••••••••••5

    4.1恒载标准值计算•••••••••••••••••••••••••••••••••••••••••••5

    4.2 活荷载标准值计算•••••••••••••••••••••••••••••••••••••••6

    4.3 竖向荷载下框架受荷总图••••••••••••••••••••••••••••••••7

5风荷载计算••••••••••••••••••••••••••••••••••••••••••••••••••••12

    5.1风荷载标准值计算•••••••••••••••••••••••••••••••••••••••12

    5.2 侧移刚度D••••••••••••••••••••••••••••••••••••••••••••••13

    5.3 风荷载作用下框架侧移计算•••••••••••••••••••••••••••••14

6水平地震作用的计算•••••••••••••••••••••••••••••••••••••••••••15

    6.1  重力荷载代表值计算•••••••••••••••••••••••••••••••••••15

    6.2 结构基本自震周期计算•••••••••••••••••••••••••••••••••17

    6.3多遇水平地震作用计算••••••••••••••••••••••••••••••••••17

7内力的计算••••••••••••••••••••••••••••••••••••••••••••••••••••18

    7.1 框架在风荷载作用下的内力计算••••••••••••••••••••••••18

    7.2  框架在地震荷载作用下的内力计算•••••••••••••••••••••22

    7.3 恒荷载标准值作用下的内力计算••••••••••••••••••••••••25

    7.4  活荷载标准值作用下的内力计算•••••••••••••••••••••••30

8内力组合••••••••••••••••••••••••••••••••••••••••••••••••••••••35

9配筋计算•••••••••••••••••••••••••••••••••••••••••••••••••••••••46

    9.1 框架柱截面设计•••••••••••••••••••••••••••••••••••••••••46

    9.2  框架梁截面设计•••••••••••••••••••••••••••••••••••••••64

10基础设计•••••••••••••••••••••••••••••••••••••••••••••••••••••68

    10.1 基本情况••••••••••••••••••••••••••••••••••••••••••••••68

    10.2基础选型•••••••••••••••••••••••••••••••••••••••••••••••68

    10.3基础顶部的荷载••••••••••••••••••••••••••••••••••••••••68

    10.4基础设计•••••••••••••••••••••••••••••••••••••••••••••••69

11 楼板设计••••••••••••••••••••••••••••••••••••••••••••••••••••73

    11.1荷载计算•••••••••••••••••••••••••••••••••••••••••••••••73

    11.2按弹性理论进行弯矩计算••••••••••••••••••••••••••••••73

    11.3配筋计算•••••••••••••••••••••••••••••••••••••••••••••••74

12  楼梯设计•••••••••••••••••••••••••••••••••••••••••••••••••••78

    12.1踏步板计算•••••••••••••••••••••••••••••••••••••••••••••78

    12.2 梯段斜梁设计•••••••••••••••••••••••••••••••••••••••••••••79

    12.3平台板设计•••••••••••••••••••••••••••••••••••••••••••••80

    12.4平台梁设计•••••••••••••••••••••••••••••••••••••••••••••81

参考文献•••••••••••••••••••••••••••••••••••••••••••••••••••••••87

致谢••••••••••••••••••••••••••••••••••••••••••••••••••••••••••••• 88


温馨提示:

1、题目前面的备注【字母数字编号】为本站整理分类的编号,与课题内容无关,请选题时忽视;

2、若题目上备注三维,则表示文件里包含三维源文件,由于三维组成零件数量较多,为保证预览截图的简洁性,本站将三维文件夹进行了打包。三维及CAD预览截图,均为本站电脑打开软件进行截图的,保证能够打开,下载原件超高清,下载后解压即可;

3、本站所有资源如无特殊说明,都需要本地电脑安装Office2007。图纸软件为AutoCAD,PROE,UG,SolidWorks,CATIA等;

4、本站所有图文资料仅供用户学习参考,不作为任何商用或其他用途;
5、本站不保证下载资源的准确性、安全性和完整性, 不包修改,不支持退换,同时也不承担用户因使用这些下载资源对自己和他人造成任何形式的伤害或损失;

6、 下载文件中如有侵权或不适当内容,请与我们联系,我们立即纠正。


线