

作品包括:
说明书一份,共27页,约7400字
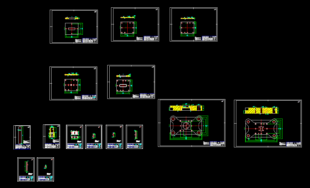
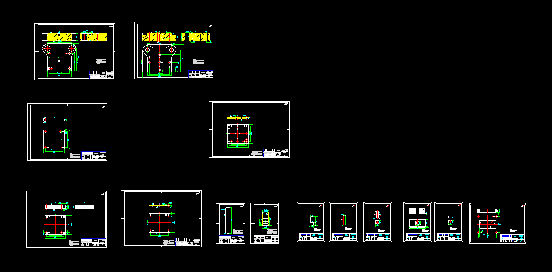
CAD版本图纸,共34张
本设计是对托架进行冲压模具的设计。此设计说明书中简要概述了冲压模具目前的发展状况和发展趋势。然后对工件进行了详细工艺性分析以及冲压方案的确定。按照冲压模具设计的一般步骤,计算并设计了本模具上的主要零部件,如:凸模、凹模、凸凹模、凸模固定板、垫板、凹模固定板、卸料板、挡料销、推件板、顶件块等。模架采用标准模架,选用了合适的冲压设备主要内容包括产品的工艺性分析、制定及分析工艺并确定最佳方案、模具类型及结构分析、排样图的设计及材料利用率的计算、冲裁力、弯曲力和压力中心的计算、以及各个模具零部件的计算选择及标准化、冲压设备选择等等
目录
目录 1
绪 论 3
第1章 零件的工序组合 4
第2章 落料冲孔模的设计 5
2.1 零件工艺性分析 5
2.1.1 零件的结构分析 5
2.1.2 零件的材料分析 6
2.1.3 零件的质量要求 6
2.2 模具设计方案比较 6
2.3 确定模具类型和模具结构 7
2.3.1 模具类型 7
2.3.2 操作与定位方式 7
2.3.3 卸料与出件方式 7
2.3.4 模座类型及精度 7
2.4 排样设计的计算 7
2.4.1零件展开长度的计算 7
2.4.2 排样设计 8
2.5 冲裁力的计算 9
2.5.1 冲裁模刃口形式 9
2.5.2 冲裁力计算 9
2.6 模具刃口尺寸及公差确定 11
2.6.1 模具刃口尺寸计算 11
2.6.2 刃口尺寸及公差计算 11
2.7 凹模的设计 12
2.7.1 凹模刃口结构 12
2.7.2 凹模厚度计算 12
2.7.3 凹模外形尺寸计算 12
2.8 其他板类零件的设计 13
2.8.1 板类零件长度及宽度确定 13
2.8.2 板类零件厚度计算 13
2.9 弹性卸料元件的设计 14
2.9.1 弹性元件的设计 14
2.9.2 卸料螺钉的设计 14
2.10 凸模的设计 15
2.10.1 凸模类型 15
2.10.2 凸模长度计算和凸凹模长度计算 15
2.10.3 凸模结构形式和凸凹模的结构形式 15
2.11 定位元件的设计 15
2.12 模具闭合高度的计算 16
2.13 模座模柄的设计与选择 16
2.13.1 模座的选择 16
2.13.2 模座的结构设计 16
2.13.3 模柄的选择 17
2.13.4 模柄的结构设计 18
2.14 导向元件的设计与选择 18
2.14.1 导柱的设计 18
2.14.2 导套的设计 19
2.15 紧固件的设计与选择 20
2.15.1 紧固螺钉的设计与选择 20
2.15.2 销钉的设计与选择 20
2.16 模具装配图的绘制 21
2.16.1 明细栏 21
2.16.2 技术要求 21
2.16.3 装配图 23
结果与建议 24
致 谢 25
参考文献 26
温馨提示:
1、题目前面的备注【字母数字编号】为本站整理分类的编号,与课题内容无关,请选题时忽视;
2、若题目上备注三维,则表示文件里包含三维源文件,由于三维组成零件数量较多,为保证预览截图的简洁性,本站将三维文件夹进行了打包。三维及CAD预览截图,均为本站电脑打开软件进行截图的,保证能够打开,下载原件超高清,下载后解压即可;
3、本站所有资源如无特殊说明,都需要本地电脑安装Office2007。图纸软件为AutoCAD,PROE,UG,SolidWorks,CATIA等;
4、本站所有图文资料仅供用户学习参考,不作为任何商用或其他用途;
5、本站不保证下载资源的准确性、安全性和完整性, 不包修改,不支持退换,同时也不承担用户因使用这些下载资源对自己和他人造成任何形式的伤害或损失;
6、 下载文件中如有侵权或不适当内容,请与我们联系,我们立即纠正。