

作品包括:
说明书1份,共38页,约13000字左右
CAD版本本图纸,共2张
UG三维图2张
摘 要
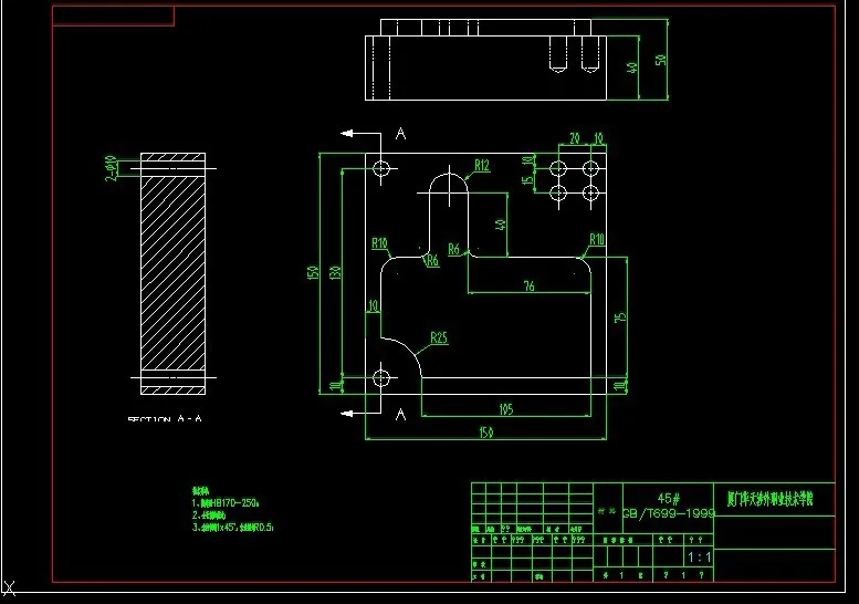
随着科学技术飞速发展和经济竞争的日趋激烈,机械产品的更新速度越来越快,数控加工技术作为先进生产力的代表,在机械及相关行业领域发挥着重要的作用,机械制造的竞争,其实只是数控技术的竞争。本次毕业课题设计通过对凸模零件进行结构分析,需要对其进行编程、钻孔、铣削等数控加工,能较好地满足了实际精度要求,提高了加工质量和设计效率。合适的工艺规程可以加工出符合精度要求的合格零件。依据整体功能确定各部位的结构并进行设计造型。从结构上分析零件,制定加工所需的工艺规程,从毛坯的确定到设计工艺路线,根据所需选择适当的机床、刀具、相应的夹具、加工程序的编制和零件的检验。文中程序的编制采用UG软件自动编程与手动编程相结合的方法生成。
关键词: 零件的分析;工艺;数控加工;数控编程
目录
摘 要 I
ABSTRACT II
1 绪 论 1
2 零件加工工艺分析 2
2.1 零件图形分析 2
2.1.1 图形分析 2
2.1.2 零件材料分析 3
2.1.3 精度分析 3
2.2 结构工艺性分析 3
2.2.1 结构分析 3
2.2.2 毛坯、余量的确定 4
3 加工方案的制定 4
3.1 加工方案分析 4
3.2 加工方案制定 5
4 定位基准的选择 5
4.1 基准的分类 5
4.2 定位基准的选择 6
4.2.1 粗基准的选择 6
4.2.2 精基准的选择 7
5 确定装夹方案和选择夹具 8
5.1 找正法 8
5.2 用夹具装夹 8
6 设备选择 10
6.1 确定型号 10
6.2 设备的介绍 10
7 刀具与切削液选择 11
7.1 刀具材料的选择 11
7.2 刀具类型的选择 12
7.3 刀具参数的选择 12
7.3.1 面铣刀主要参数的选择 12
7.3.2 立铣刀主要参数的选择 12
7.4 切削液的选择 13
8 切削用量的选择 14
8.1背吃刀量AP 14
8.2进给量F和进给速度VF的确定 15
8.3切削速度VC 16
8.4确定主轴转速N 16
9 确定进给路线 17
10 数控加工工艺过程卡及工序卡片 18
11 程序编制及零件加工 23
11.1 加工准备 23
11.2 程序验检 23
11.3程序编制 23
11.4 加工零件 27
总 结 28
致 谢 29
参考文献 30
温馨提示:
1、题目前面的备注【字母数字编号】为本站整理分类的编号,与课题内容无关,请选题时忽视;
2、若题目上备注三维,则表示文件里包含三维源文件,由于三维组成零件数量较多,为保证预览截图的简洁性,本站将三维文件夹进行了打包。三维及CAD预览截图,均为本站电脑打开软件进行截图的,保证能够打开,下载原件超高清,下载后解压即可;
3、本站所有资源如无特殊说明,都需要本地电脑安装Office2007。图纸软件为AutoCAD,PROE,UG,SolidWorks,CATIA等;
4、本站所有图文资料仅供用户学习参考,不作为任何商用或其他用途;
5、本站不保证下载资源的准确性、安全性和完整性, 不包修改,不支持退换,同时也不承担用户因使用这些下载资源对自己和他人造成任何形式的伤害或损失;
6、 下载文件中如有侵权或不适当内容,请与我们联系,我们立即纠正。