

作品包括:
Word版说明书一份,共52页,约9700字
CAD版本图纸,共5张
目录
绪论1
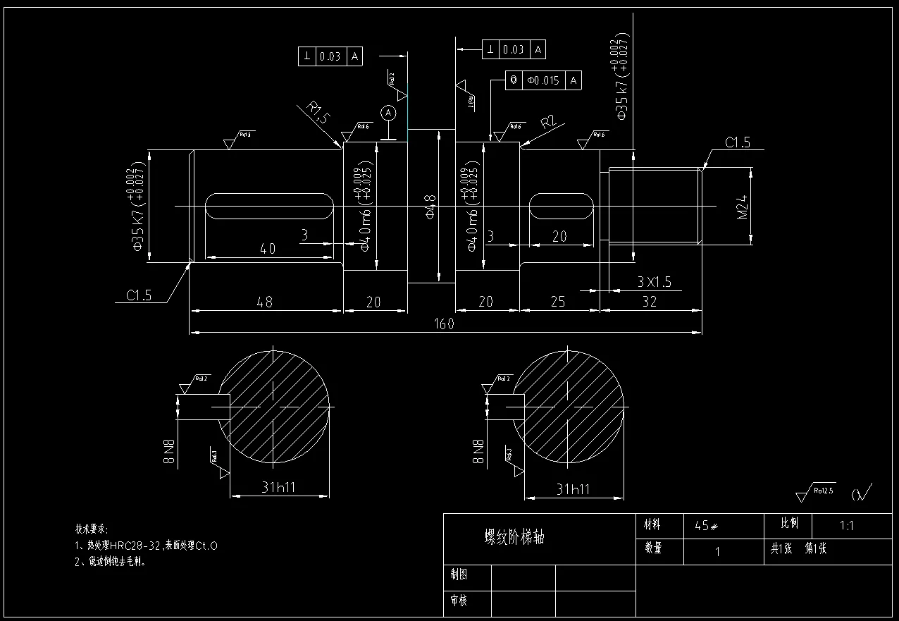
1:零件图分析2
2.零件图的总体工艺分析3
2.1选毛坯3
2.2工艺分析4
2.3加工工艺路线5
3.零件加工工艺过程卡6
4.确定数控加工工序内容8
5.件1带螺纹端数控加工设计9
5.1制定带螺纹端的加工步骤9
5.2 确定装夹方案9
5.3确定数控车床9
5.4确定数控车削刀具10
5.5 确定切削用量10
5.6刀具走刀轨迹及数控程序10
6.1制定孔端的加工步骤27
6.2 确定装夹方案27
6.3 确定数控车削刀具28
6.4编程相关坐标点的确定28
6.5 确定切削用量29
6.6加工走刀轨迹及数控程序29
7.件2数控加工设计36
7.1制定带螺纹端的加工步骤36
7.2 确定装夹方案36
5.3确定数控车削刀具36
5.4刀具走刀轨迹及数控程序37
8程序输入与机床操作45
8.1程序输入及调试45
8.2程序校验45
8.2.1数控加工仿真45
8.2.3抬刀空运行程序45
8.24 首件 试切45
8.3机床操作46
8.3.1回零46
8.3.2对刀46
8.3.3设置加工参数46
设计总结47
致 谢48
参考文献49
温馨提示:
1、题目前面的备注【字母数字编号】为本站整理分类的编号,与课题内容无关,请选题时忽视;
2、若题目上备注三维,则表示文件里包含三维源文件,由于三维组成零件数量较多,为保证预览截图的简洁性,本站将三维文件夹进行了打包。三维及CAD预览截图,均为本站电脑打开软件进行截图的,保证能够打开,下载原件超高清,下载后解压即可;
3、本站所有资源如无特殊说明,都需要本地电脑安装Office2007。图纸软件为AutoCAD,PROE,UG,SolidWorks,CATIA等;
4、本站所有图文资料仅供用户学习参考,不作为任何商用或其他用途;
5、本站不保证下载资源的准确性、安全性和完整性, 不包修改,不支持退换,同时也不承担用户因使用这些下载资源对自己和他人造成任何形式的伤害或损失;
6、 下载文件中如有侵权或不适当内容,请与我们联系,我们立即纠正。