

作品包括:
Word版说明书1份,共51页,约8900字
工艺卡10张
工艺过程卡1张
数控刀具卡1张
CAD版本图纸,共6张
UG三维图一份
MacterCAM三维一份
加工仿真视频1份


摘要
在零件的数控加工过程中,零件的数控加工工艺分析和工艺设计至关重要。无论是手工编程还是自动编程,在加工前都要对所加工零件进行工艺分析,制定加工方案,选择加工设备、夹具、刀具、量具、确定切削用量、安排加工顺序、制定走刀路线等。在编程过程中,还要对一些工艺问题(如工件的装夹、对刀、换刀、刀具补偿等)做相应处理。如果在加工零件之前不做这一系列的准备工作,很难加工出符合标准的零件,因此程序编制中的工艺分析和工艺设计是一项十分重要的工作。
本文根据该零件的图纸及技术要求,对该零件进行了详细的数控加工工艺分析,根据分析的结果,确定了该零件的加工方法、装夹方式、定位基准、使用刀具、加工顺序安排、工步划分,走刀路线和切削用量等,并编制了零件的数控加工工艺卡片、数控加工工序卡片和刀具卡片,最后,采用手工编程编制了该零件的数控加工程序。
关键词:数控加工;轴类配合件;加工工序;加工程序
目录
摘要I
Abstract II
绪论1
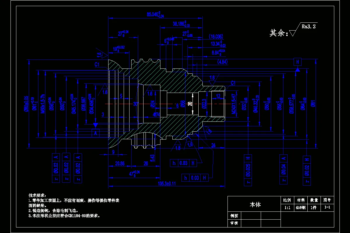
1零件介绍2
2加工工艺方案分析7
2.1件1件套定位基准的选择7
2.2件2调节轴定位基准的选择8
2.3件3锥轴定位基准的选择8
2.4件4本体定位基准的选择9
2.5件5法兰盘定位基准的选择10
3加工工艺方案分析12
3.1加工设备的选择12
3.2刀具的选择13
3.3量具的选择14
3.4确定加工方案14
4加工工艺卡的拟定18
5零件的三维建模19
5.1 Mastercam软件简介19
5.2零件三维造型设计20
6仿真加工28
6.1仿真加工刀路设计28
6.2配合五件套仿真验证40
6.3后处理45
总结46
致谢47
参考文献48
温馨提示:
1、题目前面的备注【字母数字编号】为本站整理分类的编号,与课题内容无关,请选题时忽视;
2、若题目上备注三维,则表示文件里包含三维源文件,由于三维组成零件数量较多,为保证预览截图的简洁性,本站将三维文件夹进行了打包。三维及CAD预览截图,均为本站电脑打开软件进行截图的,保证能够打开,下载原件超高清,下载后解压即可;
3、本站所有资源如无特殊说明,都需要本地电脑安装Office2007。图纸软件为AutoCAD,PROE,UG,SolidWorks,CATIA等;
4、本站所有图文资料仅供用户学习参考,不作为任何商用或其他用途;
5、本站不保证下载资源的准确性、安全性和完整性, 不包修改,不支持退换,同时也不承担用户因使用这些下载资源对自己和他人造成任何形式的伤害或损失;
6、 下载文件中如有侵权或不适当内容,请与我们联系,我们立即纠正。