

作品包括:
Word版说明书1份,共31页,约10000字
任务书一份
工艺卡4张
工艺过程卡1张
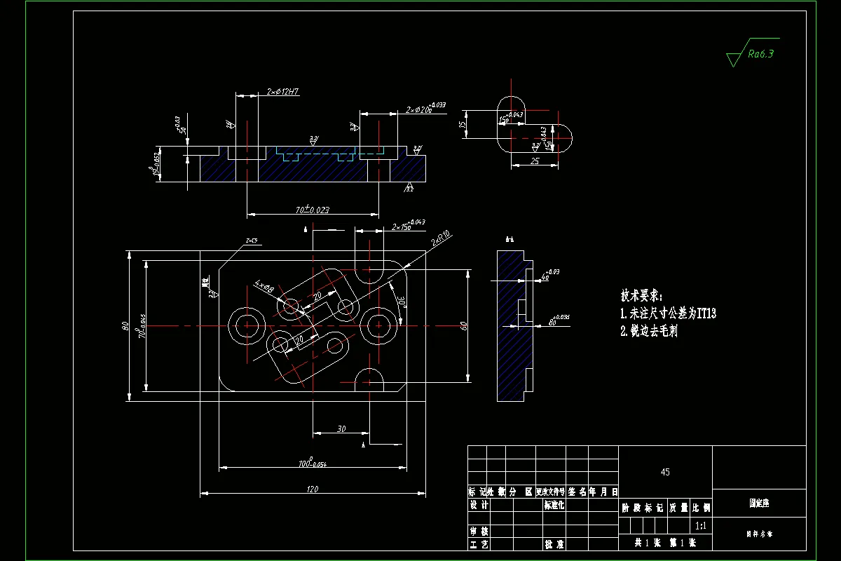
CAD版本图纸,共1张
UG三维图一份

摘要
该零件的加工工艺以及编程为主,主要对工具架固定座零件加工中,存在的问题进行分析,并尝试着通过对加工工艺的改善,达到改善以及解决这些问题。
加工前,通过对零件的结构特点,尺寸精度,形位精度,加工难点及工艺关键点的研究和分析,通过改进加工工艺,使零件的加工精度得以提高,并且使零件精度的要求,尺寸精度,形位公差以及表面粗糙度的加工通过对此性能在加工中得以一次完成,而且对零件的加工工艺规律进行总结,分析在加工中易出现的问题,提高对此类零件在加工中心的加工过程中的准确性、实用性,以达到精简加工过程,稳定加工质量的目的。
关键词数控铣床数控工艺编程
目录
摘要I
Abstract II
1绪论1
1.1数控机床的产生和发展1
1.2数控机床的加工特点2
2工艺性分析3
2.1零件介绍3
2.2零件加工工艺性分析4
2.3零件的技术要求4
3毛坯与工艺装配的选择5
3.1毛坯的选择5
3.2加工工艺路线的确定7
3.2.1工序的划分原则7
3.2.2加工顺序的安排8
3.2.3工艺路线安排8
3.3选择并确定工艺装备9
3.3.1数控机床的选择9
3.3.2夹具的选择10
3.3.3量具的选择11
4工艺参数选择13
4.1切削用量的选择原则13
4.2切削用量的选择14
4.3机床实际参数14
5加工工艺文件制定16
5.1制定工艺文件16
5.2刀具卡16
5.3工序卡16
6加工程序编制17
6.1.确定编程原点17
6.2UG软件介绍17
6.3数控编程18
6.5零件仿真加工23
总结26
参考文献27
致谢28
温馨提示:
1、题目前面的备注【字母数字编号】为本站整理分类的编号,与课题内容无关,请选题时忽视;
2、若题目上备注三维,则表示文件里包含三维源文件,由于三维组成零件数量较多,为保证预览截图的简洁性,本站将三维文件夹进行了打包。三维及CAD预览截图,均为本站电脑打开软件进行截图的,保证能够打开,下载原件超高清,下载后解压即可;
3、本站所有资源如无特殊说明,都需要本地电脑安装Office2007。图纸软件为AutoCAD,PROE,UG,SolidWorks,CATIA等;
4、本站所有图文资料仅供用户学习参考,不作为任何商用或其他用途;
5、本站不保证下载资源的准确性、安全性和完整性, 不包修改,不支持退换,同时也不承担用户因使用这些下载资源对自己和他人造成任何形式的伤害或损失;
6、 下载文件中如有侵权或不适当内容,请与我们联系,我们立即纠正。