

作品包括:
Word版说明书1份,共51页,约12000字
工艺卡1套
工艺过程卡1套
CAD版本图纸,共3张
UG三维图一份

摘要
目前数控技术所涉及到的知识面非常广阔,渗透到各种行业,比如机械行业,制造业,军事业。差不多将我们在大学生涯所学的所有专业知识综合运用起来。这次设计使我更加熟悉的数控知识,同时使我更加熟练了对CAD以及mastercam软件的了解和对其熟练的运用,因此通过本次设计不仅仅是一次对我们大学生涯里的知识的了解,也是对我们的测验。
本主要内容是加工工艺设计及编程仿真,首先根据零件的图纸及技术要求进行了详细的数控加工工艺分析,分析过后对该零件进行了数控加工工艺设计,拟定了加工方案,选择了加工设备、加工刀具、夹具,确定了装夹方案、切削用量,制定了加工顺序、编制了零件的数控加工工序卡片和刀具卡片等。最后,详细说明了如何运用mastercam自动编程编制该零件的数控程序。
关键词:iphone X手机壳凹型芯;工艺分析;方案设计;数控编程
目录
摘要1
Abstract 2
第一章绪论4
1.1数控机床的发展4
1.2数控加工工艺的基本知识5
1.3数控加工工艺的特点6
第二章零件分析7
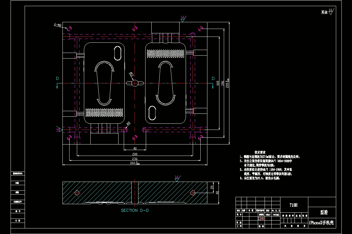
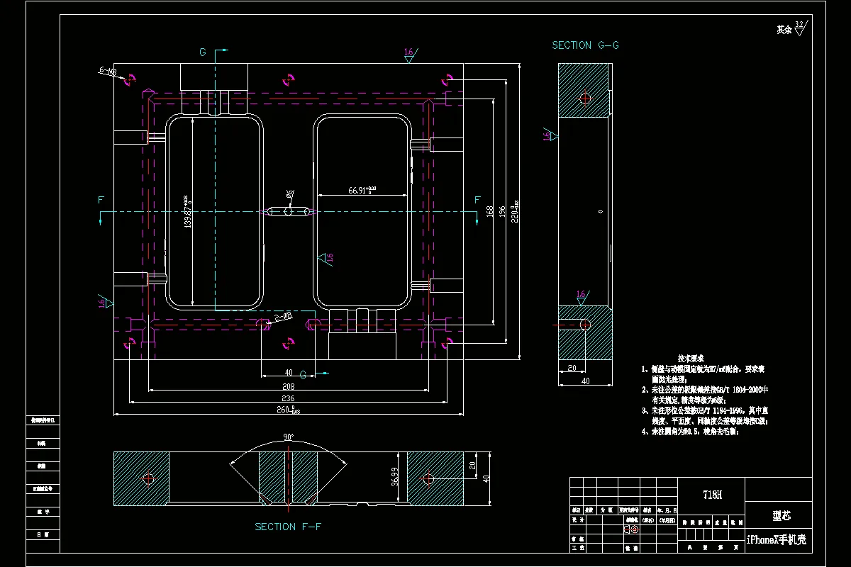
2.1 iPhone X手机壳模具图7
2.2零件加工工艺性分析7
2.2.1型腔零件图分析7
2.2.2型芯零件图分析9
第三章加工工艺11
3.1定位基准的选择11
3.1.1粗基准的选择11
3.1.2精基准的选择11
3.2夹紧方案的选择11
3.3加工机床的确定13
3.4刀具的选择14
3.5三要素的确定16
3.6量具选用20
第四章加工工艺文件制定21
第五章零件仿真23
5.1零件加工顺序及软件加工方式的确定23
5.2软件编程24
5.2.1型腔加工仿真24
5.2.2型芯加工仿真33
5.3软件仿真43
5.4后处理44
总结49
致谢50
参考文献51
温馨提示:
1、题目前面的备注【字母数字编号】为本站整理分类的编号,与课题内容无关,请选题时忽视;
2、若题目上备注三维,则表示文件里包含三维源文件,由于三维组成零件数量较多,为保证预览截图的简洁性,本站将三维文件夹进行了打包。三维及CAD预览截图,均为本站电脑打开软件进行截图的,保证能够打开,下载原件超高清,下载后解压即可;
3、本站所有资源如无特殊说明,都需要本地电脑安装Office2007。图纸软件为AutoCAD,PROE,UG,SolidWorks,CATIA等;
4、本站所有图文资料仅供用户学习参考,不作为任何商用或其他用途;
5、本站不保证下载资源的准确性、安全性和完整性, 不包修改,不支持退换,同时也不承担用户因使用这些下载资源对自己和他人造成任何形式的伤害或损失;
6、 下载文件中如有侵权或不适当内容,请与我们联系,我们立即纠正。