

作品包括:
Word版说明书1份,共26页,约10000字
工序卡一份
刀具卡一份
CAD版本图纸,共2张
UG三维图一份

摘要
随着科技的不断发展,数控技术在企业中发挥越来越重要的作用。本设计通过对数控加工的工艺特点、加工零件工艺性等进行分析,选择正确的加工方法,设计合理的加工工艺过程,充分发挥数控加工的优质、高效、低成本的特点。设计说明书以数控车床车削典型轴为例,根据被加工工件的材料、轮廓形状、加工精度等选用合适的机床,制定加工方案,确定零件的加工顺序,各工序所用刀具,夹具和切削用量等,编写加工零件的程序。
关键词:工艺分析;刀具;切削用量;加工的程序
目录
摘要3
ABSTRACT 4
第1章绪论5
1.1数控加工技术国内外发展现状5
1.2数控加工技术国内外现状5
1.3本研究的目的与意义6
1.4数控加工工艺与普通加工工艺的区别及特点6
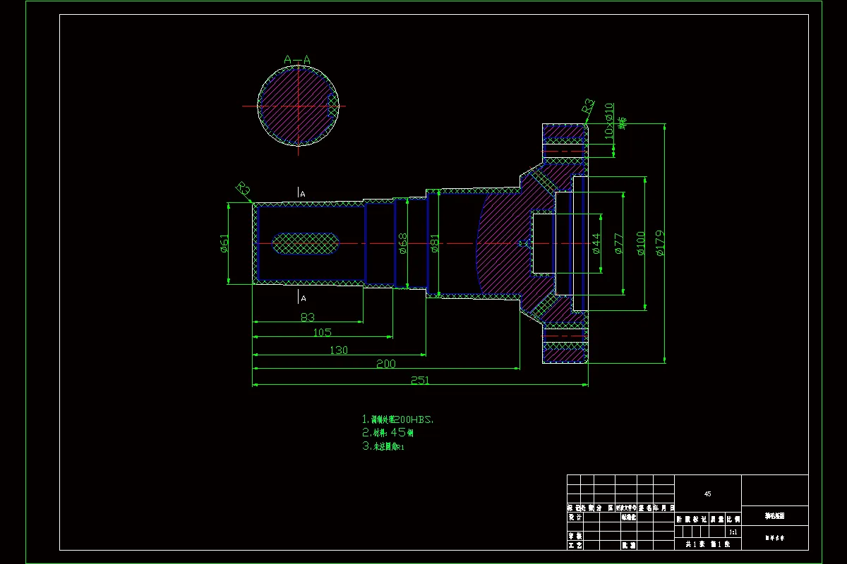
第二章典型轴零件的工艺分析7
2.1零件的结构特点分析7
2.2零件的技术要求分析7
2.3零件的结构工艺性分析8
2.4确定毛坯8
2.4.1毛坯类型8
2.4.2毛坯尺寸确定9
第三章典型轴零件的工艺规程设计10
3.1表面加工方法的确定10
3.2加工顺序的安排10
3.3定位基准及装夹方式的选择11
3.4制订工艺路线12
3.5选择加工设备机床13
3.6选择刀具14
3.7确定切削用量15
3.7.1、背吃刀量的确定15
3.7.2、切削用量的具体选择16
3.8加工工艺卡片拟订18
第四章典型轴零件的程序编制19
4.1数控编程的定义及分类19
4.1.1数控编程的分类19
4.1.2编程方法的选择19
4.2编程原点的确定19
4.3数控车加工程序编写20
4.3.1工件左端加工程序编写20
4.3.2工件右端加工程序编写22
设计小结24
参考文献25
致谢26
温馨提示:
1、题目前面的备注【字母数字编号】为本站整理分类的编号,与课题内容无关,请选题时忽视;
2、若题目上备注三维,则表示文件里包含三维源文件,由于三维组成零件数量较多,为保证预览截图的简洁性,本站将三维文件夹进行了打包。三维及CAD预览截图,均为本站电脑打开软件进行截图的,保证能够打开,下载原件超高清,下载后解压即可;
3、本站所有资源如无特殊说明,都需要本地电脑安装Office2007。图纸软件为AutoCAD,PROE,UG,SolidWorks,CATIA等;
4、本站所有图文资料仅供用户学习参考,不作为任何商用或其他用途;
5、本站不保证下载资源的准确性、安全性和完整性, 不包修改,不支持退换,同时也不承担用户因使用这些下载资源对自己和他人造成任何形式的伤害或损失;
6、 下载文件中如有侵权或不适当内容,请与我们联系,我们立即纠正。