

作品包括:
说明书1份,共43页,约11000字左右
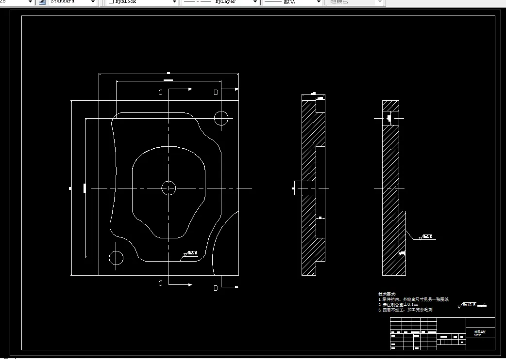
CAD版本本图纸,共2张
摘 要
数控机床的出现以及带来的巨大利益,引起世界各国科技界和公益界的普遍重视。发展数控机床是当前我国机械制造业改造的必由之路,是未来工厂自动化的基础。数控机床的大量使用,需要大批熟练掌握现代数控技术的人员。数控技术的应用不但给传统制造业带来了革命性的变化,使制造业成为工业化的象征,而且随着数控技术的不断发展和应用领域的扩大,它对国计民生的一些重要行业的发展起着越来越重要的作用。
随着科技的发展,数控技术也在不断的发展更新,现在数控技术也称计算机数控技术,加工软件的更新快,CAD/CAM的应用是一项实践性很强的技术。如像UG, Pro/E, Cimitron, Master CAM,CAXA制造工程师等。
数控技术是技术行极强的工作,尤其在模具领域应用最为广泛,所以这要求从业人员具有很高的机械加工工艺知识,数控编程知识和数控操作技能。本文主要通过铣削加工滑盖的凹凸模数控工艺分析与加工,总结所学的专业基础知识,全面考虑可能影响在铣削、钻削、绞削加工中的因素,设计其加工工艺和编辑程序,完成配合要求。
关键词:加工工艺,定位,夹紧,专用夹具
第一章 绪论 1
1.1数控技术简介 1
1.2数控加工的特点 1
1.3本课题的主要内容及任务 1
第二章 零件图样及工艺的分析 3
2.1零件的结构特点分析 3
2.1.1零件的结构特点分析 3
第三章 毛坯的选择 5
3.1毛坯的制造形式 6
第四章 数控加工工艺路线的确定 9
4.1数控机床的合理选择 11
4.2表面加工方法的选择 13
4.3表面加工方法的选择 15
4.4 加工顺序的安排 19
4.5 加工工序及工步的划分 21
第五章 椭圆盖板的建模设计 25
5.1 零件数据采集 26
5.2 建模过程 30
第六章 刀具与切削用量的选取35
6.1刀具的选择 31
6.2 切削用量的选择 32
第七章 数控加工仿真及程序的编制 35
7.1编程方法的选择 35
7.2编程坐标系的确定 36
7.3数控加工仿真及程序的编制 36
结论 37
参 考 文 献 38
致 谢 39
温馨提示:
1、题目前面的备注【字母数字编号】为本站整理分类的编号,与课题内容无关,请选题时忽视;
2、若题目上备注三维,则表示文件里包含三维源文件,由于三维组成零件数量较多,为保证预览截图的简洁性,本站将三维文件夹进行了打包。三维及CAD预览截图,均为本站电脑打开软件进行截图的,保证能够打开,下载原件超高清,下载后解压即可;
3、本站所有资源如无特殊说明,都需要本地电脑安装Office2007。图纸软件为AutoCAD,PROE,UG,SolidWorks,CATIA等;
4、本站所有图文资料仅供用户学习参考,不作为任何商用或其他用途;
5、本站不保证下载资源的准确性、安全性和完整性, 不包修改,不支持退换,同时也不承担用户因使用这些下载资源对自己和他人造成任何形式的伤害或损失;
6、 下载文件中如有侵权或不适当内容,请与我们联系,我们立即纠正。