

作品包括:
说明书1份,共42页,约8800字左右
CAD版本本图纸,共9张
SW三维图一份
摘要
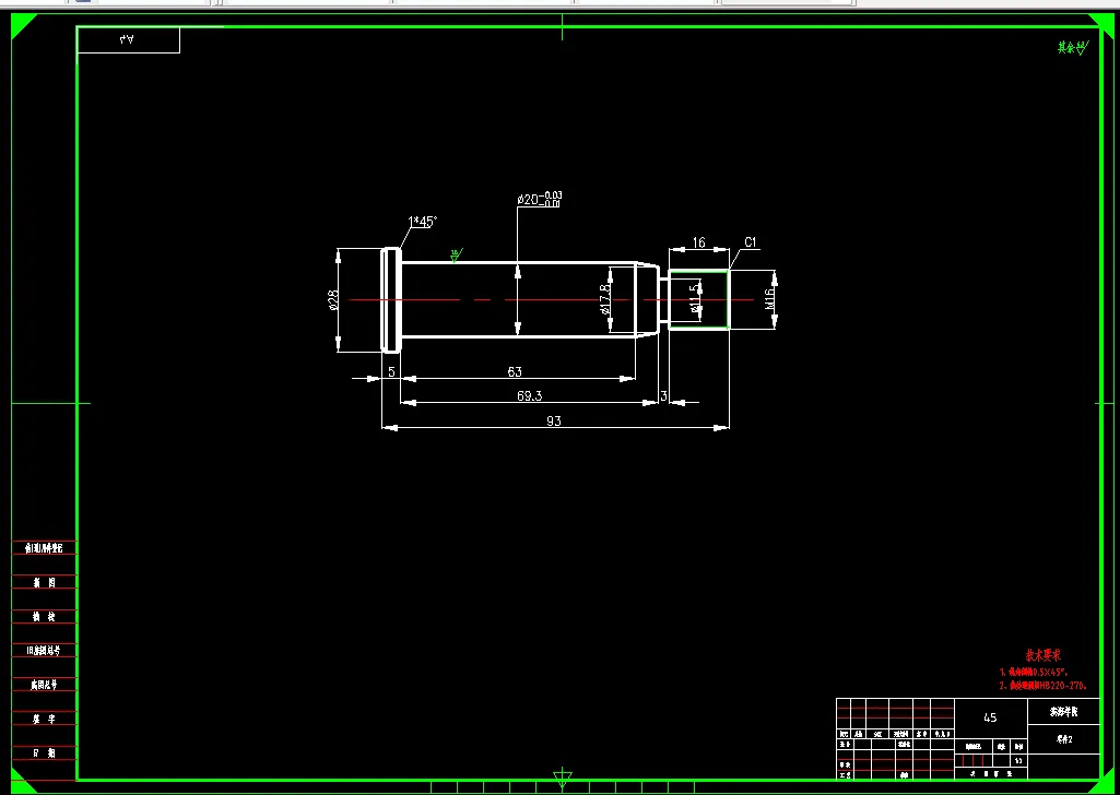
文章的主要内容为芯轴套类部件造型设计与数控加工工艺设计,并在零件的手工编程中用到了G01 直线插补命令、G02/G03圆弧插补指令;G81钻孔;M98调用子程序指令等。本篇毕业设计主要针对数控机床的加工及编程的介绍,对芯轴套类部件进行工艺性分析,包括加工工艺的选择和制定,还包括各零件的程序的手工编制。
本次设计的题目是芯轴套类部件造型设计与数控加工工艺设计,重点在于对芯轴套类部件加工的工艺性和力学性能分析,对芯轴套类部件的加工工艺规程进行合理分析,对芯轴套类部件进行加工工艺的规程设计,包括了芯轴套类部件的数控铣削加工和数控车削加工,并且介绍了数控加工工艺及数控编程。
关键词:芯轴套类部件;编程;工艺;数控加工
目 录
摘 要 I
Abstract II
1 绪论 1
1.1制造工业的重要性 2
2 零件结构工艺分析 3
2.1零件的分析 4
2.1.1零件的作用 6
2.1.2零件的尺寸工艺分析 8
2.2零件的主要技术要求 10
2.2.1内孔的精度及位置精度 12
2.2.2其他要求 15
2.3时间定额计算及生产安排 16
3 工艺规程设计 18
3.1选择定位基准 20
3.2选择加工设备和工艺设备 22
3.3机械加工余量、工序尺寸及公差的确定 23
4 数控加工工艺设计 24
4.1 数控编程的定义及分类 26
4.1.1数控编程的定义 28
4.1.2数控编程的分类 30
4.1.3编程方法的选择 32
4.2 编程原点的确定 34
4.3 零件造型及加工 36
4.4 芯轴套类部件的仿真加工 38
4.5 加工程序清单 39
结论 40
致谢 41
参考文献 42
温馨提示:
1、题目前面的备注【字母数字编号】为本站整理分类的编号,与课题内容无关,请选题时忽视;
2、若题目上备注三维,则表示文件里包含三维源文件,由于三维组成零件数量较多,为保证预览截图的简洁性,本站将三维文件夹进行了打包。三维及CAD预览截图,均为本站电脑打开软件进行截图的,保证能够打开,下载原件超高清,下载后解压即可;
3、本站所有资源如无特殊说明,都需要本地电脑安装Office2007。图纸软件为AutoCAD,PROE,UG,SolidWorks,CATIA等;
4、本站所有图文资料仅供用户学习参考,不作为任何商用或其他用途;
5、本站不保证下载资源的准确性、安全性和完整性, 不包修改,不支持退换,同时也不承担用户因使用这些下载资源对自己和他人造成任何形式的伤害或损失;
6、 下载文件中如有侵权或不适当内容,请与我们联系,我们立即纠正。