

作品包括:
Word版说明书1份,共28页,约10000字
CAD版本图纸,共8张
摘 要
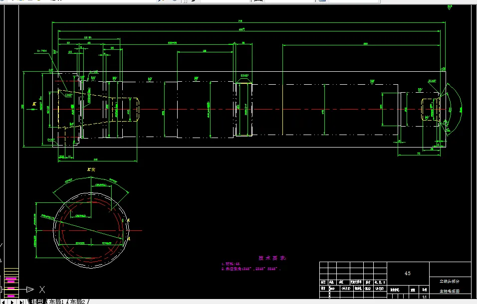
轴类零件是机械制造中最为普遍的零件,对于此零件的工艺分析成为了机械制造中较为常见的,本次课题就是根据提供的立铣头部分的主轴,对该主轴进行工艺设计、夹具设计、数控编程设计。
本文主要包括对立铣头主轴进行零件分析,分析其各表面特征的加工要求,并制定出合理的加工工序,合理选择机床及选择 具和量具,并制定其零件的机械加工工艺过程卡、数控加工的工艺过程卡、数控加工的刀具卡。对其主轴工艺过程设计完成后,对轴的其中一个工序进行夹具设计,本次选择轴的铣槽夹具设计,通过夹具设计熟悉夹具的定位方式、夹紧方式、各个部件设计的方法等。完成夹具设计后再针对工件的整体外形在CAXA数控车软件中,对外形及内孔特征进行数控编程,并导出程序进行后置处理。
关键词:立铣头主轴;工艺设计;夹具设计;数控编程;CAXA数控车;
目录
摘 要2
Abstract3
第1章 零件的工艺分析5
1.1 零件的图样分析5
1.2 零件的作用5
1.3 加工表面的技术要求5
1.4 确定毛坯的制造形式6
第2章 工艺规程设计6
2.1 定位基准的选择6
2.1.1 粗基准的选择6
2.1.2 精基准的选择6
2.2 工艺规程确定7
2.2.1 加工工艺7
2.2.2 加工阶段的划分8
2.3 选择机床及刀具、量具、夹具8
第3章 三维实体9
第4章 确定加工余量及切削所需时间10
4.1 机械加工余量、工序尺寸及毛坯尺寸的确定10
4.2 确定加工表面的尺寸10
4.3 确定切削用量及基本工时12
第5章 数控编程42
5.1 外轮廓车削42
5.2 内孔加工48
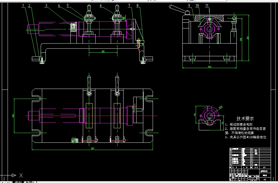
第6章 铣槽夹具设计50
6.1 基准的选择50
6.2 定位元件的设计与选择50
6.3 定位误差分析51
6.4 切削力及夹紧力的计算52
6.5 对刀块的设计53
6.6 夹紧装置设计54
总 结56
参考文献57
致 谢58
温馨提示:
1、题目前面的备注【字母数字编号】为本站整理分类的编号,与课题内容无关,请选题时忽视;
2、若题目上备注三维,则表示文件里包含三维源文件,由于三维组成零件数量较多,为保证预览截图的简洁性,本站将三维文件夹进行了打包。三维及CAD预览截图,均为本站电脑打开软件进行截图的,保证能够打开,下载原件超高清,下载后解压即可;
3、本站所有资源如无特殊说明,都需要本地电脑安装Office2007。图纸软件为AutoCAD,PROE,UG,SolidWorks,CATIA等;
4、本站所有图文资料仅供用户学习参考,不作为任何商用或其他用途;
5、本站不保证下载资源的准确性、安全性和完整性, 不包修改,不支持退换,同时也不承担用户因使用这些下载资源对自己和他人造成任何形式的伤害或损失;
6、 下载文件中如有侵权或不适当内容,请与我们联系,我们立即纠正。