

作品包括:
Word设计说明书1份
工序卡一份
工艺卡一份
UG三维图一份
数控程序一份
摘要
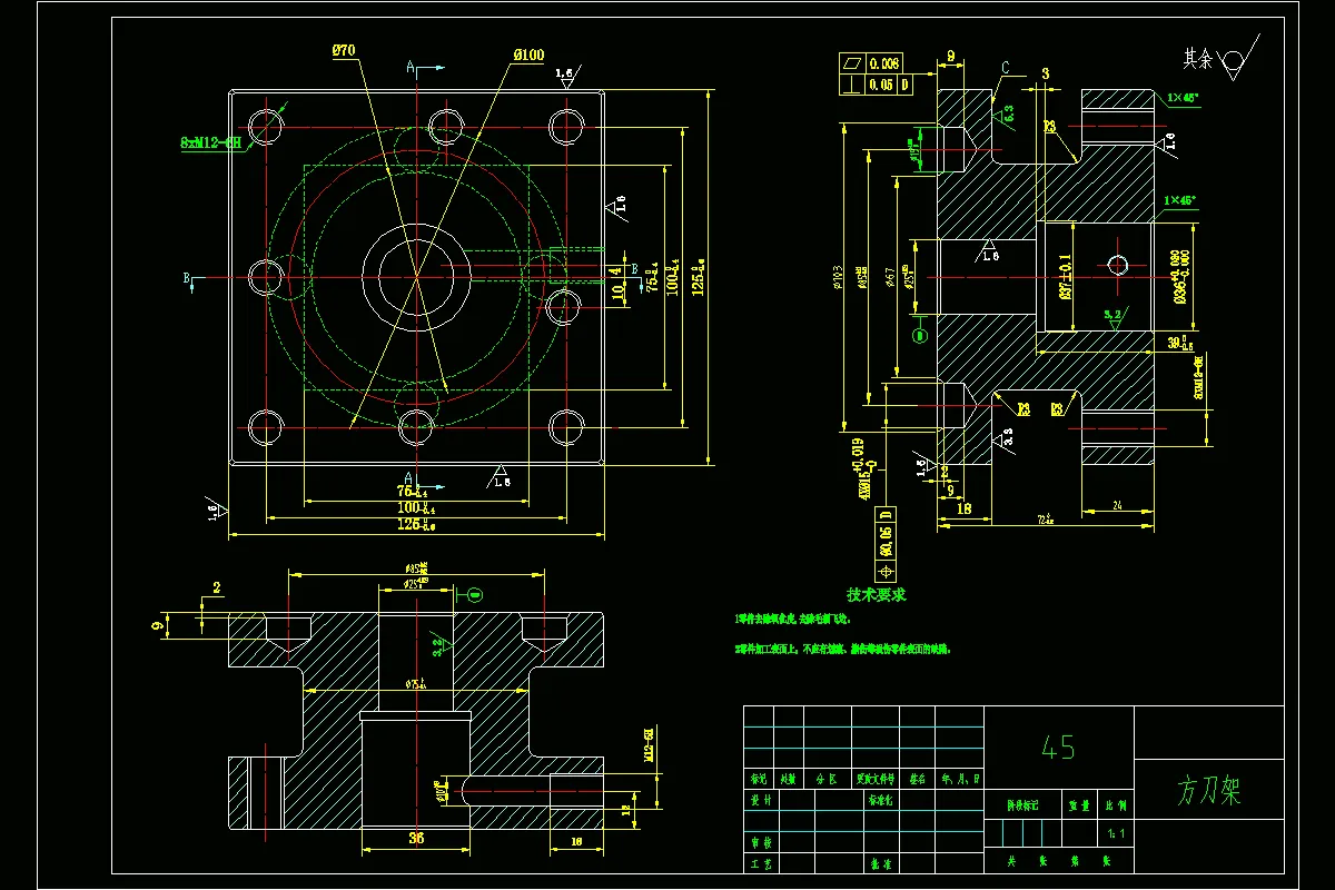
本文介绍了铣削零件从毛坯到成品的加工过程。对零件的结构进行了分析,制定了零件的加工工艺内容。选择了零件毛坯和设备,确定了定位基准与夹具,对零件的加工工艺方案、切削用量的选择等进行了具体的分析。编制了工艺卡、工序卡和刀具卡片,采用UG自动编写程序。并使用UG(CAM)仿真了加工刀具轨迹。铣削加工出零件,进行质量分析。编程,最终将程序录入机床,完成该零件的加工。
温馨提示:
1、题目前面的备注【字母数字编号】为本站整理分类的编号,与课题内容无关,请选题时忽视;
2、若题目上备注三维,则表示文件里包含三维源文件,由于三维组成零件数量较多,为保证预览截图的简洁性,本站将三维文件夹进行了打包。三维及CAD预览截图,均为本站电脑打开软件进行截图的,保证能够打开,下载原件超高清,下载后解压即可;
3、本站所有资源如无特殊说明,都需要本地电脑安装Office2007。图纸软件为AutoCAD,PROE,UG,SolidWorks,CATIA等;
4、本站所有图文资料仅供用户学习参考,不作为任何商用或其他用途;
5、本站不保证下载资源的准确性、安全性和完整性, 不包修改,不支持退换,同时也不承担用户因使用这些下载资源对自己和他人造成任何形式的伤害或损失;
6、 下载文件中如有侵权或不适当内容,请与我们联系,我们立即纠正。