

作品包括:
Word版说明书1份,153页,约88000字
CAD版本图纸,共5张
摘 要
本设计包括三个部分:一般部分、专题部分和翻译部分。
一般部分为凉水井煤矿6.0Mt/a新井设计,共包括10章:1.矿区概述及井田地质特征;2.井田境界和储量;3.矿井工作制度及设计生产能力;4.井田开拓;5.准备方式-盘区巷道布置;6.采煤方法;7.井下运输;8.矿井提升;9.矿井通风与安全技术;10.矿井基本技术经济指标。
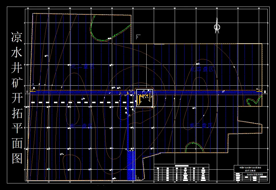
凉水井矿井位于陕西省榆林市神木县境内,井田走向长约7.9km,倾向长约11.0km,面积约69.4km2。主采煤层为4-2、5-2煤层,平均倾角0~3°,平均厚度2.98m。井田工业储量为747.5Mt,可采储量590.72Mt,矿井服务年限为75a。矿井正常涌水量为100~150m3/h,最大涌水量为450m3/h;矿井相对瓦斯涌出量为1.01m3/t,属瓦斯矿井。
根据井田地质条件,设计采用双斜井两水平开拓方式,井田采用盘区式布置方式,共划分为四个盘区,辅运大巷、胶运大巷和回风大巷皆为煤层大巷,布置在4-2煤层中。考虑到本矿井为低瓦斯矿井,经过方案比较矿井通风方式采用中央并列式通风,由于工作面推进长度较大,需风量较多在井田开采后期通风较困难,因此在后期在井田两翼设置两个回风斜井,满足井田后期开采需风量。
针对42101工作面进行了采煤工艺设计。该工作面煤层平均厚度为3.2m,平均倾角1°,顶板岩性以粉砂岩、细粒砂岩为主,局部为中粒砂岩和泥岩。工作面采用长壁一次采全高综合机械化采煤法。采用双滚筒采煤机割煤,往返一次割两刀。采用“三八制”工作制度,截深1.0m,每天8个循环,循环进尺16m,月推进度440m。大巷采用可伸缩式胶带输送机运煤,辅助运输采用无轨胶轮车。
专题部分题目为《岩巷快速施工技术现状与支护趋势》,介绍了矿井岩巷快速施工的现状与支护的趋势,经过查阅大量资料和结合国内外现场应用分析,认为发展快速掘进技术对煤矿经济持续增长有着非常大的意义。
翻译部分为《Mining Science and Technology》中的一篇题目为《Discrimination conditions and process of water-resistant key strata》的论文。
关键词:凉水井矿;双斜井;盘区布置;一次采全高综合机械化采煤;中央并列式;岩巷快速施工与支护;隔水关键层
目录
一般部分
1 矿区概述及井田地质特征 1
1.1矿区概述 1
1.1.1井田位置、范围和交通位置 1
1.1.2地形地貌 1
1.1.3河流及水系 2
1.1.4矿区气象地震 2
1.1.5矿区水源、电源、劳动力及建材来源 2
1.2井田地质特征 2
1.2.1井田勘探程度 2
1.2.2井田煤系地层概述 3
1.2.3井田地质构造 5
1.2.4矿井水文地质特征及评价 5
1.2.5矿井涌水量 7
1.3煤层特征 7
1.3.1可采煤层特征 7
1.3.2煤层围岩性质 8
1.3.3煤的特征 9
1.3.4煤层瓦斯及煤尘情况 13
2 井田境界和储量 14
2.1井田境界 14
2.1.1井田范围 14
2.1.2开采界限 14
2.1.3井田尺寸 14
2.2井田地质勘探 15
2.3矿井地质储量 15
2.3.1储量计算基础 15
2.3.2矿井地质储量计算 16
2.3.3 矿井工业储量计算 17
2.4矿井设计储量 18
2.4.1永久煤柱损失量 18
2.4.2矿井设计储量 19
2.5矿井可采储量 19
2.5.1工业场地煤柱 19
2.5.2主要井巷煤柱 21
3 矿井工作制度、设计生产能力及服务年限 22
3.1矿井工作制度 22
3.2矿井设计生产能力及服务年限 22
3.2.1确定依据 22
3.2.2矿井设计生产能力 22
3.2.3矿井服务年限 22
3.2.4井型校核 23
4 井田开拓 25
4.1井田开拓的基本问题 25
4.1.1确定井筒形式、数目、位置及坐标 25
4.1.2工业场地的位置 27
4.1.3开采水平的确定及盘区划分 28
4.1.4主要开拓巷道 29
4.1.5矿井开拓延伸及深部开拓 29
4.1.6开采顺序 29
4.1.7方案比较 29
4.2矿井基本巷道 39
4.2.1井筒 39
4.2.2各种硐室 42
4.2.3主要开拓巷道 44
5 准备方式——盘区巷道布置 47
5.1煤层的地质特征 47
5.1.1盘区煤层特征 47
5.1.2煤层顶底板岩层情况 47
5.1.3煤层瓦斯及煤尘情况 47
5.1.4水文地质 48
5.1.5地质构造 48
5.1.5地面情况 48
5.2盘区巷道布置及生产系统 48
5.2.1盘区准备方式的确定 48
5.2.2盘区巷道布置 49
5.2.3盘区生产系统 50
5.2.4盘区巷道掘进方法 51
5.2.5盘区生产能力及采出率 52
5.3盘区车场选型设计 53
5.4巷道掘进 53
5.4.1掘进工作面个数及掘进设备 53
5.4.2巷道掘进进度指标 53
5.4.3带区及工作面回采率 54
5.4.4采掘比例关系 54
5.4.5掘进率 54
5.4.6矸石率 54
6 采煤方法 55
6.1采煤工艺方式 55
6.1.1盘区煤层特征及地质条件 55
6.1.2 确定采煤工艺方式 55
6.1.3回采工作面参数 56
6.1.4回采工作面采煤机、刮板输送机选型 57
6.1.5采煤工作面支护方式 60
6.1.6工作面端头支护及超前支护方式 63
6.1.7各工艺过程注意事项 64
6.1.8回采工作面正规循环作业 65
6.2回采巷道布置 68
6.2.1回采巷道布置方式 68
6.2.2回采巷道支护参数 69
6.2.3回采巷道支护材料参数 69
7 井下运输 72
7.1井下运输概述 72
7.1.1井下运输的原始条件和数据 72
7.1.2井下运输系统 72
7.1.3运输距离和货载量 73
7.2盘区运输设备选择 73
7.2.1井下运输设计规定 73
7.2.2盘区运输设备的选择 73
7.3大巷运输设备选择 75
7.3.1主运输大巷设备选择 75
7.3.2辅助运输大巷设备选择 75
8 矿井提升 77
8.1矿井提升的原始数据和条件 77
8.2主副井提升 77
8.2.1主井提升选型 77
8.2.2辅运斜井提升选型 78
9 矿井通风及安全 79
9.1矿井通风系统选择 79
9.1.1矿井概况 79
9.1.2矿井通风系统的基本要求 79
9.1.3矿井通风方式的确定 79
9.1.4 主要通风机工作方式选择 80
9.1.5盘区通风系统的要求 81
9.1.6工作面通风方式的选择 81
9.1.7回采工作面进回风巷道的布置 82
9.2盘区及全矿所需风量 83
9.2.1采煤工作面实际需要风量 83
9.2.2接续工作面风量计算 84
9.2.3掘进工作面需风量 84
9.2.4硐室需风量 84
9.2.5冲淡无轨胶轮车尾气实际需要风量计算 85
9.2.6其它巷道所需风量 85
9.2.7矿井总风量计算 85
9.2.8风量分配 86
9.3矿井通风总阻力计算 87
9.3.1矿井通风总阻力计算原则 87
9.3.2确定矿井通风容易和困难时期 87
9.3.3矿井最大阻力路线 87
9.3.4矿井通风阻力计算 91
9.3.5矿井通风总阻力 91
9.3.6两个时期的矿井总风阻和总等积孔 92
9.4选择矿井通风设备 92
9.4.1选择主要通风机 92
9.4.2电动机选型 95
9.5防止特殊灾害的安全措施 97
9.5.1瓦斯管理措施 97
9.5.2煤尘的防治 97
9.5.3预防井下火灾的措施 97
9.5.4防水措施 97
10 设计矿井基本技术经济指标 99
参考文献 101
专题部分
岩巷快速施工技术现状与支护趋势 102
1绪论 103
1.1问题的提出 103
1.2岩巷掘进的发展现状 103
1.2.1钻爆法施工掘进 103
1.2.2岩巷综合机械化掘进 105
2岩巷的掘进技术 105
2.1岩巷施工的基本工艺过程 105
2.1.1凿岩爆破 106
2.1.2装岩与运输 107
2.2水平巷道机械化配套 108
2.2.1岩巷施工机械化作业线 108
3快速掘进的影响因素及其解决技术措施 111
3.1快速掘进定义 111
3.2快速掘进的影响因素 112
3.2.1施工工艺 112
3.2.2掘进设备 112
3.2.3地质条件 113
3.2.4施工组织管理 113
3.3实现快速掘进的技术措施 114
3.3.1采掘平衡 114
3.3.2施工设备的研究与选择 115
3.3.3科学的施工组织管理 115
3.3.4完善的快速掘进配套设施 116
3.3.5不断改进的施.工方法及施工工艺 116
4支护趋势 117
4.1锚喷支护 117
4.2 U型钢支架 117
4.3 砼大弧板支护 117
4.4 联合支护 117
5结论 118
参考文献 119
翻译部分
英文原文: 118
Discrimination conditions and process of water-resistant key strata 118
1 Introduction 118
2 Conditions for discrimination 119
2.1 Discrimination based on position 119
2.2 Discrimination based on structural stability 120
2.3 Discrimination based on seepage stability 121
3 Discrimination process 122
4 Example analysis 123
5 Conclusions 125
References 126
中文译文: 127
判别隔水关键层的条件和步骤 127
1 简介 127
2 判别条件 128
2.1基于位置判别 128
2.2基于结构稳定性的判别 129
2.3基于渗透稳定性的判别 129
3 判别步骤 130
4 举例分析 130
5 结论 132
参考文献 133
致 谢 134
温馨提示:
1、题目前面的备注【字母数字编号】为本站整理分类的编号,与课题内容无关,请选题时忽视;
2、若题目上备注三维,则表示文件里包含三维源文件,由于三维组成零件数量较多,为保证预览截图的简洁性,本站将三维文件夹进行了打包。三维及CAD预览截图,均为本站电脑打开软件进行截图的,保证能够打开,下载原件超高清,下载后解压即可;
3、本站所有资源如无特殊说明,都需要本地电脑安装Office2007。图纸软件为AutoCAD,PROE,UG,SolidWorks,CATIA等;
4、本站所有图文资料仅供用户学习参考,不作为任何商用或其他用途;
5、本站不保证下载资源的准确性、安全性和完整性, 不包修改,不支持退换,同时也不承担用户因使用这些下载资源对自己和他人造成任何形式的伤害或损失;
6、 下载文件中如有侵权或不适当内容,请与我们联系,我们立即纠正。