

作品包括:
Word版说明书1份,共148页,约71000字
CAD版本图纸,共7张

摘 要
本设计包括三个部分:一般部分、专题部分和翻译部分。
一般部分是汾西中兴煤矿150万吨/年新井通风系统设计,其内容共分五个部分。
1.井田概况及井田地质特征,本矿地质构造较复杂,井田南北走向长4km,东西倾斜长5.5km.煤层倾角平均10。,煤厚5m
。矿井服务年限53.8年。
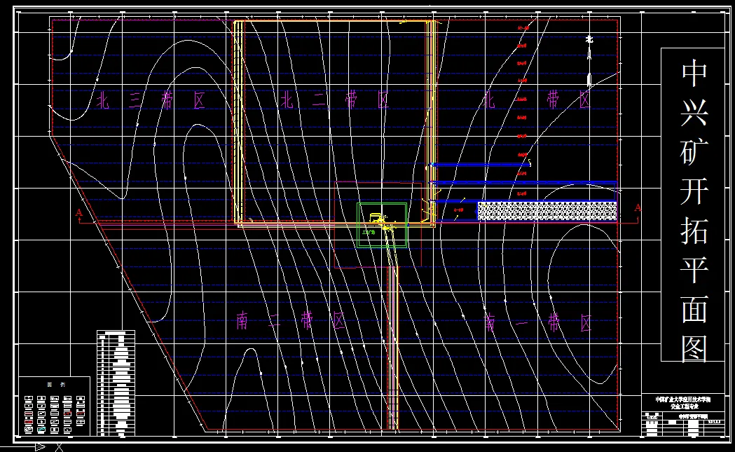
2.开拓开采设计根据煤层赋存条件及煤炭设计规范,确定本矿双井立井单水平开拓方式。
3.采煤方法设计,本矿采用了综合机械化采煤,工作面长160m。本矿井共分为5个带区,采用了倾斜长壁后退式采煤方
法。
4.矿井通风设计,根据矿井开拓条件,采用中央边界抽出式通风系统。风量分配由里向外计算,工作面采用“U”型通
风,掘进工作面采用局部通风机压入式通风,根据通风容易、困难时期的最大阻力选择2K58-No28型主要通风机,矿井用
风机反转反风。
5.矿井安全技术措施,文中就汾西中兴煤矿的矿井瓦斯涌出和粉尘作出了分析并采取了瓦斯防治措施,对矿井粉尘综合防
治进行了全面系统的阐述。
关键词: 矿井开拓; 矿井通风; 矿井安全
翻译部分主要内容为煤炭自燃,英文题目为:Spontaneous combustion of coal
目 录
一 般 部 分 1
1. 矿区概述及井田地质特征 2
1.1矿区概述 2
1.1.1交通位置 2
1.1.2地形、地貌 2
1.1.3河流及水系 3
1.1.4 气象及地震 3
1.1.5 本区经济状况 3
1.1.6 水源及电源 3
1.2井田地址特征 4
1.2.1井田地质构造 4
1.2.2 水文地质 7
1.2.3其他有益矿物 9
1.3煤层特征 9
1.3.1煤层 9
1.3.3煤质 11
1.3.4瓦斯 14
1.3.5煤尘及煤层自燃 14
2. 井田开拓 15
2.1井田境界及可采储量 15
2.1.1井田境界 15
2.1.2 矿井可采储量 17
2.1.3 矿井设计生产能力及服务年限 20
2.1.4井型校核 22
2.2井田开拓 23
2.2.1井田开拓的基本问题 23
2.2.2矿井基本巷道 30
2.2.3大巷运输设备选择 38
2.2.4 矿井提升 40
3. 采煤方法及带区巷道布置 43
3.1 煤层的地质特征 43
3.2带区巷道布置及生产系统 43
3.2.1首带区基本情况及区段划分 43
3.2.2煤层的开采顺序和区段接替顺序 44
3.2.3生产系统 44
3.2.4确定巷道的尺寸、支护、通风方式及掘进方法 44
3.2.5 带区生产能力确定 45
3.2.6带区车场的形式 47
3.2.7带区主要硐室布置 49
3.3 采煤方法 50
3.3.1 采煤工艺方式 50
3.3.2 回采巷道布置 59
4. 矿井通风 61
4.1通风系统的选择 61
4.1.1 矿井开拓开采条件 61
4.1.2矿井通风系统的确定 62
4.1.3主扇工作方法的确定 65
4.2 带区通风 67
4.3 掘进通风 68
4.3.1 掘进通风方法 69
4.3.2 掘进工作面需风量计算 70
4.3.3 掘进面的设计 70
4.4 矿井需风量 73
4.4.1矿井需风量计算的原则 73
4.4.2矿井需风量的计算 73
4.4.3 矿井风量分配 76
4.5矿井主要通风机选型 90
4.6 矿井反风措施及装置 93
4.7 矿井通风费用概算 95
5. 矿井安全技术措施 97
5.1矿井安全技术概况 97
5.1.1矿井瓦斯涌出概况及防治措施 97
5.1.2煤与瓦斯突出的防治 97
5.1.3矿井粉尘及防治措施 104
5.2矿井粉尘的综合防治 108
5.2.1必要的防尘措施 108
5.2.2具体防尘措施实施 108
5.3矿井水灾 110
5.4矿井综合监控 110
5.5矿山救护队及消防站 111
5.6小结 111
专 题 部 分 112
中兴煤矿1203综采工作面瓦斯抽放 113
1. 绪论 113
2. 工作面概况 113
3. 瓦斯抽放方法 114
4. 抽放管路系统及抽放设备 117
5. 劳动组织 118
6. 安全技术措施 118
7. 避灾路线 120
结 论 121
参考文献 122
翻 译 部 分 123
英文原文 124
中文译文 131
致 谢 137
温馨提示:
1、题目前面的备注【字母数字编号】为本站整理分类的编号,与课题内容无关,请选题时忽视;
2、若题目上备注三维,则表示文件里包含三维源文件,由于三维组成零件数量较多,为保证预览截图的简洁性,本站将三维文件夹进行了打包。三维及CAD预览截图,均为本站电脑打开软件进行截图的,保证能够打开,下载原件超高清,下载后解压即可;
3、本站所有资源如无特殊说明,都需要本地电脑安装Office2007。图纸软件为AutoCAD,PROE,UG,SolidWorks,CATIA等;
4、本站所有图文资料仅供用户学习参考,不作为任何商用或其他用途;
5、本站不保证下载资源的准确性、安全性和完整性, 不包修改,不支持退换,同时也不承担用户因使用这些下载资源对自己和他人造成任何形式的伤害或损失;
6、 下载文件中如有侵权或不适当内容,请与我们联系,我们立即纠正。