

作品包括:
word版本说明书一份,共17页,约5600字
CAD版本图纸,共6张
摘 要
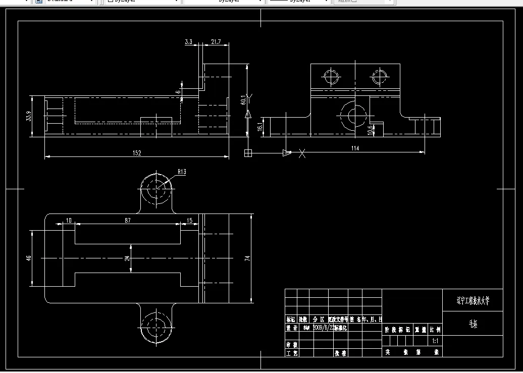
这次设计的是固定锥座,包括零件图、毛坯图、装配图各一张,机械加工工艺过程卡片和与工序卡片各一张。然后,根据零件的性质和零件图上各端面的粗糙度确定毛坯的尺寸和械加工余量。最后订固定锥座的工艺路线图,制定该工件的夹紧方案,画出夹具装配图。
就我个人而言,我希望能通过这次课程设计,了解并认识一般机器零件的生产工艺过程,巩固和加深已学过的技术基础课和专业课的知识,理论联系实际,从中锻炼自己分析问题、解决问题的能力,为今后的工作打下一个良好的基础,并且为后续课程的学习打好基础。
目 录
1零件工艺性分析……………………………………………1
2机械加工工艺设计…………………………………………1
2.1毛坯的制造形式………………………………………1
2.2基面……………………………………………………2
3制订机械加工工艺路线……………………………………2
3.1表面加工方法的确定…………………………………3
3.2工序顺序安排…………………………………………3
3.3确工艺路线……………………………………………4
4机械加工余量、工序尺寸及公差的确定…………………5
4.1确定切削用量及时间定额……………………………5
5夹具设计……………………………………………………6
5.1夹具选择………………………………………………6
6体会与展望…………………………………………………9
7参考文献……………………………………………………17
温馨提示:
1、题目前面的备注【字母数字编号】为本站整理分类的编号,与课题内容无关,请选题时忽视;
2、若题目上备注三维,则表示文件里包含三维源文件,由于三维组成零件数量较多,为保证预览截图的简洁性,本站将三维文件夹进行了打包。三维及CAD预览截图,均为本站电脑打开软件进行截图的,保证能够打开,下载原件超高清,下载后解压即可;
3、本站所有资源如无特殊说明,都需要本地电脑安装Office2007。图纸软件为AutoCAD,PROE,UG,SolidWorks,CATIA等;
4、本站所有图文资料仅供用户学习参考,不作为任何商用或其他用途;
5、本站不保证下载资源的准确性、安全性和完整性, 不包修改,不支持退换,同时也不承担用户因使用这些下载资源对自己和他人造成任何形式的伤害或损失;
6、 下载文件中如有侵权或不适当内容,请与我们联系,我们立即纠正。