

作品包括:
Word版说明书1份,共33页,约10000字
工序卡9张
工艺过程卡1张
CAD版本图纸,共6张
Proe三维图一套

摘要
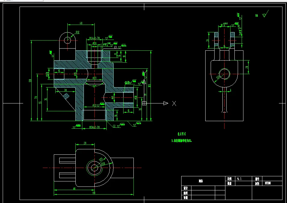
本次毕业设计的零件为柴油机排气管,柴油机的排气管一般是用灰铸铁铸造而成,柴油机排气管一般设计有多个废气进气口,从各个废气口收集的柴油燃烧废气经过同一个排气口排出。这次毕业设计课题可以分为两个部分,一个是涡柴油机排气管零件机械加工工艺规程设计,另一个为涡柴油机排气管加工专用机床夹具设计;本次设计分析了涡柴油机排气管的功用,根据平时学习的机械加工工艺方面的知识,确定解决了涡柴油机排气管零件在加工过程中的定位基准选择问题、定位夹紧问题以及安排加工工艺方面的问题,在制定加工工艺路线的过程中确定了工艺参数、毛坯加工余量、工序加工余量以及加工过程中需要的加工机床和刀具;
本次毕业设计的设计路线主要如下:第一,首先绘制涡柴油机排气管的零件图;第二,初步拟定涡柴油机排气管的机械加工工艺路线;第三,根据零件图设计一套夹具,该夹具是加工排气管右端进气口端面与内孔的加工专用数控夹具;第四,根据机械加工工艺路线编制机械加工工艺卡;第五,编制说明书一份。
关键词:机械加工 排气管 工艺卡片 夹具
目 录
摘要 III
ABSTRACT IV
1前言 1
2 柴油机排气管加工工艺规程设计 1
2.1零件的分析 1
2.1.1零件的作用 1
2.1.2零件的工艺分析 2
2.2柴油机排气管毛坯的选择 3
2.3机械加工阶段划分的作用 4
2.4定位基准的选择 5
2.5零件表面加工方法的选择 5
2.6加工顺序的安排 6
2.7机械加工工艺规程的制定程序 6
2.8加工顺序的安排 7
2.9确定切削用量及基本工时(机动时间) 8
2.10时间定额计算 16
3柴油机排气管数控加工夹具设计 18
3.1夹具结构和类型 18
3.2工件定位基准的选择和自由度分析 19
3.3数控加工夹具的结构 20
3.4夹具体即组合夹具的本体设计 21
3.5夹具精度分析 21
3.6夹具设计及操作的简要说明 25
参 考 文 献 27
致 谢 28
温馨提示:
1、题目前面的备注【字母数字编号】为本站整理分类的编号,与课题内容无关,请选题时忽视;
2、若题目上备注三维,则表示文件里包含三维源文件,由于三维组成零件数量较多,为保证预览截图的简洁性,本站将三维文件夹进行了打包。三维及CAD预览截图,均为本站电脑打开软件进行截图的,保证能够打开,下载原件超高清,下载后解压即可;
3、本站所有资源如无特殊说明,都需要本地电脑安装Office2007。图纸软件为AutoCAD,PROE,UG,SolidWorks,CATIA等;
4、本站所有图文资料仅供用户学习参考,不作为任何商用或其他用途;
5、本站不保证下载资源的准确性、安全性和完整性, 不包修改,不支持退换,同时也不承担用户因使用这些下载资源对自己和他人造成任何形式的伤害或损失;
6、 下载文件中如有侵权或不适当内容,请与我们联系,我们立即纠正。