

作品包括:
Word版设计说明书1份,共15页,约4600字
CAD版本图纸,共3张

摘 要
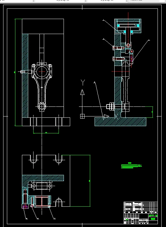
连杆是柴油机的主要传动件之一,本文主要论述了杆的加工工艺及其夹具设计。连杆的尺寸精度、形状精度以及位置精度的要求都很高,而连杆的刚性比较差,容易产生变形,因此在安排工艺过程时,就需要把各主要表面的粗精加工工序分开。逐步减少加工余量、切削力及内应力的作用,并修正加工后的变形,就能最后达到零件的技术要求。
就我个人而言,我希望能通过这次课程设计,了解并认识一般机器零件的生产工艺过程,巩固和加深已学过的技术基础课和专业课的知识,理论联系实际,从中锻炼自己分析问题、解决问题的能力,为今后的毕业设计以及工作打下一个良好的基础。
目 录
1零件的工艺分析及生产类型的确定-----------------1
1.1汽车连杆的用途-------------------------------1
1.2汽车连杆的技术要求---------------------------1
1.3汽车连杆的生产类----------------------------2
2 确定毛坯、绘制毛坯简图------------------------2
2.1选择毛坯------------------------------------2
2.2确定机械加工余量-----------------------------2
2.3确定毛坯尺寸叉工艺路线-----------------------2
2.4设计毛坯------------------------------2
3选择加工方法,确定工艺路线----------------------3
3.1定位基准的选择-------------------------------3
3.2零件表面加工方法的选择-----------------------3
3.3制定工艺路线------------------------------4
4工序设计--------------------------------5
4.1选择加工设备与工艺装备-----------------------5
4.2确定工序尺寸---------------------------------5
5确定切削用量及基本时间-------------------------5
5.1基本时间tm的计算-------------------------5
6夹具设计---------------------------------7
6.1定位方案-------------------------7
6.2夹紧机构---------------------------------7
6.3导向装置-------------------------7
6.4夹具与机床连接机构-------------------------7
6.5夹具体----------------------------7
7设计体会---------------------------------8
参考文献-------------------------9
温馨提示:
1、题目前面的备注【字母数字编号】为本站整理分类的编号,与课题内容无关,请选题时忽视;
2、若题目上备注三维,则表示文件里包含三维源文件,由于三维组成零件数量较多,为保证预览截图的简洁性,本站将三维文件夹进行了打包。三维及CAD预览截图,均为本站电脑打开软件进行截图的,保证能够打开,下载原件超高清,下载后解压即可;
3、本站所有资源如无特殊说明,都需要本地电脑安装Office2007。图纸软件为AutoCAD,PROE,UG,SolidWorks,CATIA等;
4、本站所有图文资料仅供用户学习参考,不作为任何商用或其他用途;
5、本站不保证下载资源的准确性、安全性和完整性, 不包修改,不支持退换,同时也不承担用户因使用这些下载资源对自己和他人造成任何形式的伤害或损失;
6、 下载文件中如有侵权或不适当内容,请与我们联系,我们立即纠正。