

作品包括:
说明书1份,共29页,约11000字左右
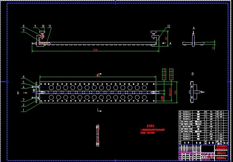
CAD版本本图纸,共11张
风能发电机转子支架钻模的设计及工艺
摘 要 分析了工件的定位原理,确定工件的定位方式,选择钻模定位元件,确定工件的夹紧方式,选择适宜的钻模夹紧装置,比较各种不同类型的钻模,从中选取较为合理的方案。根据选取的钻模设计其尺寸,并且编写工艺流程。
关键词 钻模 定位 夹紧 工艺
目 录
前 言 1
1 课题介绍 3
2 风能发电机转子支架钻模的设计 4
2.1、加工产品的介绍 4
2.2、风能发电机转子支架钻模加工演示 5
2.3 钻模简介及选择 6
2.3.1、钻模的定义及优点 6
2.3.2、钻模的类型及选择 6
2.3.3、钻模板的类型及选择 8
2.3.4、钻套的类型与选择 11
2.4钻模的设计 13
2.4.1、定位方案 13
2.4.2、夹紧方案 14
2.4.3、钻套的设计 15
2.4.4、钻模板的设计 16
3、风能发电机转子支架钻模的工艺 19
3.1钻模板的工艺 19
3.2、定向键的加工工艺 22
参考文献 24
总 结 25
致 谢 26
温馨提示:
1、题目前面的备注【字母数字编号】为本站整理分类的编号,与课题内容无关,请选题时忽视;
2、若题目上备注三维,则表示文件里包含三维源文件,由于三维组成零件数量较多,为保证预览截图的简洁性,本站将三维文件夹进行了打包。三维及CAD预览截图,均为本站电脑打开软件进行截图的,保证能够打开,下载原件超高清,下载后解压即可;
3、本站所有资源如无特殊说明,都需要本地电脑安装Office2007。图纸软件为AutoCAD,PROE,UG,SolidWorks,CATIA等;
4、本站所有图文资料仅供用户学习参考,不作为任何商用或其他用途;
5、本站不保证下载资源的准确性、安全性和完整性, 不包修改,不支持退换,同时也不承担用户因使用这些下载资源对自己和他人造成任何形式的伤害或损失;
6、 下载文件中如有侵权或不适当内容,请与我们联系,我们立即纠正。