

作品包括:
word版说明书一份,共37页,约17000字左右
任务书一份
CAD版本图纸,共9张
摘 要
简要回顾国内外机械工艺和夹具发展历程, 讨论国内外机械制造和工艺水平的人差异,展望现在全球机械工艺和夹具的发展 趋势。分析零件“连接支架”的机械加工工艺性和一些重要加工面的加工要求, 对该零件进行工艺规程方面设计和制订,包括基准的选择,工件加工工艺顺序的安排, 工艺尺寸链的计算,加工余量的计算和一些其它加工参数的确定。 针对工艺规程的相关工序设计专用夹具,由夹具的定位方式来确定夹紧元件和定位元件, 对夹具的定位误差来进行分析。介绍同学们在毕业设计中经历的过程和遇到的困难,阐述在“ 连接支架”的机械工艺和相关夹具设计中我们所学到的知识和提升的能力。 重点为对零件“ 连接 支架”工艺规程及其相关的夹具的设计。
关键词:机械加工工艺,夹具,机械制造
目 录
摘要 ……………………………………………………………………………1
第1章 绪论……………………………………………………………………3
1.1 简介………………………………………………………………………………… 3
1.2 机械制造和机械加工工艺及夹具的发展………………………………………… 3
第2章 零件图分析……………………………………………………………5
2.1 零件材料分析……………………………………………………………………… 5
2.2 零件工艺性分析…………………………………………………………………… 6
2.2.1 外圆 ………………………………………………………………………… 7
2.2.2 内孔 ………………………………………………………………………… 7
2.2.3 其他重要加工部分 ………………………………………………………… 8
2.2.4 倒角等 ……………………………………………………………………… 9
2.3 零件总体分析……………………………………………………………………… 9
第3章 工艺规程设计…………………………………………………………10
3.1 设计要求……………………………………………………………………………11
3.2 工艺顺序的安排……………………………………………………………………11
3.3 加工计划……………………………………………………………………………13
3.4 主要加工部分余量计算……………………………………………………………14
3.5 基准的选择…………………………………………………………………………17
3.5.1 设计基准…………………………………………………………………… 17
3.5.2 定位基准的选择…………………………………………………………… 17
3.5.2.1 粗基准的选择……………………………………………………… 17
3.5.2.2 精基准的选择……………………………………………………… 17
第4章 夹具设计与分析………………………………………………………19
4.1 现代机床夹具设计的要求…………………………………………………………19
4.2 连接支架工艺中对夹具的要求………………………………………………… 19
4.3 工艺中典型专用夹具设计分析………………………………………………… 20
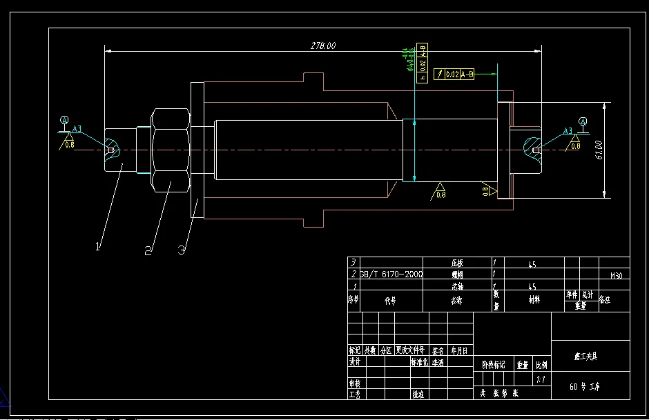
4.3.1 60号工序磨工夹具……………………………………………………… 20
4.3.1.1 定位要求……………………………………………………………20
4.3.1.2 定位元件的设计……………………………………………………21
4.3.1.3 夹紧元件的设计……………………………………………………21
4.3. 1.4 定位误差分析………………………………………………… …21
4.3 .2 90 号工序数控夹具………………………………………………………22
4.3. 2.1 定位要求………………………………………………………… 22
4.3. 2.2 定位元件的设计……………………………………………………23
4.3. 2.3 夹紧元件的设计………………………………………………… 23
4.3. 2.4 定位误差分析…………………………………………………… 23
4.3 .3 110 /12 0 号工序数控铣工 /电火花夹具…………………………… 23
4.3. 3.1 定位要求……………………………………………………………24
4.3. 3.2 定位元件的设计……………………………………………………24
4.3. 3.3 夹紧元件的设计……………………………………………………25
4.3. 3.4 定位误差分析………………………………………………………25
结论………………………………………………………………………… 26
参考文献………………………………………………………………………28致谢………………………………………………………………………… 29
附录……………………………………………………………………………30
外文文献……………………………………………………………………………… 30
中文翻译…………………………………………………………………………………………… 40
温馨提示:
1、题目前面的备注【字母数字编号】为本站整理分类的编号,与课题内容无关,请选题时忽视;
2、若题目上备注三维,则表示文件里包含三维源文件,由于三维组成零件数量较多,为保证预览截图的简洁性,本站将三维文件夹进行了打包。三维及CAD预览截图,均为本站电脑打开软件进行截图的,保证能够打开,下载原件超高清,下载后解压即可;
3、本站所有资源如无特殊说明,都需要本地电脑安装Office2007。图纸软件为AutoCAD,PROE,UG,SolidWorks,CATIA等;
4、本站所有图文资料仅供用户学习参考,不作为任何商用或其他用途;
5、本站不保证下载资源的准确性、安全性和完整性, 不包修改,不支持退换,同时也不承担用户因使用这些下载资源对自己和他人造成任何形式的伤害或损失;
6、 下载文件中如有侵权或不适当内容,请与我们联系,我们立即纠正。