

作品包括:
Word版说明书1份,共45页,约18000字
CAD版本图纸,共10张
SW三维零件图一张
摘 要
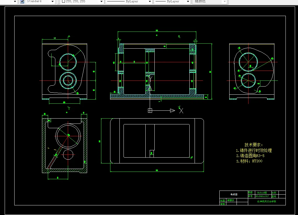
本次设计是汽车变速箱箱体零件的加工工艺规程及一些工序的专用夹具设计。汽车变速箱箱体零件的主要加工表面是平面及孔系。保证平面的加工精度要比保证孔系的加工精度容易。因此,本设计遵循先面后孔的原则。并将孔与平面的加工明确的划分为粗加工和精加工阶段,以保证孔系的加工精度。基准选择以变速箱箱体的输入轴与输出轴的支承孔作为粗基准,以顶面与两个工艺孔作为精基准。主要加工工序安排先以支承孔系定位加工出上表面。再以顶平面与支承孔系定位加工出孔。整个加工过程均选用组合机床,夹具选用专用夹具夹紧。加紧方式多选用手动夹紧,夹紧可靠。
本设计要求“以质量求发展,以效益求生存”,在保证零件加工质量的前提下,提高了生产率,降低了生产成本,是国内外现代机械加工工艺的主要发展方面方向之一。通过对变速箱体零件图的分析及结构形式的了解,从而对变速箱体进行工艺分析、工艺说明及加工过程的技术要求和精度分析。然后再对变速箱体的底孔、轴承孔的加工进行夹具设计与精度和误差分析,该工艺与夹具设计结果能应用于生产要求。
关键词 变速箱 加工工艺 定位 夹紧 夹具设计
目 录
摘 要I
ABSTRACTⅡ
第1章 绪 论1
1.1选题背景1
1.2 选题的目的及意义1
1.3国内外发展现状1
1.3.1国外机床夹具的发展现状1
1.3.2国内机床夹具的发展方向2
1.4设计的主要内容2
1.4.1分析研究部件装配图样和审查零件图2
1.4.2零件的工艺规程的编制3
1.4.3零件加工的专用机床夹具3
1.4.4 绘制夹具装配图3
1.4.5 编写设计说明3
第2章 变速箱体加工工艺规程设计4
2.1零件的分析4
2.1.1零件的作用4
2.1.2变速箱体的结构特点4
2.2变速箱体的工艺性5
2.2.1零件的工艺分析5
2.2.2箱体的材料、毛坯及热处理5
2.2.3毛坯的材料热处理6
2.2.4确定毛坯的制造形式6
2.2.5基面的选择7
2.2.6确定工艺路线7
2.2.7机械加工余量、工序尺寸及毛坯尺寸的确定9
2.2.8确定切削用量10
2.3本章小结21
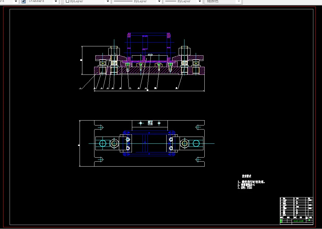
第3章 镗孔夹具设计21
3.1夹具的结构类型21
3.1.1夹紧力大小的确定原则23
3.1.2定位基准的选择24
3.1.3切削力的计算与夹紧力分析25
3.1.4夹紧元件及动力装置确定26
3.1.5镗套、衬套、镗模板及夹具体设计26
3.1.6夹具精度分析26
3.1.7夹具设计及操作的简要说明27
3.2 本章小结27
第4章 铣箱体上平面夹具设计27
4.1铣夹具简图28
4.1.1定位基准的选择28
4.1.2定位元件的设计28
4.1.3定位误差分析29
4.1.4铣削力与夹紧力计算29
4.1.5夹具体槽形与计对刀装置设计30
4.1.6夹紧装置及夹具体设计32
4.1.7夹具设计及操作的简要说明33
4.2本章小结33
第5章 专用刀具选择35
5.1刀具选择35
5.1.1刀具材料选择35
5.1.2 确定合理的切削方式及工作角度36
5.1.3 妥善解决刀具的排屑,容屑,断屑问题36
5.1.4 合理的确定刀具的结构参数36
5.1.5 正确选择刀具的轮廓37
5.2 专用量具选择37
5.2.1 量规工作尺寸的确定37
5.2.2 量规的技术要求38
5.3本章小结38
结 论39
参考文献40
致 谢41
温馨提示:
1、题目前面的备注【字母数字编号】为本站整理分类的编号,与课题内容无关,请选题时忽视;
2、若题目上备注三维,则表示文件里包含三维源文件,由于三维组成零件数量较多,为保证预览截图的简洁性,本站将三维文件夹进行了打包。三维及CAD预览截图,均为本站电脑打开软件进行截图的,保证能够打开,下载原件超高清,下载后解压即可;
3、本站所有资源如无特殊说明,都需要本地电脑安装Office2007。图纸软件为AutoCAD,PROE,UG,SolidWorks,CATIA等;
4、本站所有图文资料仅供用户学习参考,不作为任何商用或其他用途;
5、本站不保证下载资源的准确性、安全性和完整性, 不包修改,不支持退换,同时也不承担用户因使用这些下载资源对自己和他人造成任何形式的伤害或损失;
6、 下载文件中如有侵权或不适当内容,请与我们联系,我们立即纠正。