

作品包括:
Word版说明书1份,共40页,约19000字
CAD版本图纸,共8张
SW三维图一套
摘 要
本文针对专用夹具,在车床溜板箱工艺原理上开展加工设计,设计对象为孔和平面。正常来说,在加工准确性的这一方面,孔比平面的加工要更为困难,所以一般加工步骤是按照平面加工—孔加工的顺序来进行设计的。平面加工和孔加工的两个阶段在加工精确度上有显著的不同,后者要求的精确程度远高于前者。将底面设计加工好可以为后续加工奠定基础。设计加工步骤主要为先确定定位孔,而后运用孔与平面定位技术来对孔进行加工,这一设计加工体系本质上是工具选择组合的过程。专用夹具是具备自锁结构装置的,所以夹具的设计加工对批量较大的生产来说有其重要的作用,能够大幅度降低生产效率,加快生产进度。
关键词:车床溜板箱类零件;工艺;夹具
目 录
摘 要I
AbstractII
第1章 加工工艺规程设计1
1.1 零件的分析1
1.1.1 零件的作用1
1.1.2 零件的工艺分析2
1.2 车床溜板箱加工措施2
1.2.1 孔和平面的加工顺序2
1.2.2 孔系加工方案选择3
1.3 车床溜板箱加工定位基准的选择3
1.3.1 粗基准的选择3
1.3.2 精基准的选择3
1.4 车床溜板箱加工主要工序安排4
1.5 机械加工余量、工序及毛坯的确定7
1.6 确定切削用量及基本工时(机动时间)8
1.7 生成纲领及生产类型10
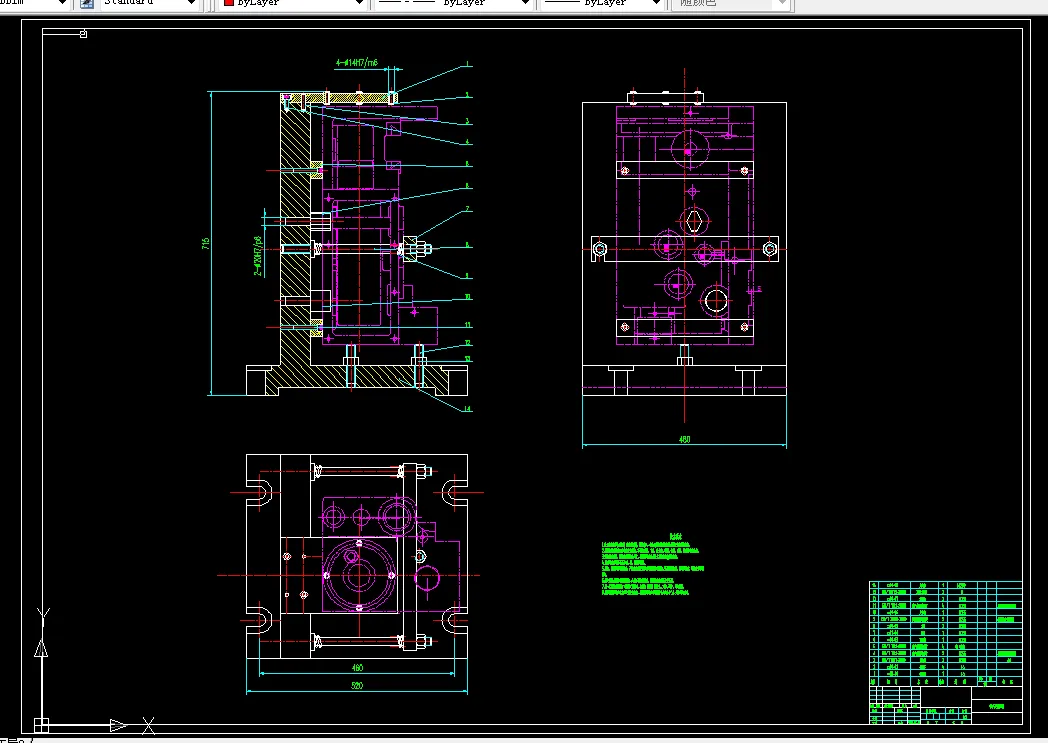
第2章 镗孔夹具设计11
2.1 研究原始资料11
2.2 设计要求11
2.3 夹具的组成12
2.4 夹具的分类和作用12
2.5 定位、夹紧方案的选择15
2.6 切削力及夹紧力的计算15
2.7 误差分析与计算20
2.8 夹具设计及操作的简要说明21
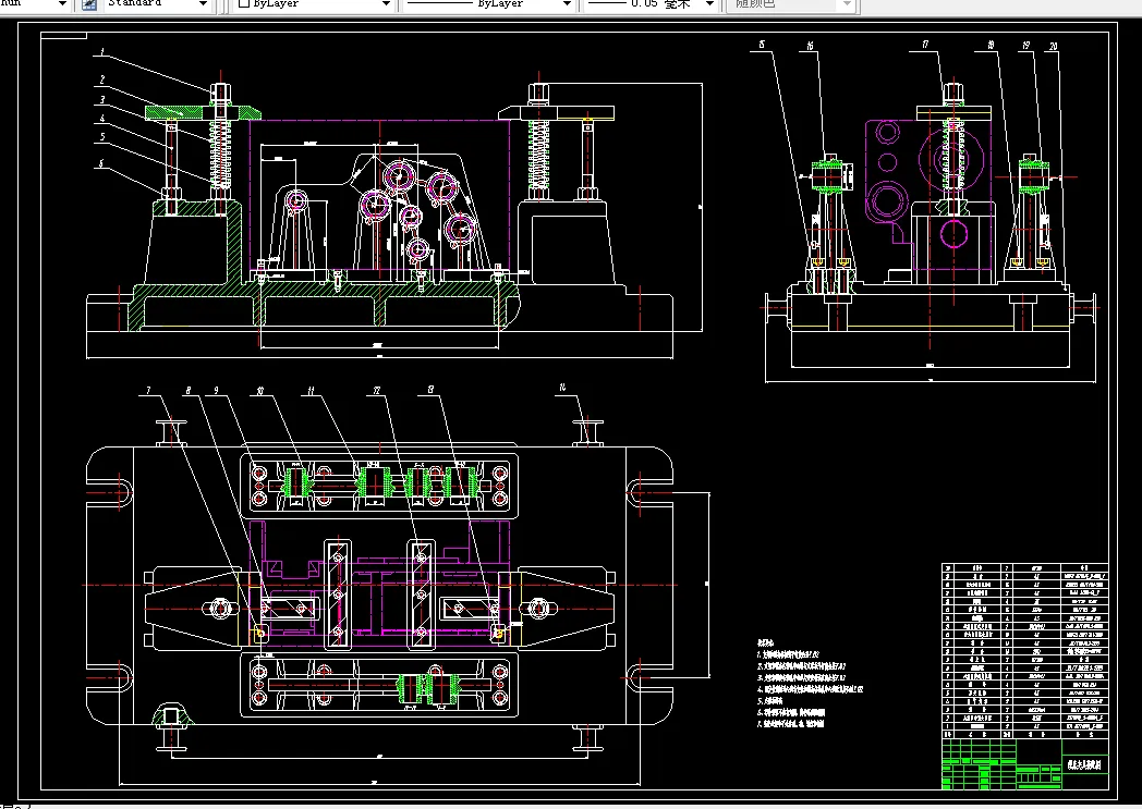
第3章 铣面夹具设计22
3.1 机床夹具概述22
3.2 研究原始资料24
3.3 定位基准的选择24
3.4 切削力及夹紧分析计算24
3.5 误差分析与计算27
3.6 零、部件的设计与选用29
3.7 夹具操作步骤分析和可靠性预测29
第4章 钻床夹具设计30
4.1 研究原始资料30
4.2 定位基准的选择30
4.3 夹紧机构30
4.4 切削力及夹紧力的计算30
4.5 误差分析与计算31
4.6 夹具设计及操作的简要说明32
结 论33
致 谢34
参考文献35
温馨提示:
1、题目前面的备注【字母数字编号】为本站整理分类的编号,与课题内容无关,请选题时忽视;
2、若题目上备注三维,则表示文件里包含三维源文件,由于三维组成零件数量较多,为保证预览截图的简洁性,本站将三维文件夹进行了打包。三维及CAD预览截图,均为本站电脑打开软件进行截图的,保证能够打开,下载原件超高清,下载后解压即可;
3、本站所有资源如无特殊说明,都需要本地电脑安装Office2007。图纸软件为AutoCAD,PROE,UG,SolidWorks,CATIA等;
4、本站所有图文资料仅供用户学习参考,不作为任何商用或其他用途;
5、本站不保证下载资源的准确性、安全性和完整性, 不包修改,不支持退换,同时也不承担用户因使用这些下载资源对自己和他人造成任何形式的伤害或损失;
6、 下载文件中如有侵权或不适当内容,请与我们联系,我们立即纠正。