

作品包括:
Word版说明书1份,共44页,约13000字
工序卡11张
工艺过程卡1张
CAD版本图纸,共6张

摘要
加工工艺规程是以研究机械加工工艺技术和夹具设计为主技术学科,具有很强的实践性,要求学习过程中应紧密联系生产实践,同时它又具有很强的综合性,
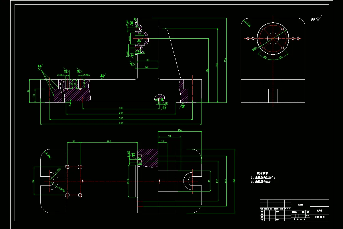
本次设计的内容是上壳的加工工工艺及夹具设计,具体如下:
1、对零件进行分析,主要是零件作用的分析和工艺分析,通过零件分析可以了解零件的基本情况,而工艺分析可以知道零件的加工表面和加工要求。根据零件图提出的加工要求,确定毛坯的制造形式和尺寸的确定。
2、选择基面,确定加工过程中的粗基准和精基准。根据选好的基准,制订工艺路线,通常制订两种的工艺路线,通过工艺方案的比较与分析,再选择可以使零件的几何形状、尺寸精度等技术要求得到合理的保证的一种工序。根据已经选定的工序路线,确定每一步的切削用量及基本工时,并选择合适的机床和刀具。
3、设计加工工序7镗削加工的专用夹具。对定位方案及元件,夹紧方案及元件进行确定,然后计算切削力、夹紧力和定位误差的分析等。
关键词:上壳、加工工艺、工序7镗削、专用夹具
目录
摘要I
第一章绪论1
1.1夹具定位方案的概述1
1.2夹具夹紧方案的概述1
1.3夹具体设计的基本要求2
第二章上壳零件的分析3
2.1零件的作用3
2.2零件的分析3
2.2.1零件的工艺分析3
2.2.2零件结构分析3
2.2.3零件的技术要求分析4
2.2.4零件的组成表面4
2.2.5零件的技术要求5
2.2.6零件的形位公差5
第三章上壳工艺规程的设计6
3.1零件生产类型的确定6
3.2确定零件的材料及制造方式6
3.3选择加工的定位基准7
3.4加工工艺路线的选择、比较与确定7
3.4.1加工工艺路线方案一7
3.4.2加工工艺路线方案二8
3.4.3加工工艺路线的比较与确定9
3.5加工设备、加工刀具及量具的选用9
3.6各工序工步加工余量的计算9
3.7确定切削用量及基本工时13
第四章专用夹具设计35
4.1定位方案和定位装置的设计35
4.2夹紧方案和夹紧装置的设计36
4.3机床联接装置—夹具体的设计36
4.4导向装置的设计37
4.5切削力的计算37
4.6夹紧力的计算38
4.7定位误差的分析39
结论40
致谢41
参考文献42
温馨提示:
1、题目前面的备注【字母数字编号】为本站整理分类的编号,与课题内容无关,请选题时忽视;
2、若题目上备注三维,则表示文件里包含三维源文件,由于三维组成零件数量较多,为保证预览截图的简洁性,本站将三维文件夹进行了打包。三维及CAD预览截图,均为本站电脑打开软件进行截图的,保证能够打开,下载原件超高清,下载后解压即可;
3、本站所有资源如无特殊说明,都需要本地电脑安装Office2007。图纸软件为AutoCAD,PROE,UG,SolidWorks,CATIA等;
4、本站所有图文资料仅供用户学习参考,不作为任何商用或其他用途;
5、本站不保证下载资源的准确性、安全性和完整性, 不包修改,不支持退换,同时也不承担用户因使用这些下载资源对自己和他人造成任何形式的伤害或损失;
6、 下载文件中如有侵权或不适当内容,请与我们联系,我们立即纠正。