

作品包括:
Word版说明书1份,共22页,约7800字
综合工艺卡片一套
CAD版本图纸,共6张
零件图1张
毛坯图1张
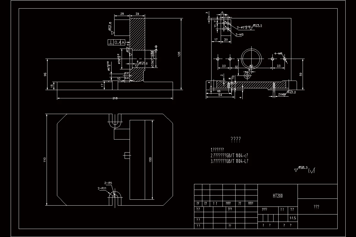
夹具装配图1张
夹具体1张
定位方案图1张
夹紧方案图1张
![1705455305703205.webp %VN)(E)F~CBWVG8(FIT1Z]T.webp](/static/upload/image/20240117/1705455305703205.webp)
目 录
序 言 1
1拨叉的分析 2
1.1零件的作用 2
1.2零件的工艺分析 2
2工艺规程设计 3
2.1选择毛坯、确定毛坯尺寸及毛坯图 3
2.2加工工艺过程 4
2.3零件加工方法选择 4
2.3.2指定工艺路线 4
2.4工序设备选择 6
2.6确定切削用量及基本工时 6
3 铣削18槽面夹具设计 13
3.1问题的提出 13
3.2定位基准选择 13
3.2.1 定位基准设计 13
3.2.2定位部件选型 13
3.3夹紧机构及夹紧力计算 14
3.3.1组成 14
3.3.2切削力及夹紧力计算 15
3.4定位误差计算 16
3.5直角对刀块选型 16
3.6定位键选型设计 17
3.7夹具机构设计及操作说明 18
总 结 19
参考文献 20
温馨提示:
1、题目前面的备注【字母数字编号】为本站整理分类的编号,与课题内容无关,请选题时忽视;
2、若题目上备注三维,则表示文件里包含三维源文件,由于三维组成零件数量较多,为保证预览截图的简洁性,本站将三维文件夹进行了打包。三维及CAD预览截图,均为本站电脑打开软件进行截图的,保证能够打开,下载原件超高清,下载后解压即可;
3、本站所有资源如无特殊说明,都需要本地电脑安装Office2007。图纸软件为AutoCAD,PROE,UG,SolidWorks,CATIA等;
4、本站所有图文资料仅供用户学习参考,不作为任何商用或其他用途;
5、本站不保证下载资源的准确性、安全性和完整性, 不包修改,不支持退换,同时也不承担用户因使用这些下载资源对自己和他人造成任何形式的伤害或损失;
6、 下载文件中如有侵权或不适当内容,请与我们联系,我们立即纠正。