

作品包括:
Word版说明书1份,共41页,约17000字
CAD版本图纸,共4张
摘 要
本文是对空气机吸气阀盖头零件加工应用及加工的工艺性分析,主要包括对零件图的分析、毛坯的选择、零件的装夹、工艺路线的制订、刀具的选择、切削用量的确定、加工工艺文件的填写。选择正确的加工方法,设计合理的加工工艺过程。此外还对空气机吸气阀盖头零件加工设计了专用夹具.
机床夹具的种类很多,其中,使用范围最广的通用夹具,规格尺寸多已标准化,并且有专业的工厂进行生产。而广泛用于批量生产,专为某工件加工工序服务的专用夹具,则需要各制造厂根据工件加工工艺自行设计制造。本论文夹具设计的主要内容是设计一副夹具。
关键词:空气机吸气阀盖头 加工工艺 数控加工 夹具设计
目 录
摘 要 II
Abstract III
目 录 IV
第1章 绪论 1
1.1 机械加工工艺概述 1
1.2机械加工工艺流程 1
1.3夹具概述 2
1.4机床夹具的功能 2
1.5机床夹具的发展趋势 2
1.5.1机床夹具的现状 3
1.5.2现代机床夹具的发展方向 3
第2章 数控加工工艺分析 5
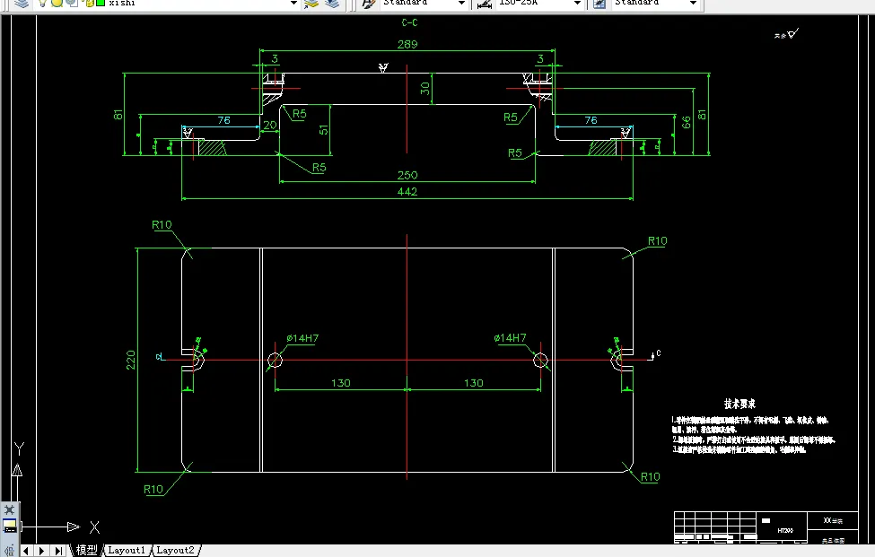
2.1零件介绍 5
2.2数控加工工艺的合理性分析 6
2.3 数控加工工艺的特点 6
2.3.1 数控加工的一般特点 6
2.3.2数控加工工艺的特殊要求 7
2.4零件的工艺性分析 7
2.5 毛坯的选择 7
2.6 数控加工工艺分析及工序设计 8
2.5数控加工工艺过程的拟定 10
2.5.1根据前述的工艺措施,制定支座加工主要工艺过程 10
2.5.2工步顺序安排的一般原则 11
2.6进给路线的确定 11
2.6.1确定进给路线的主要原则 11
2.7 工件的装夹 11
2.7.1 定位基准选择的一般原则 11
2.7.2 工件定位方案 12
2.8切削用量的确定 12
2.8.1背吃刀量 和侧吃 的确定 12
2.8.2主轴转速的确定 12
2.8.3进给速度的确定 12
2.9加工刀具的选择 13
2.9.1选择数控刀具通常应考虑的因素 13
2.9.2面铣刀主要参数的选择 13
2.9.3钻孔刀具及其选择 13
2.9.4镗孔刀具及其选择 14
第3章 夹具设计 15
3.1问题的提出 15
3.2 定位方案及定位元件的选择 15
3.3切削力及夹紧力的计算 16
3.4 误差分析与计算 17
3.5 零、部件的设计与选用 18
3.6 夹具设计及操作的简要说明 19
3.7 本章小结 19
第4章 数控加工编程 20
总 结 35
致 谢 36
参考文献 37
温馨提示:
1、题目前面的备注【字母数字编号】为本站整理分类的编号,与课题内容无关,请选题时忽视;
2、若题目上备注三维,则表示文件里包含三维源文件,由于三维组成零件数量较多,为保证预览截图的简洁性,本站将三维文件夹进行了打包。三维及CAD预览截图,均为本站电脑打开软件进行截图的,保证能够打开,下载原件超高清,下载后解压即可;
3、本站所有资源如无特殊说明,都需要本地电脑安装Office2007。图纸软件为AutoCAD,PROE,UG,SolidWorks,CATIA等;
4、本站所有图文资料仅供用户学习参考,不作为任何商用或其他用途;
5、本站不保证下载资源的准确性、安全性和完整性, 不包修改,不支持退换,同时也不承担用户因使用这些下载资源对自己和他人造成任何形式的伤害或损失;
6、 下载文件中如有侵权或不适当内容,请与我们联系,我们立即纠正。