

作品包括:
Word设计说明书1份,共81页,约34000字
工艺卡7张
CAD版本图纸,共11张

摘要
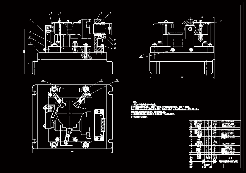
本设计要求“以质量求发展,以效益求生存”,在保证零件加工质量的前提下,提高生产率,降低生产成本。通过对蜗轮减速器壳体零件图的工艺及结构形式的分析,从而分析这个减速器壳体进行功能、结构特点、加工方法的选择和加工工艺性能,加工工艺性能分析包括零件重要表面的加工工艺说明、加工过程的技术要求和精度分析,并设计其加工工艺规程(包括毛坯的选择与设计、加工顺序的安排、加工余量的计算、切削用量的选取、工时定额的计算)。在本设计中用到的工艺设备,既要用到普通机床,又要用到加工中心加工。最后,还要对减速器壳体某加工工序进行夹具设计。 本说明书以蜗轮减速器壳体实际结构为例,对该零件进行了较为透彻的结构和工艺性分析,并设计了完整的加工工艺规程,编写了工艺卡片,可为相类似的零件工艺设计提供一定的辅助和参考作用。 蜗轮减速器壳体工艺与夹具设计
温馨提示:
1、题目前面的备注【字母数字编号】为本站整理分类的编号,与课题内容无关,请选题时忽视;
2、若题目上备注三维,则表示文件里包含三维源文件,由于三维组成零件数量较多,为保证预览截图的简洁性,本站将三维文件夹进行了打包。三维及CAD预览截图,均为本站电脑打开软件进行截图的,保证能够打开,下载原件超高清,下载后解压即可;
3、本站所有资源如无特殊说明,都需要本地电脑安装Office2007。图纸软件为AutoCAD,PROE,UG,SolidWorks,CATIA等;
4、本站所有图文资料仅供用户学习参考,不作为任何商用或其他用途;
5、本站不保证下载资源的准确性、安全性和完整性, 不包修改,不支持退换,同时也不承担用户因使用这些下载资源对自己和他人造成任何形式的伤害或损失;
6、 下载文件中如有侵权或不适当内容,请与我们联系,我们立即纠正。