

作品包括:
Word设计说明书1份,共40页,约16000字
任务书一份
开题报告一份
外文翻译一份
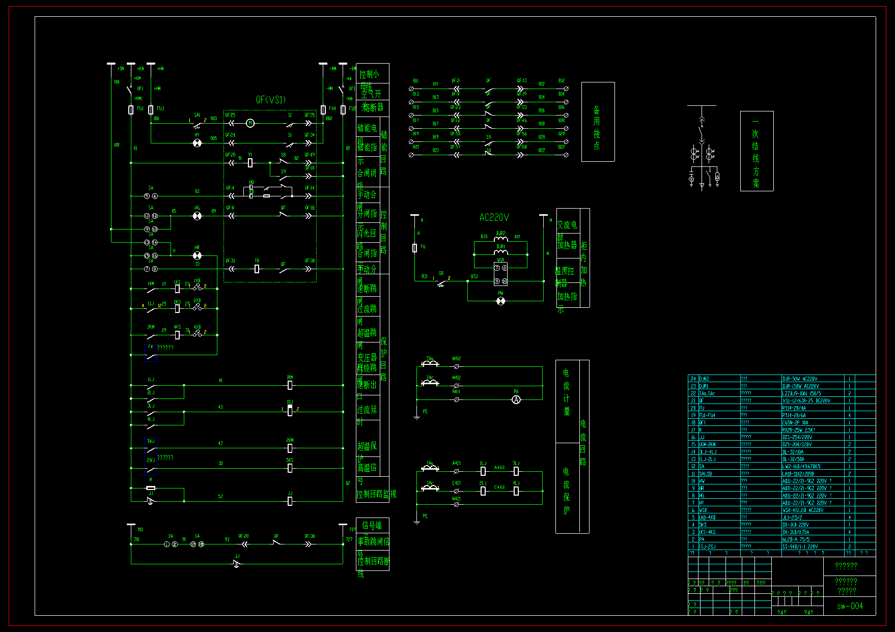
CAD版本图纸,共4张
摘要
本文介绍了机械厂变电所的电气设计。文中对变电所所址的选择、主接线的选择、高压设备的选择、负荷计算、短路电流计算、各种继电保护选择及防雷系统皆有说明。特别对主接线的选择,变压器的选择与短路电流的计算作了详细的说明和分析。其中还对变电所的主接线,高低压侧的一些保护装置等通过CAD制图直观的展现出来。 通过查找大量相关资料并到工厂实习,本次设计的内容更加接近实际。设计中进行了防雷和接地的设计。这样可以使变电所有效的避免雷击,保证变电站的安全;可以有效的保护用电设备,防止过电流的危害;可以保证该变电站具有稳定的输出电压。 本次设计采用两台主变压器。一次接线采用单母线,二次接线采用单母线分段制。这种接线方案不仅保证了供电的可靠性,而且灵活方便,适应负荷的发展。同时经济性也较好,减少了投资和有色金属的消耗量。
关键词:变电所,设计,选择,安全
温馨提示:
1、题目前面的备注【字母数字编号】为本站整理分类的编号,与课题内容无关,请选题时忽视;
2、若题目上备注三维,则表示文件里包含三维源文件,由于三维组成零件数量较多,为保证预览截图的简洁性,本站将三维文件夹进行了打包。三维及CAD预览截图,均为本站电脑打开软件进行截图的,保证能够打开,下载原件超高清,下载后解压即可;
3、本站所有资源如无特殊说明,都需要本地电脑安装Office2007。图纸软件为AutoCAD,PROE,UG,SolidWorks,CATIA等;
4、本站所有图文资料仅供用户学习参考,不作为任何商用或其他用途;
5、本站不保证下载资源的准确性、安全性和完整性, 不包修改,不支持退换,同时也不承担用户因使用这些下载资源对自己和他人造成任何形式的伤害或损失;
6、 下载文件中如有侵权或不适当内容,请与我们联系,我们立即纠正。