

作品包括:
说明书1份,共43页,约17000字左右
CAD版本本图纸,共6张
摘要
本文对所设计的立式加工中心作了比较详尽的描述,主要内容包括数控机床发展概况、立式加工中心总体设计、进给系统的设计及理论计算、床身与导轨设计和数控系统设计五个部分。
绪论部分介绍了数控系统的发展概况,数控系统的优点,国内外数控系统的现状,立式加工中心的发展趋势,伺服系统的特点,本次课题的设计的内容、目的和方法。
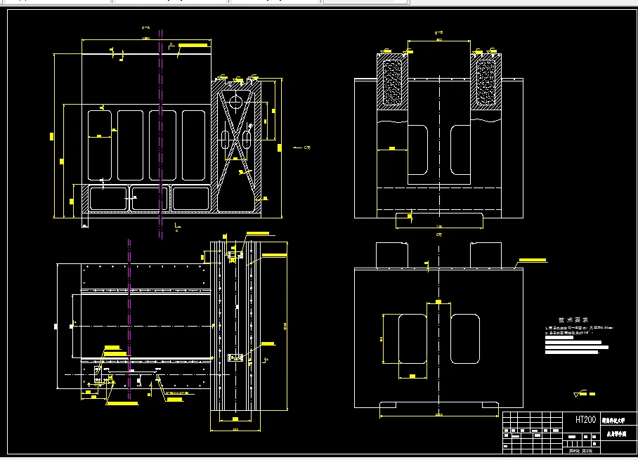
立式加工中心的总体设计简单介绍了此次设计的立式加工中心,给出了该加工中心的主要技术规格及参数,并对其主要结构进行了简单的说明,并给出总体布局设计。理论计算部分包括了切削功率的计算,横向和纵向进给中的滚珠丝杆副参数计算及选用,横向和纵向进给中的导轨有关计算以及圆锥齿轮尺寸计算。
进给系统设计部分阐述了进给伺服系统的基本要求,进给传动系设计的基本要求,重点说明了机械传动部件的设计和进给机构的设计。
床身与导轨设计主要介绍了床身结构的要求,床身结构设计及导轨设计。
立式加工中心数控系统设计着重介绍了FUNAC 0数控系统,另外对所设计的典型数控程序进行了说明。
本文的最后是此次设计的总结。
关键词:立式加工中心;滚珠丝;进给伺服系统;数控系统
目录
第一章 绪论 - 1 -
1.1数控系统的发展简史 - 1 -
1.2数控系统的优点 - 1 -
1.3国外数控技术的发展现状 - 1 -
1.4我国数控系统的发展现状 - 3 -
1.4.1 数控技术状况 - 3 -
1.4.2 数控系统的发展趋势 - 4 -
1.5 伺服系统的特点 - 5 -
1.5.1信息载体 - 5 -
1.5.2计算机数控系统 - 5 -
1.5.3伺服系统 - 5 -
1.5.4机床 - 5 -
1.6 设计的内容、目的和方法 - 7 -
第二章 立式加工中心总体设计 - 8 -
2.1设计目标 - 8 -
2.2机床的用途 - 8 -
2.3XH715D主要规格及技术参数 - 8 -
2.4立式加工中心结构布局 - 10 -
2.6设计计算思路 - 11 -
第三章 与滚珠丝杆有关的理论计算 - 12 -
3.1横向滚珠丝杠的计算及选择 - 12 -
3.1.1 滚珠丝杠导程的确定 - 12 -
3.1.2 确定丝杠的等效转速 - 12 -
3.1.3 确定丝杠的等效负载 - 13 -
3.1.4 确定丝杠所受的最大动载荷 - 13 -
3.1.5 选择滚珠丝杠型号 - 14 -
3.1.6计算行程补偿值C和预拉伸力Ft - 15 -
3.1.7 校核 - 16 -
3.1.8 伺服电机计算 - 18 -
3.2 纵向滚珠丝杠的计算及选择 - 19 -
3.2.1 滚珠丝杠导程的确定 - 19 -
3.2.2 确定丝杠的等效转速 - 19 -
3.2.3 确定丝杠的等效负载 - 20 -
3.2.4 确定丝杠所受的最大动载荷 - 20 -
3.2.5校核 - 21 -
3.2.6 伺服电机计算 - 22 -
3.2.7 电机的选择 - 23 -
第四章 圆锥齿轮计算 - 24 -
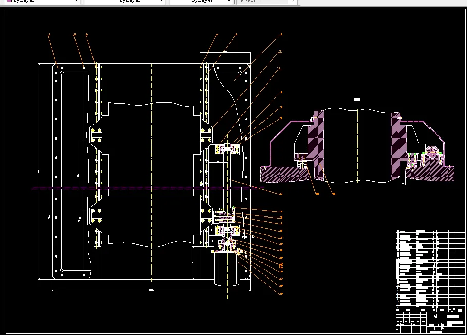
第五章 导轨设计 - 26 -
5.1导轨简介 - 26 -
5.2导轨设计 - 27 -
5.3 滚动直线导轨副的结构 - 28 -
5.4 滚动直线导轨副润滑与防尘 - 28 -
5.4.1润滑方式 - 28 -
5.4.2防尘措施 - 28 -
第六章 床身设计 - 30 -
6.1 床身结构的基本要求 - 30 -
6.2 床身结构设计 - 30 -
第七章 数控系统选择 - 32 -
7.1FANUC数控系统简介 - 32 -
7.2FANUC公司数控系统的产品特点 - 33 -
7.3FANUC数控系统特点 - 34 -
第八章数控编程 - 35 -
第九章 结论 - 38 -
参考文献 - 39 -
致 谢 - 40 -
附 录 - 41 -
温馨提示:
1、题目前面的备注【字母数字编号】为本站整理分类的编号,与课题内容无关,请选题时忽视;
2、若题目上备注三维,则表示文件里包含三维源文件,由于三维组成零件数量较多,为保证预览截图的简洁性,本站将三维文件夹进行了打包。三维及CAD预览截图,均为本站电脑打开软件进行截图的,保证能够打开,下载原件超高清,下载后解压即可;
3、本站所有资源如无特殊说明,都需要本地电脑安装Office2007。图纸软件为AutoCAD,PROE,UG,SolidWorks,CATIA等;
4、本站所有图文资料仅供用户学习参考,不作为任何商用或其他用途;
5、本站不保证下载资源的准确性、安全性和完整性, 不包修改,不支持退换,同时也不承担用户因使用这些下载资源对自己和他人造成任何形式的伤害或损失;
6、 下载文件中如有侵权或不适当内容,请与我们联系,我们立即纠正。