

作品包括:
设计说明书一份,共37页,约15000字
CAD版本图纸,共8张
C616卧式车床八工位数控回转刀架设计
【摘要】
数控加工的加工精度高,生产率高,能减轻操作者劳动强度、改善劳动条件,有利于生产管理的现代化以及经济效益的提高,它的发展和运用,影响着制造业水平高低,实现生产过程的数控化,已经成为当今制造业的发展方向,所以非常值得我们去研究。
本设计通过对八工位卧式电动控制刀架的工作原理的分析,确定了多种方案,综合考虑各种方案的优缺点、性价比后,采用电动回转刀架。其刀架机构的主要部件包括减速传动机构、刀架的抬起机构、锁紧与转位精定位机构等,控制系统软件包括控制系统的选择,控制系统软硬件的设计,收发信电路的设计等,设计中所采用螺杆抬起机构、端齿盘定位机构和单片机控制系统都计较经济实用,适合我们我国现阶段数控机床的发展需要。
【关键词】
八工位,电动刀架,自动化,8051单片机
目录
1 绪论 5
1.1 引言 5
1.2 国内外研究现状 5
1.3 存在的问题 6
1.4 解决的方法 7
2 方案设计 8
2.1 自动刀架的基本要求和类型 8
2.1.1自动刀架的基本要求 8
2.1.2自动刀架的类型 8
2.2 方案的拟定和确定 9
3 总体结构设计 11
3.1 减速传动机构方案设计 11
3.2 刀架抬起机构设计 12
3.3 上刀体锁紧与精定位机构设计 13
4 主要部件的设计计算 15
4.1 减速传动机构的设计计算 15
4.1.1蜗杆的选型 15
4.1.2蜗杆副的材料选择 15
4.1.3按齿面接触疲劳强度进行设计 15
4.1.4蜗杆和蜗轮的主要参数与几何尺寸 19
4.1.5校核蜗轮齿根弯曲疲劳强度 19
4.2 螺杆的设计计算 21
4.2.1螺距的确定 21
4.2.2其他参数的确定 21
4.2.3自锁性能校核 21
4.3 端齿盘设计 22
4.3.1 端齿盘的特点 22
4.3.2 端齿盘主要参数的设计计算 22
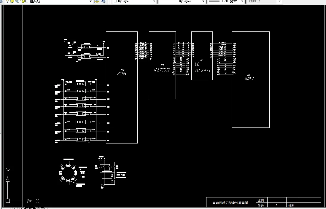
5 电气控制部分设计 26
5.1 控制系统的选择 26
5.2 控制方式的选择 27
5.3 硬件电路设计 27
5.3.1收信电路设计 27
5.3.2发信电路设计 29
5.4 控制软件设计 31
6 致 谢 37
7 参 考 文 献 38
温馨提示:
1、题目前面的备注【字母数字编号】为本站整理分类的编号,与课题内容无关,请选题时忽视;
2、若题目上备注三维,则表示文件里包含三维源文件,由于三维组成零件数量较多,为保证预览截图的简洁性,本站将三维文件夹进行了打包。三维及CAD预览截图,均为本站电脑打开软件进行截图的,保证能够打开,下载原件超高清,下载后解压即可;
3、本站所有资源如无特殊说明,都需要本地电脑安装Office2007。图纸软件为AutoCAD,PROE,UG,SolidWorks,CATIA等;
4、本站所有图文资料仅供用户学习参考,不作为任何商用或其他用途;
5、本站不保证下载资源的准确性、安全性和完整性, 不包修改,不支持退换,同时也不承担用户因使用这些下载资源对自己和他人造成任何形式的伤害或损失;
6、 下载文件中如有侵权或不适当内容,请与我们联系,我们立即纠正。