

作品包括:
说明书1份,共62页,约25000字左右
CAD版本本图纸,共3张
摘 要
本文根据任务的需要,设计一台能高效、大批量加工摇臂轴后支架φ24F7大孔的专用组合机床 。由于本人主要做的是组合机床的液压系统设计部分,所以文章从工艺方案设计、总体设计和液压系统设计三部分进行设计。本设计中最显著的特点是:滑台的直线运动和工作台的回转运动都是由液压系统来提供动力,液压系统稳定,缓冲能力强,提高了滑台的缓冲能力和回转工作台的转位精度,进而提高了工件的加工精度。摇臂轴后支架大孔由普通机床加工时存在生产率低下、加工精度的稳定性低等问题。通过制定切实可行的、合理的工艺方案,设计出了四工位的扩、镗组合机床,加工质量和生产效率得到大幅度提高,经济和社会效益显著。
关键词:组合机床;机床总体设计;液压滑台;液压回转工作台;液压系统设计。
目 录
摘要 Ⅰ
Abstract Ⅱ
第1章 概 述 1
1.1 组合机床的组成 1
1.2 组合机床的类型 2
1.2.1具有固定夹具的单工位组合机床 2
1.2.2 具有移动夹具的多工位组合机床 3
1.2.3转塔式组合机床 3
1.3 组合机床的通用部件 4
1.3.1通用部件的分类 4
1.3.2通用部件的型号、规格及配套关系 4
第2章 组合机床总体设计 6
2.1 工艺方案的拟定 6
2.1.1 制定工艺方案 6
2.1.2 确定组合机床的工艺方案 7
2.2 组合机床配置形式及结构方案的确定 10
2.2.1 影响组合机床配置形式及结构方案的因素 11
2.2.2 组合机床配置形式及结构方案的确定 11
2.3 切削用量的确定 12
2.3.1选择切削用量选择的特点 13
2.3.2 确定切削力、切削转矩、切削转速及切削功率 13
2.4 组合机床总体设计——“三图一卡” 16
2.4.1 被加工零件工序图 17
2.4.2 加工示意图 18
2.4.3 机床尺寸联系图 20
2.4.4 机床生产率计算卡 21
第3章 机床液压系统的设计与计算 23
3.1 液压系统的设计要求 23
3.2 液压系统参数及液压缸工况的确定 23
3.2.1 扩孔组合机床液压系统参数及工况的确定 23
3.2.2 粗镗孔组合机床液压系统参数及工况的确定 26
3.2.3 精镗孔组合机床液压系统参数及工况的确定 29
3.2.4 回转工作台液压系统参数及工况的确定 31
3.3 液压系统图的拟定 39
3.3.1 选择液压回路 39
3.3.2拟定液压系统图和工作循环表 42
3.4 液压元件的计算和选择 43
3.4.1确定液压泵规格和电动机功率 43
3.4.2控制阀的选择 44
3.4.3油箱容量的计算 46
3.5 液压系统主要性能的估算 47
3.5.1 液压系统稳态特性的校核 47
3.5.2 液压系统发热与温升的验算 52
第4章 结 论 54
参考文献 55
附录A 机床生产率计算卡 56
附录B 扩孔组合机床液压缸工作循环中各阶段的压力、流量和功率的实际使用值 57
附录C 粗镗组合机床液压缸工作循环中各阶段的压力、流量和功率的实际使用值 58
附录D 精镗组合机床液压缸工作循环中各阶段的压力、流量和功率的实际使用值 59
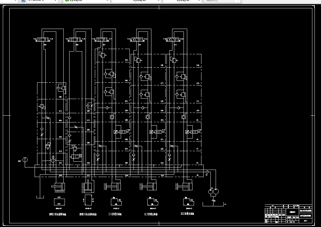
附录E 总体液压系统图 60
致谢 61
温馨提示:
1、题目前面的备注【字母数字编号】为本站整理分类的编号,与课题内容无关,请选题时忽视;
2、若题目上备注三维,则表示文件里包含三维源文件,由于三维组成零件数量较多,为保证预览截图的简洁性,本站将三维文件夹进行了打包。三维及CAD预览截图,均为本站电脑打开软件进行截图的,保证能够打开,下载原件超高清,下载后解压即可;
3、本站所有资源如无特殊说明,都需要本地电脑安装Office2007。图纸软件为AutoCAD,PROE,UG,SolidWorks,CATIA等;
4、本站所有图文资料仅供用户学习参考,不作为任何商用或其他用途;
5、本站不保证下载资源的准确性、安全性和完整性, 不包修改,不支持退换,同时也不承担用户因使用这些下载资源对自己和他人造成任何形式的伤害或损失;
6、 下载文件中如有侵权或不适当内容,请与我们联系,我们立即纠正。