

作品包括:
说明书1份,共43页,约17000字左右
CAD版本本图纸,共2张
摘要
这种空间多空孔加工组合机床是我们常见的一种专用组合机床,它是由系列化以及标准化的通用部件和按照被加工零件的形状以及加工工艺要求、数据大小而设计成的专用部件所组成。
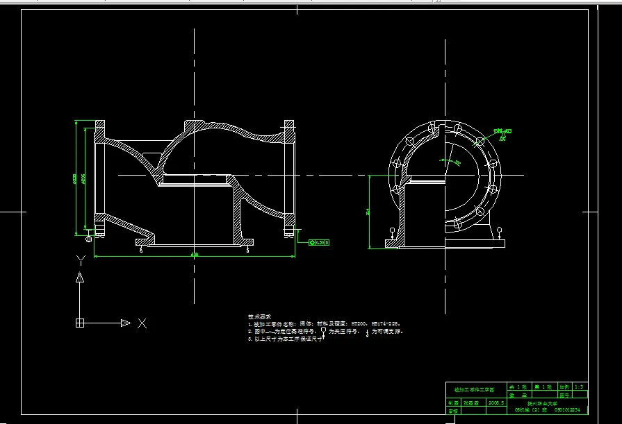
设计中的主轴箱的设计是这次设计任务的重中之重,也是最关键的部分当然它也是我们常见的组合机床中重要的部件之一。首先它是由我们所熟悉的通用部件,按照被加工零件的加工要求,根据专用要求设计的。举个例子就是加工拖拉机侧支架上的12个孔,就是一种加工空间多孔的组合机床的一种体现 。而这次的加工任务是机床也是以其为例。主轴箱是组合机床重要的专属部件,它是根据加工示意图所确定的工件加工孔的数量和位置、切削用量和主轴类型设计的传递各主轴运动的动力部件,与此同时为了提高生产效率以及降低劳动强度。
本文依据的主轴箱的设计原则完成了对结构型式的选择以及动力计算,传动系统的设计以及计算,主轴箱坐标计算,主轴箱的总图设计和液压部分的设计。并以此绘制加工的工序图,加工示意图以及卧式双面组合机床的各部件的尺寸图。整篇说明书全部依据了现行的国家标准以完成。
关键词: 组合机床; 主轴箱; 传动轴
目 录
第一章 组合机床概述 1
1.1 组合机床简介 1
1.2 组合机床的特点 2
1.3 组合机床工艺范围及发展方向 3
1.3.1 组合机床工艺范围 3
1.3.2 组合机床发展方向 4
1.3.3 组合机床的方案选择 5
第二章 被加工零件工艺方案的制定 7
2.1 零件分析 7
2.1.1 零件的用途 7
2.1.2 零件的技术要求 7
2.2 工艺方案的制定 8
2.3 组合机床切削量及切削力的确定 9
2.3.1组合机床切削量和工序余量的确定 10
2.3.2选择组合机床切削用量的特点 10
2.3.3选择组合机床钻削切削用量 10
2.3.4确定切削用量此时应注意的问题 11
2.3.5组合机床切削力的确定 11
2.4 主轴直径的确定和主轴箱所需动力计算 12
2.4.1主轴直径的确定 12
2.4.2动力箱的选用 13
第三章 主轴箱的设计 15
3.1 主轴箱的基本机构及表达方法 15
3.1.1 主轴箱简介 15
3.1.2 通用主轴箱的组成 15
3.1.3 通用主轴箱的通用零件 16
3.2绘制主轴箱设计原始依据图 17
3.3确定主轴结构型式及齿轮模数 19
3.4主轴箱的传动系统设计 20
3.4.1对主轴箱传动系统的一般要求 20
3.4.2传动系统的设计与计算 21
3.5 主轴箱坐标的计算 26
3.5.1 绘制主轴箱总图及补充加工图 33
3.5.2主轴箱补充加工图设计 34
结论 35
参考文献 36
致谢 37
温馨提示:
1、题目前面的备注【字母数字编号】为本站整理分类的编号,与课题内容无关,请选题时忽视;
2、若题目上备注三维,则表示文件里包含三维源文件,由于三维组成零件数量较多,为保证预览截图的简洁性,本站将三维文件夹进行了打包。三维及CAD预览截图,均为本站电脑打开软件进行截图的,保证能够打开,下载原件超高清,下载后解压即可;
3、本站所有资源如无特殊说明,都需要本地电脑安装Office2007。图纸软件为AutoCAD,PROE,UG,SolidWorks,CATIA等;
4、本站所有图文资料仅供用户学习参考,不作为任何商用或其他用途;
5、本站不保证下载资源的准确性、安全性和完整性, 不包修改,不支持退换,同时也不承担用户因使用这些下载资源对自己和他人造成任何形式的伤害或损失;
6、 下载文件中如有侵权或不适当内容,请与我们联系,我们立即纠正。
S773-车床主轴箱设计[5.5KW 转速160-2000 Z=12]
Y059-ZH1135柴油机机体三面半精镗组合机床总体及夹具设计【三图一卡】【16张图纸-3A0】
F496-专用钻床进给系统及底座设计
M635-设计用于带式运输机上的V带传动和两级圆柱齿轮减速器T=800 V=0.8 D=360[含SW三维图]
D054-带式输送机传动装置F=7KN,V=0.45ms,D=320mm
M5084-468Q发动机曲轴箱箱体左右两侧面孔钻削组合机床设计
E500-汽车变速箱体孔加工专用机床设计(前端面)
L522-Φ400普通车床主轴箱设计[P=5.5kw 转速1320 30 公比1.41]