

作品包括:
说明书1份,共40页,约13000字左右
CAD版本图纸,共9张
目 录
1.数控铣床的介绍--------------------------------------------------------------------------------------1
1.1 数控铣床的主要功能-----------------------------------------------------------------------1
1.2 数控铣床的主要特点-----------------------------------------------------------------------2
2.总体设计方案-----------------------------------------------------------------------------------------4
3.电机的选择--------------------------------------------------------------------------------------------5
3.1 确定主轴传动功率--------------------------------------------------------------------------5
3.2 电机的选择-----------------------------------------------------------------------------------6
3.3 主轴的变速过程-----------------------------------------------------------------------------7
4.轴类零件的设计--------------------------------------------------------------------------------------8
4.1 轴的设计概述--------------------------------------------------------------------------------8
4.2 主轴主要结构参数的确定-----------------------------------------------------------------8
4.3 轴的结构设计------------------------------------------------------------------------------11
4.4 主轴刚度的计算---------------------------------------------------------------------------14
5.齿轮传动设计与计算------------------------------------------------------------------------------17
5.1主要参数的选择------------------------------------------------------------------------------17
5.2 齿轮的设计与计算--------------------------------------------------------------------------17
6.轴承的设计与计算---------------------------------------------------------------------------------21
6.1 轴承当量动载荷的计算--------------------------------------------------------------------21
6.2 验算两轴承的寿命--------------------------------------------------------------------------23
7.圆弧齿同步带的设计------------------------------------------------------------------------------24
7.1 确定圆弧齿同步带的基本参数---------------------------------------------------------24
7.2 确定带的中心距----------------------------------------------------------------------------25
7.3 选择带的类型-------------------------------------------------------------------------------26
8.碟形弹簧的设计------------------------------------------------------------------------------------27
8.1 碟形弹簧的结构尺寸----------------------------------------------------------------------27
8.2 弹簧的许用应力和疲劳极限------------------------------------------------------------28
8.3 碟形弹簧的设计与计算-------------------------------------------------------------------29
8.4 碟形弹簧的校核----------------------------------------------------------------------------30
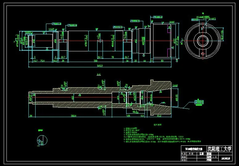
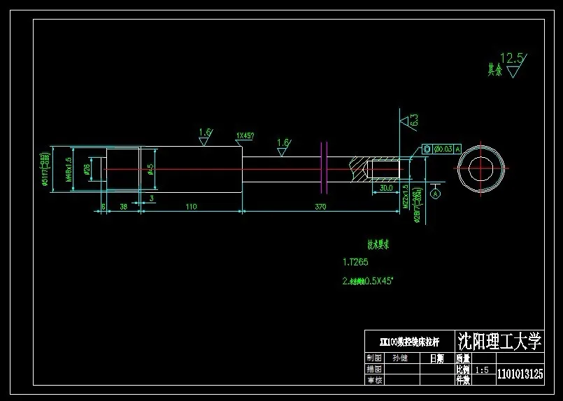
9.拉杆的设计------------------------------------------------------------------------------------------33
9.1 确定拉杆的直径---------------------------------------------------------------------------33
9.2 确定拉杆的长度----------------------------------------------------------------------------33
10.拉抓和打刀缸的选择-----------------------------------------------------------------------------35
10.1 拉抓的选择--------------------------------------------------------------------------------35
10.2 打刀缸的选择-----------------------------------------------------------------------------35
小结---------------------------------------------------------------------------------------------------36
参考文献------------------------------------------------------------------------------------------------37
摘 要
本文根据公司生产加工需要改装一台铣床, 主要用于铣削平面和钻孔,对主轴部件进行重新设计,但仍要用原来的主轴箱,要求主轴的转速范围为40r/min—4000r/min,查机械设计手册确定典型的切削工艺可以求得主轴的切削功率为4.3KW,根据切削功率 与主运动传动链的总效率η确定机床传动的功率P=5.4 KW,然后,根据机床传递的功率P来选择电机的类型。为了满足主轴的转速要求,选择合适的传动比和轴承。
[关键词] 铣床 ; 主轴 ; 设计 ; 校核
温馨提示:
1、题目前面的备注【字母数字编号】为本站整理分类的编号,与课题内容无关,请选题时忽视;
2、若题目上备注三维,则表示文件里包含三维源文件,由于三维组成零件数量较多,为保证预览截图的简洁性,本站将三维文件夹进行了打包。三维及CAD预览截图,均为本站电脑打开软件进行截图的,保证能够打开,下载原件超高清,下载后解压即可;
3、本站所有资源如无特殊说明,都需要本地电脑安装Office2007。图纸软件为AutoCAD,PROE,UG,SolidWorks,CATIA等;
4、本站所有图文资料仅供用户学习参考,不作为任何商用或其他用途;
5、本站不保证下载资源的准确性、安全性和完整性, 不包修改,不支持退换,同时也不承担用户因使用这些下载资源对自己和他人造成任何形式的伤害或损失;
6、 下载文件中如有侵权或不适当内容,请与我们联系,我们立即纠正。