

作品包括:
说明书1份,共41页,约21000字左右
CAD版本图纸,共5张
摘要
数控机床是一种加工功能很强的数控机床,是数控机床中的典型机床,也是国家机械制造业中的最重要的组成部分之一。数控铣床的加工精度也是标致着一个国家的机械制造业水平,因此在国内外企业界都受到高度重视。本文设计的是XK712数控铣床Z轴进给部件,采用伺服电机与滚珠丝杆直连的传动方式。文中包括了进给部件的计算与选用和导轨选择两大部分,主要介绍了立式数控铣床进给传动系统中各种传动方案优缺点的比较、传动方案的选择和确定、部件设计、轴承的选用及其润滑、关键零件的校核等设计过程。最终能够提高传动精度,保证运动平稳性,减少摩擦,消除爬行现象,延长其使用寿命。
关键词:数控铣床;进给;传动;伺服电机
-目录
第一章 绪 论 1
1.1 概述 1
1.1.1数控机床简介 1
1.1.2数控铣床的工艺范围及分类 2
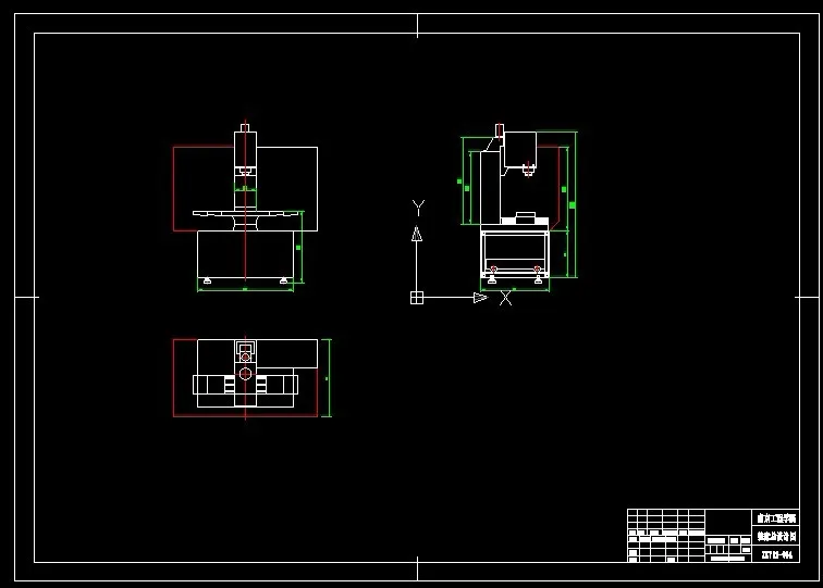
1.1.3数控铣床的组成和布局 6
1.1.4数控机床的特点和发展 8
第二章 机床总体方案设计 12
2.1 伺服系统设计 12
2.1.1伺服系统的概述 12
2.1.2伺服系统的特点 13
2.1.3伺服系统的基本要求 13
2.2 传动方案确定及典型元件 14
2.2.1电机与滚珠丝杠的连接 14
2.2.2滚珠丝杠螺母机构 15
2.2.3滚珠丝杠的支承方式 15
2.2.4联轴器的选择 17
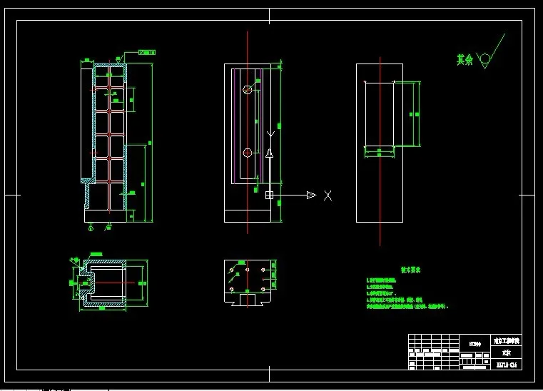
第三章 数控铣床Z轴进给系统设计 17
3.1 主切削力及其切削分力计算 18
3.2 导轨摩擦力的计算 18
3.3 滚珠丝杠的选择 19
3.3.1计算滚珠丝杠螺母副的轴向负载力 19
3.3.2数控铣床的工艺范围及分类 19
3.3.3计算当量负载荷Cm 19
3.3.4选取滚珠丝杠 20
3.4 伺服电机的选择 20
3.4.1计算折算到电动机轴上的负载惯量 20
3.4.2计算折算到电动机轴上的负载力矩 21
3.4.3选择驱动电动机的型号 21
第四章 机床导轨设计 23
4.1 机床导轨概述 23
4.2 机床导轨的基本要求 24
4.3 常用机床导轨介绍 25
4.3.1塑料滑动导轨 25
4.3.2滑动导轨 28
4.3.3静压导轨 30
4.4 机床导轨选择 31
第五章 总结 32
参考文献 34
致 谢 35
温馨提示:
1、题目前面的备注【字母数字编号】为本站整理分类的编号,与课题内容无关,请选题时忽视;
2、若题目上备注三维,则表示文件里包含三维源文件,由于三维组成零件数量较多,为保证预览截图的简洁性,本站将三维文件夹进行了打包。三维及CAD预览截图,均为本站电脑打开软件进行截图的,保证能够打开,下载原件超高清,下载后解压即可;
3、本站所有资源如无特殊说明,都需要本地电脑安装Office2007。图纸软件为AutoCAD,PROE,UG,SolidWorks,CATIA等;
4、本站所有图文资料仅供用户学习参考,不作为任何商用或其他用途;
5、本站不保证下载资源的准确性、安全性和完整性, 不包修改,不支持退换,同时也不承担用户因使用这些下载资源对自己和他人造成任何形式的伤害或损失;
6、 下载文件中如有侵权或不适当内容,请与我们联系,我们立即纠正。