

作品包括:
Word版设计说明书1份,共31页,约12000字
外文翻译一份
任务书一份
CAD版本图纸,共6张
毕业论文中文摘要
节温器座上端面立式钻孔专用机床设计(三图一卡及多轴箱设计)
摘要:
随着自动化生产能力的提高,现代工厂中出现需要组合机床的场合越来越多,组合机床是以通用部件为基础,配以工件特定外形和加工工艺设计的专用部件和夹具,组成的半自动或自动专用机床。它一般采用多轴,多刀,多工序,多面或多工位同时加工的方式,生产效率比通用机床高几倍至几十倍。由于通用部件已经标准化合系列化,可根据需要灵活配置,能缩短设计和制造周期。因此,组合机床兼有低成本和高效率的优点,在大批量生产中得到广泛应用,并可用以组成自动生产线。
本课题针对节温器座上端面4Xφ9孔钻削这一特定工序而设计的一台专用立式组合机床。
本设计中,在充分数据计算的基础上对标准通用零件做了仔细选择,并依据被加工零件的结构特点,加工部位的尺寸精度,表面粗糙度要求,以及定位夹紧方式,工艺方法和加工过程中所采用的刀具,生产率,切削用量情况等设计了结构合理的多轴箱。
关键词: 组合机床,多轴箱,工艺流程,钻削
目 次
1 引言 1
1.1组合机床概述 1
1.2该课题研究的目的和意义 1
1.3组合机床发展史 1
1.4国内外该研究技术现状 2
1.5发展趋势 3
1.6本课题研究的基本内容 3
1.7本课题主要研究解决的难点问题和拟采用的办法 3
2 多孔钻组合机床总体方案设计(三图一卡) 5
2.1 零件分析 5
2.2工艺分析 6
2.3确定机床的配置形式 7
2.4组合机床切削用量 8
2.5组合机床切削用量选择及计算 9
3 组合钻床总体方案设计(三图一卡) 11
3.1被加工零件工序图 11
3.2 加工示意图 12
3.2.4其它注意问题 15
3.3 机床联系尺寸总图 16
3.4.生产率计算卡 18
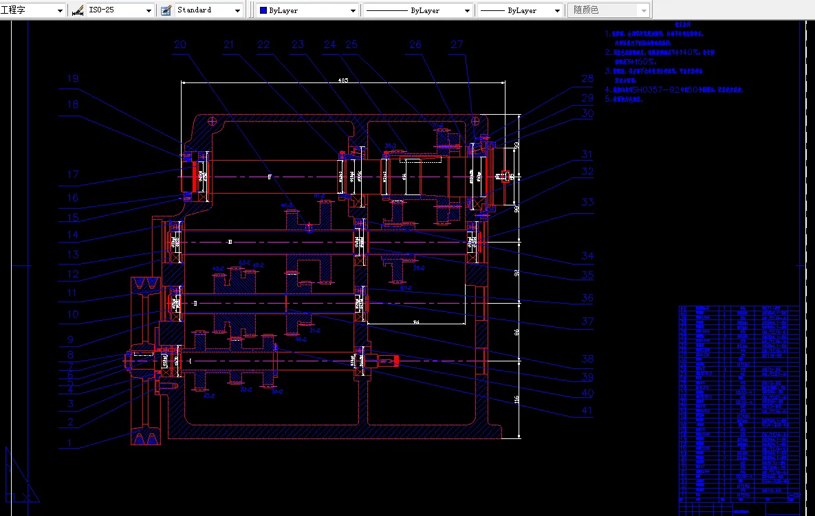
4 组合机床多轴箱设计 19
4.1通用多轴箱的组成 19
4.2多轴箱设计步骤和内容 20
4.3传动系统的设计计算 21
结论 25
参考文献 26
致谢 27
温馨提示:
1、题目前面的备注【字母数字编号】为本站整理分类的编号,与课题内容无关,请选题时忽视;
2、若题目上备注三维,则表示文件里包含三维源文件,由于三维组成零件数量较多,为保证预览截图的简洁性,本站将三维文件夹进行了打包。三维及CAD预览截图,均为本站电脑打开软件进行截图的,保证能够打开,下载原件超高清,下载后解压即可;
3、本站所有资源如无特殊说明,都需要本地电脑安装Office2007。图纸软件为AutoCAD,PROE,UG,SolidWorks,CATIA等;
4、本站所有图文资料仅供用户学习参考,不作为任何商用或其他用途;
5、本站不保证下载资源的准确性、安全性和完整性, 不包修改,不支持退换,同时也不承担用户因使用这些下载资源对自己和他人造成任何形式的伤害或损失;
6、 下载文件中如有侵权或不适当内容,请与我们联系,我们立即纠正。