

作品包括:
Word说明书一份,共50页,约16000字
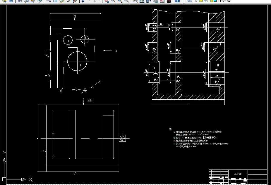
CAD版本图纸,共7张:
摘 要
应用多工位机床加工大批量零件,快捷高效,是机械加工的发展方向。本次设计的四工位专用机床主要用于机械零件的钻孔,是在四个工位上分别完成相应的装卸工件、钻孔、扩孔、铰孔工作。它的执行机构有两个:一是装有四工位工件的回转工作台,二是装有专用电动机带动的三把刀具的主轴箱。主轴箱每向左移动送进一次,在四个工位上分别完成相应的装卸工件、钻孔、扩孔、铰孔工作。当主轴箱右移退回到刀具离开工件后,工作台回转90度,然后主轴箱再次左移。四次工作循环后完成装 、钻、扩、铰、卸等工序。一个循环就有一个工件完成上述全部工序。本机床适用于中小型大批量生产零件的工厂企业,可以加工直径在26mm以下的孔,可加工的零件的最大直径为120mm。本设计说明书对电动机的选择、各零部件的设计计算校核及刀具的选择安装进行了详细的阐述。
关键词:四工位;专用机床;回转工作台;主轴箱;钻孔;扩孔;铰孔
目 录
第1章 绪论 1
1.1 组合机床的发展与现状 1
1.2 机床的作用与分类 1
1.3 本课题的研究方向 2
1.4 本课题的任务要求 3
第2章 总体方案的设计 4
2.1 本课题的设计要求 4
2.2 总体方案的确定 4
第3章 传动系统的设计 8
3.1 电动机1的选择 8
3.2 V带及带轮的设计 9
3.3 减速带轮的设计 11
3.4 变速传动轴承 11
3.5 齿轮的设计 14
3.6 移动推杆圆柱凸轮机构设计 25
3.7 轴的设计与校核 26
3.8 回转工作台的技术参数的确定 33
第4章 进给系统的设计 34
4.1 电动机2的选择 34
4.2 确定各传动机构的传动比 34
4.3 计算各轴功率 34
4.4 齿轮的结构设计 34
第5章 刀具的选择与安装 44
第6章 多轴箱的设计 45
6.1 确定多轴箱轮廓尺寸 45
6.2 主轴箱的原始依据图 46
6.3 主轴结构型式的选择及动力计算 46
结论 48
致谢 49
参考文献 50
温馨提示:
1、题目前面的备注【字母数字编号】为本站整理分类的编号,与课题内容无关,请选题时忽视;
2、若题目上备注三维,则表示文件里包含三维源文件,由于三维组成零件数量较多,为保证预览截图的简洁性,本站将三维文件夹进行了打包。三维及CAD预览截图,均为本站电脑打开软件进行截图的,保证能够打开,下载原件超高清,下载后解压即可;
3、本站所有资源如无特殊说明,都需要本地电脑安装Office2007。图纸软件为AutoCAD,PROE,UG,SolidWorks,CATIA等;
4、本站所有图文资料仅供用户学习参考,不作为任何商用或其他用途;
5、本站不保证下载资源的准确性、安全性和完整性, 不包修改,不支持退换,同时也不承担用户因使用这些下载资源对自己和他人造成任何形式的伤害或损失;
6、 下载文件中如有侵权或不适当内容,请与我们联系,我们立即纠正。