

作品包括:
Word说明书1份,共31页,约11000字
CAD版本图纸,共12张
目 录
1 绪论..............................................................1
2 组合机床总体设计..................................................2
2.1 被加工零件的特点................................................2
2.2 工艺方案的确定.................................................2
2.3 切削用量的确定..................................................3
2.4 选择刀具结构....................................................6
3 组合机床总体设计—三图一卡.......................................6
3.1 被加工零件工序图................................................6
3.2 加工示意图.....................................................8
3.3 机床尺寸联系总图..............................................11
3.4 机床生产率计算卡..............................................13
4 左主轴箱设计....................................................15
4.1 左主轴箱箱体零件的设计.........................................15
4.2 确定传动轴的位置和齿轮齿数.....................................18
4.3 坐标计算......................................................20
4.4 主轴等有关零件的设计...........................................20
4.5 主轴箱坐标计算、绘制坐标检查图.................................20
4.6 齿轮的校核及参数的确定.........................................22
4.7 箱体或前盖补充加工图...........................................24
5 设计总结.........................................................26
参考文献...........................................................26
致 谢...........................................................27
附 录...........................................................28
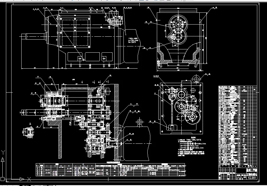
箱体双面粗镗床总体设计及左主轴箱设计
摘要:为了提高加工效率和质量以及满足拖拉机变速箱体相应粗镗孔的尺寸精度及位置精度的要求,需要设计一台双面粗镗床。
因此我进行了箱体双面粗镗床总体设计及左主轴箱设计。在分析了工件特点的基础上,按组合机床的设计方法和步骤,进行了组合机床的总体设计。绘制了被加工零件的工序图、加工示意图、机床联系尺寸图和生产率计算卡。在此基础上,拟订了主轴箱的传动路线,应用最优化方法布置齿轮,确定传动参数。最后绘制了主轴箱装配图、箱体图、前盖及后盖的补充加工图,进行了轴、齿轮等零件的强度校核。该组合机床机较好地完成了设计要求,大大提高了工作效率。
关键词:双面粗镗;主轴箱;组合机床
温馨提示:
1、题目前面的备注【字母数字编号】为本站整理分类的编号,与课题内容无关,请选题时忽视;
2、若题目上备注三维,则表示文件里包含三维源文件,由于三维组成零件数量较多,为保证预览截图的简洁性,本站将三维文件夹进行了打包。三维及CAD预览截图,均为本站电脑打开软件进行截图的,保证能够打开,下载原件超高清,下载后解压即可;
3、本站所有资源如无特殊说明,都需要本地电脑安装Office2007。图纸软件为AutoCAD,PROE,UG,SolidWorks,CATIA等;
4、本站所有图文资料仅供用户学习参考,不作为任何商用或其他用途;
5、本站不保证下载资源的准确性、安全性和完整性, 不包修改,不支持退换,同时也不承担用户因使用这些下载资源对自己和他人造成任何形式的伤害或损失;
6、 下载文件中如有侵权或不适当内容,请与我们联系,我们立即纠正。