

作品包括:
Word说明书1份,共35页,约16000字
CAD版本图纸,共12张
目 录
1前言 1
2组合机床总体设计 3
2.1总体方案论证 3
2.1.1工艺路线的确立 3
2.1.2确定机床配置型式及结构方案 3
2.1.3定位基准的选择 3
2.1.4滑台型式的选择 4
2.2 确定切削用量及选择刀具 4
2.2.1选择切削用量 4
2.2.2计算切削力、切削扭矩及切削功率 5
2.3 组合机床总体设计—三图一卡 6
2.3.1被加工零件工序图 6
2.3.2加工示意图 6
2.3.3机床联系尺寸图 8
2.3.4机床生产率计算卡 10
3 组合机床左主轴箱设计 13
3.1绘制左主轴箱设计原始依据图 13
3.2主轴结构型式的选择及动力计算 14
3.2.1主轴结构型式的选择 14
3.2.2主轴直径和齿轮模数的初步确定 14
3.2.3主轴箱动力计算 14
3.3主轴箱传动系统的设计与计算 15
3.3.1根据原始依据图计算驱动轴、主轴的坐标尺寸 15
3.3.2拟订主轴箱传动路线 15
3.3.3传动轴的位置和转速及齿轮齿数 16
3.3.4手柄轴的设置和主轴箱的润滑 20
3.4主轴箱中传动轴坐标的计算及坐标检查图的绘制 20
3.4.1传动轴坐标的计算 20
3.4.2坐标检查图的绘制 23
3.5传动轴直径的确定和轴强度的校核 23
3.5.1轴径的确定 23
3.5.2轴的校核 24
3.6齿轮校核计算 24
3.7轴承的选择与校核 25
3.8主轴箱的设计 28
4结论 29
参 考 文 献 30
致 谢 31
附 录 32
“Y”形支架双面钻机床总体设计 及左主轴箱设计
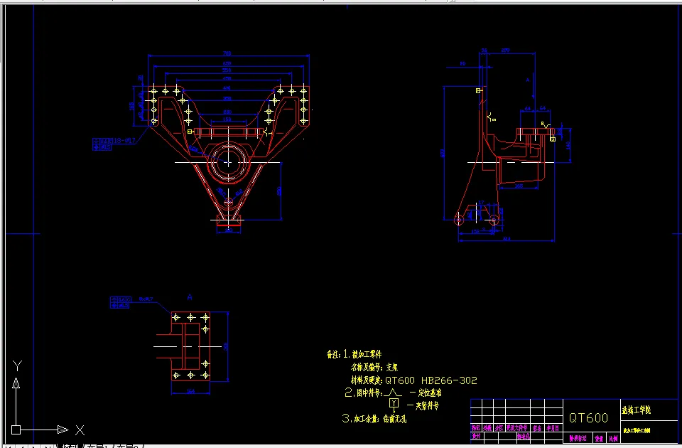
摘要:卧式支架双面钻机床加工的是支架零件。主要钻削加工支架上的18-φ17和8-φ17孔。在分析加工工件的特点的基础上,按组合机床的设计方法和步骤,进行了组合机床的总体设计,绘制了被加工零件的工序图、加工示意图、机床联系尺寸图和生产率计算卡。采用标准主轴,并选用标准刀具,同时使得工序尽量集中,能够实现工件在一次装夹时多孔同时加工,这样有利于保证各面和各孔相互间的位置精度要求。在此基础上,绘制了左主轴箱设计的原始依据图,拟订了主轴箱的传动路线,应用最优化方法布置齿轮。确定传动参数,绘制了主轴箱装配图、箱体坐标检查图、前盖及后盖的补充加工图,进行了轴、齿轮等零件的强度校核。本设计较好的满足了生产实践的需要,大大提高了工作效率。
关键词:左主轴箱;组合机床;双面钻孔
温馨提示:
1、题目前面的备注【字母数字编号】为本站整理分类的编号,与课题内容无关,请选题时忽视;
2、若题目上备注三维,则表示文件里包含三维源文件,由于三维组成零件数量较多,为保证预览截图的简洁性,本站将三维文件夹进行了打包。三维及CAD预览截图,均为本站电脑打开软件进行截图的,保证能够打开,下载原件超高清,下载后解压即可;
3、本站所有资源如无特殊说明,都需要本地电脑安装Office2007。图纸软件为AutoCAD,PROE,UG,SolidWorks,CATIA等;
4、本站所有图文资料仅供用户学习参考,不作为任何商用或其他用途;
5、本站不保证下载资源的准确性、安全性和完整性, 不包修改,不支持退换,同时也不承担用户因使用这些下载资源对自己和他人造成任何形式的伤害或损失;
6、 下载文件中如有侵权或不适当内容,请与我们联系,我们立即纠正。