

作品包括:
word说明书一份,共50页,约17000字
任务书一份
开题报告一份
外文翻译一套
CAD版本图纸,共16张
摘 要
组合机床是一种高效率专用机床,有特定的使用条件,不是在任何情况下都可以收到良好的经济效益,在确定设计机床前,应该进行具体的经济技术分析。加工同一个机械产品的零件,通常会有很多种工艺方案,不同的方案会有不同的经济效果,影响技术经济的因素有很多,有时技术指标先进的方案,经济指标不一定优越,因此,需要对技术、经济指标作综合评价,综合多数的意见,选出优化方案进行经济效果评价,如果满意即可决定。
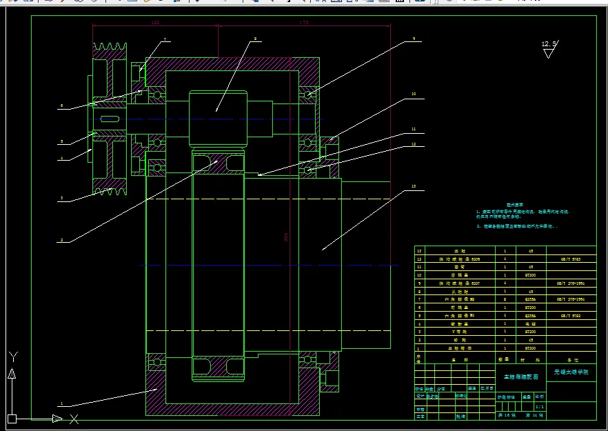
本课题设计的是筒体切割加工组合机床。其来源于惠发特精密机械有限公司。在设计中:通过研究被加工零件的特点,对相关数据进行计算,对相关部件进行选择,从而确定机床的总体布局。并绘制出被加工零件工序图,加工示意图,机床联系尺寸图和生产率计算卡。在此基础上拟定了主轴箱的传动路线,设计了轴的结构,进行了皮带轮及轴等相关零件的强度,刚度校核,并绘制出主轴箱总装图和相关零件图。工件采用三爪卡盘定位,一次装夹完成不仅保证了孔的加工精度,而且还提高了加工效率,降低了工人的劳动强度。
关键词: 筒体切割加工;组合机床;主轴箱。
目 录
摘 要 III
Abstract IV
目 录 V
1 绪论 1
1.1 惠发特精密机械有限公司简介 1
1.2 本次设计任务简介 1
1.3 本次设计任务相关要求 1
2 总体设计 2
2.1 几种切管方式的比较 2
2.2 总体的布局 3
2.3 切削力的确定和电机的选择 3
2.4 调节机构的确定 4
2.5 冷却系统的选用 4
3 主轴箱设计 6
3.1 主轴箱的原理依据和要求 6
3.1.1 使用要求 6
3.1.2 工艺要求与润滑 6
3.2 主轴的结构 7
3.2.1 主轴的构造 7
3.2.2 主轴的材料和热处理 7
3.2.3 主轴的技术要求 8
3.2.4 主动轴的设计 8
3.2.5 按弯矩合成力校核轴的强度 9
3.2.6 轴承的选用 12
3.2.7 轴承寿命计算与润滑 13
3.3 传动系统设计 14
3.3.1 计算并选择电机 14
3.3.2 V带传动的设计计算 15
3.3.3 齿轮传动的设计计算与润滑 18
3.3.4 从动轴几何尺寸计算 22
3.3.5 进给系统的设计 28
3.3.6 导轨形式的确定 28
3.3.7 其它零部件 29
4 床身的设计 31
4.1 材料和路线选择 31
4.2 主轴箱箱体的结构和材料 31
4.2.1 各部位及附属零件的名称和作用 31
4.2.2 机体结构 32
5 调节系统的设计 36
5.1长度的调节 36
5.2 径向的调节 37
6 改进方案的设计 38
6.1 控制电器与执行电器的选择 38
6.2 线路的设计 38
7 结论与展望 40
致谢 41
参考文献 42
温馨提示:
1、题目前面的备注【字母数字编号】为本站整理分类的编号,与课题内容无关,请选题时忽视;
2、若题目上备注三维,则表示文件里包含三维源文件,由于三维组成零件数量较多,为保证预览截图的简洁性,本站将三维文件夹进行了打包。三维及CAD预览截图,均为本站电脑打开软件进行截图的,保证能够打开,下载原件超高清,下载后解压即可;
3、本站所有资源如无特殊说明,都需要本地电脑安装Office2007。图纸软件为AutoCAD,PROE,UG,SolidWorks,CATIA等;
4、本站所有图文资料仅供用户学习参考,不作为任何商用或其他用途;
5、本站不保证下载资源的准确性、安全性和完整性, 不包修改,不支持退换,同时也不承担用户因使用这些下载资源对自己和他人造成任何形式的伤害或损失;
6、 下载文件中如有侵权或不适当内容,请与我们联系,我们立即纠正。